Eladó lakás Budapest II. ker 320 000 000 Ft

Leírás

Új építésű elegancia Pasaréten - ajándék jacuzzival!A kortárs luxus új szintje: modern építészet, innovatív technológia és kompromisszummentes kényelem.A II. kerület egyik legkedveltebb, zöldövezeti részén, Pasarét szívében valósult meg ez az exkluzív, 2025-ben épült 5 lakásos, liftes társasház, melyben most még elérhetők prémium kialakítású lakások.A dús növényzettel teli, 2234 m2-es telekre épült 3 szintes ingatlan a városi kényelem és a természetközeli élet ideális kombinációját kínálja. A tervezés során kiemelten ügyeltek a privát terekre. Nagy figyelmet kapott a praktikusság, a tágas élettér és a kényelmes, jól kihasználható teraszok kialakítása, melyek alapterületének arányos része a megadott összterületbe is beleszámít. A teraszok jacuzzival és pergolával felszereltek. Kertkapcsolat a földszinten, zöld lombkoronás kilátás az emeleten, és lélegzetelállító panoráma a penthouse-ból - mindez elegáns, prémium kivitelben. A lakások mindegyike értékálló, gondosan megtervezett otthon a legigényesebbek számára. A társasház épülete minőségi anyagokból, modern építészeti megoldásokkal készült, letisztult homlokzattal és elegáns terekkel. Minden lakás világos, tágas, teraszos, és energiatakarékos gépészeti megoldásokkal felszerelt. A konyhabútor és a beépíthető gépek kialakítása és beszerzése a leendő tulajdonosra vár, teljes mértékben az egyéni ízléséhez és igényekhez igazíthatóan.A lakások azonnal költözhetőek. Műszaki tartalom:- előregyártott zsalupallós, monolit vasbeton födémszerkezetek- 20 cm vastag, többrétegű lakáselválasztó falak, hálószobák között 12,5 cm vastag falszerkezetek- homlokzati falakon 20 cm fekete üvegszövettel kasírozott kőzetgyapot hőszigetelés- rámpafűtés a kocsibejárók, garázsfelhajtók burkolata alatt - akadálymentes felvonó- geotermikus hűtés-fűtés - Wavin rendszerű meleg vizes központi padlófűtés, mennyezetfűtés-hűtés, kiegészítésként Daikin fan-coilok- költséghatékony H-tarifa- Helios KWL típusú, központi hővisszanyerős szellőzőgép - távolvasási funkcióval rendelkező vízmérők- nyílászárók üvegezése 3 rétegű hőszigetelő- a fürdőkben elektromos törölközőszárítós radiátorok- a fürdő és wc helyiségekben elektromos padlófűtés- OKOSOTTHON LOXONE : világításvezérlés, árnyékolás, fűtés és hűtés, ébresztés, jelenlét szimuláció, riasztás, jó éjt mód, stb.+ ajándék jacuzziMinden lakáshoz 2 garázshely és 1 tároló tartozik, melyek ára a lakás vételárán felül fizetendő.Főbb előnyök: Pasarét - zöldövezet Buda közepénRengeteg fa, park, csendes utcák - szinte kertvárosi hangulat, de mégis közel a belvároshoz (autóval vagy busszal 10-15 perc a Széll Kálmán tér). Kiváló közlekedésAz 5-ös, 91-es, 155-ös, 291-es buszok és a 61-es villamos megállói a közelben. Minőségi lakókörnyezetSok régi villaház, új, modern társasház, és igényesen felújított lakás van itt. Emiatt az ingatlanárak is magasabbak az átlagosnál. Presztízs és nyugalomPasarétnek van egyfajta régi budai polgári hangulata - sok híres ember is itt lakott (pl. építészek, művészek, értelmiségiek). A környék csendes, biztonságos, és kifejezetten családbarát. Kávézók, iskolák, sportlehetőségekNépszerű hely a Pasarét Bisztró, a Pasaréti templom melletti tér és környezete. A közelben van több jó iskola (pl. Piarista Gimnázium, Francia Iskola, Britannica International School). A környék ideális futásra, sétára, kutyázásra is.Ez az ingatlan ideális választás mindazoknak, akik a budai eleganciát, a minőséget és a nyugalmat keresik, anélkül, hogy lemondanának a város közelségéről. Ha szereti a zöld, csendes, biztonságos, mégis város közeli életstílust, akkor hívjon bizalommal akár hétvégén is!Amit az Ön számára biztosítani tudok: ingatlanok eladásának és vásárlásának teljes körű ügyintézése, ingyenes tanácsadás, értékbecslés, megbízható ingatlanos szakjogász, energetikus, hitelügyintézés a legjobb feltételekkel, gyorsan és díjmentesen.

Lakás részletei

Ár: 320 000 000 Ft
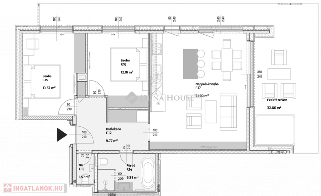
Méret: 95 négyzetméter
Azonosító: 11590857
Irodai azonosító: PR018560/LK/26075-5119414
Cím: Eladó 95 nm-es lakás Budapest 2. ker.
Összesített energetikai besorolás: A+
Emelet: Földszint
Építőanyag: Tégla
Fűtés jellege: Hőszivattyú
Ingatlan állapota: Épülő
Építési év: Új építésű
Egész szobák: 3

Egyéb jellemzők

  • Erkély
  • Lift

Térkép

Hasonló lakás hirdetések

Eladó lakás

Budapest II. ker

Eladó luxus villalakás a budai Csetényi-villában A II. kerület egyik ...

Eladó lakás

Budapest II. ker

C I T Y C A R T E L INTERNATIONAL LUXURY REAL ESTATE ...

Eladó lakás

Budapest II. ker, Lipótmező

Az eladásra kínált új építésű lakás, avagy házrész Budapest II. ...

Eladó lakás

Budapest II. ker

Eladó panorámás penthouse lakás a Mechwart ligetnél, Budán Kivételes ...

Hasonló lakás hirdetések

Eladó lakás

Budapest II. ker

Eladó luxus villalakás a budai Csetényi-villában A II. kerület egyik ...

Eladó lakás

Budapest II. ker

C I T Y C A R T E L INTERNATIONAL LUXURY REAL ESTATE ...

Eladó lakás

Budapest II. ker, Lipótmező

Az eladásra kínált új építésű lakás, avagy házrész Budapest II. ...

Eladó lakás

Budapest II. ker

Eladó panorámás penthouse lakás a Mechwart ligetnél, Budán Kivételes ...