Eladó lakás Budapest III. ker 146 630 000 Ft

Leírás

Oázis Óbuda szívében – Kisbojtár Residence

Napsütötte teraszok | Elegáns otthonok | Kertvárosi hangulat.

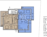
Eladó egy 75,51 nm-es, első emeleti lakás, hatalmas 39 nm-es terasszal, a III. kerület egyik legkedveltebb részén, a Kisbojtár utcában!

A projekt:

A Kisbojtár Residence két épületében összesen 8 lakás épült, modern technológiával és minőségi anyagokkal. A csendes, barátságos lakókörnyezet ideális választás azoknak, akik nyugodt otthont keresnek, de fontos számukra a belváros gyors elérhetősége.

Bölcsőde, óvoda, iskola, valamint számos bevásárlási lehetőség pár perc alatt elérhető.

A Bécsi és a Szentendrei út közelsége kiváló közlekedést biztosít.

Lakás jellemzői:
Alapterület: 75,51 nm.

Teraszok: 39 nm

Összesen: 95,01 nm

Ár: 146,63 M Ft

Teremgarázs: 8 M Ft (kötelező vásárlás)

Műszaki tartalom:

A+ energetikai besorolás

Daikin hőszivattyús fűtés, padlófűtéssel

Szobánként hűtő-fűtő fancoil

5 légkamrás, 3 rétegű nyílászárók

Elektromos alumínium redőny kiállások

15 cm kőzetgyapot szigetelés a homlokzaton

Modern, nagylapos burkolatok a fürdőszobában

Miért érdemes?

✅ Már elkészült, azonnal költözhető, tehermentes otthon

✅ Minőségi kivitelezés, hosszú távon értékálló befektetés

✅ Világos, tágas terek és praktikus elrendezés

✅ Presztízsértékű lokáció Óbuda zöldövezetében

Lakás részletei

Ár: 146 630 000 Ft
Méret: 75 négyzetméter
Azonosító: 11569728
Irodai azonosító: 388065
Cím: Kisbojtár utca
Emelet: 1. emelet
Építőanyag: Tégla
Fűtés jellege: Hőszivattyú
Ingatlan állapota: Kitűnő
Komfort fokozat: Összkomfort
Építési év: Új építésű
Tulajdonviszony: Saját
Kilátás: udvari
Egész szobák: 3

Egyéb jellemzők

  • Erkély
  • Garázs
  • Lift
  • Pince
  • Tároló

Térkép

Hasonló lakás hirdetések

Eladó lakás

Budapest III. ker

III.kerület kedvelt részén a TESTVÉRHEGYEN, energiahatékony, kiváló ...

Eladó lakás

Budapest III. ker

Budapest 3. kerület Csillaghegyen! Örökpanorámás! Újépítésű! 4 lakásos ...

Eladó lakás

Budapest III. ker

ELADÓ A BÉCSI ÚTON, A III. KERÜLETBE PENTHOUSE LAKÁS!!! 80 NM LAKRÉSZ ...

Eladó lakás

Budapest III. ker

***III. kerület, FOREST HILL lakóparkban egy 77 nm-es, 2 hálószobás, földszinti, ...

Hasonló lakás hirdetések

Eladó lakás

Budapest III. ker

III.kerület kedvelt részén a TESTVÉRHEGYEN, energiahatékony, kiváló ...

Eladó lakás

Budapest III. ker

Budapest 3. kerület Csillaghegyen! Örökpanorámás! Újépítésű! 4 lakásos ...

Eladó lakás

Budapest III. ker

ELADÓ A BÉCSI ÚTON, A III. KERÜLETBE PENTHOUSE LAKÁS!!! 80 NM LAKRÉSZ ...

Eladó lakás

Budapest III. ker

***III. kerület, FOREST HILL lakóparkban egy 77 nm-es, 2 hálószobás, földszinti, ...