Eladó lakás Budapest III. ker 64 000 000 Ft

Leírás

ENERGIATAKARÉKOS, PRÉMIUM LAKÁSOK TESTVÉRHEGY LÁBÁNÁL***Az építkezés elkezdődött, a szerkezetépítés hamarosan befejeződik*****CSOK, ÁFA visszaigénylés, illetékkedvezmény igénybe vehető***NAGYON JÓ ÁR/ÉRTÉK ARÁNY*A III. kerületben Óbuda hegyvidékén, a Testvérhegy lábánál épül ez a nívós, 12 lakásos, energiatakarékos társasház. Különlegessége az, hogy a zöldövezetben van, de mégis könnyen elérni a várost, akár tömegközlekedéssel, akár autóval.Az ingatlanfejlesztő tulajdonos az elmúlt 20 évben 471 db lakást épített Budapesten és vidéki nagyvárosokban. Transzparens, munkájára igényes, önerőből építő cég. A kivitelezés során a minőségi anyagfelhasználás és az energiatakarékosság kiemelt szempont, hogy időtálló, gazdaságosan üzemeltethető otthonokat hozzanak létre.A négyszintes épületben a -1 szinten lesznek a teremgarázsok, tárolók, illetve kerékpártárolók. Innen indul a 8 személyes lift a lakószintekre. A földszinten, az 1. és a 2. emeleten szintenként négy lakás, míg a 3. emeleten egy nagyteraszos lakás kerül kialakításra. A lakástípusokhoz nagy, élhető terasz kapcsolódik, a földszinti lakásokhoz pedig saját kert is tartozik. A lakásokhoz teremgarázshely (+6 MFt) és tároló (+2-3 MFt) vásárolhatóINGATLANOK MÉRETE45.08-98.04 NMSZOBÁK2-3-4 SZOBATERASZOK10-81 NM közöttÁRFEKVÉS63-149 MFTJELLEMZŐK- 15 cm külső hőszigetelés- 25 cm-es hangátló lakáselválasztó falak- hőszigetelt háromrétegű ablakok- kiépített redőnytokok, melyek motoros redőnyök fogadására is alkalmasak- több ponton záródó bejárati ajtók- mennyezet hűtés/fűtés, hőszivattyús levegő-víz fűtő/hűtő rendszerrel- hidegburkolatok alatt padlófűtés a konyhában, fürdőkben- harmatpontérzékelővel ellátott digitális, internetről vezérelhető termosztátok helyiségenként- hidegburkolatok, parketta, szaniterek, beltéri ajtók választhatók- kaputelefon, riasztó előkészítés- füvesített, növényekkel beültetett, kertÁTADÁS: 2024. decemberA részletekkel kapcsolatban várom jelentkezését! Hívjon, akár hétvégén is!

64000000 Ft

Referencia szám: PR068681/LK/18924

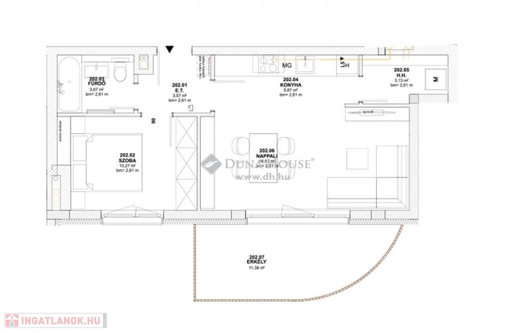
Lakás részletei

Ár: 64 000 000 Ft
Méret: 50 négyzetméter
Azonosító: 11305044
Irodai azonosító: PR068681/LK/18924-4505526
Cím: Budapest 3. ker.i 50 nm-es lakás eladó
Emelet: 2. emelet
Építőanyag: Tégla
Fűtés jellege: Cirkó
Ingatlan állapota: Épülő
Építési év: Új építésű
Egész szobák: 2

Egyéb jellemzők

  • Lift

Térkép

Hasonló lakás hirdetések

Eladó lakás

Budapest III. ker

Óbuda egyik legkedveltebb részén, az Árpád fejedelem útján eladóvá ...

Eladó lakás

Budapest III. ker, Békásmegyer

Prémium lehetőség Békásmegyeren – világos, francia erkélyes, 57 m²-es ...

Eladó lakás

Budapest III. ker

Budapest III. kerületében eladó egy 52 nm-es, 2 szobás, világos 3-ik emeleti ...

Eladó lakás

Budapest III. ker

***III. kerület, ÓBUDÁN 2 KÜLÖN NYÍLÓ szobás, 1 emeleti lakás BEÉPÍTETT ...

Hasonló lakás hirdetések

Eladó lakás

Budapest III. ker

Óbuda egyik legkedveltebb részén, az Árpád fejedelem útján eladóvá ...

Eladó lakás

Budapest III. ker, Békásmegyer

Prémium lehetőség Békásmegyeren – világos, francia erkélyes, 57 m²-es ...

Eladó lakás

Budapest III. ker

Budapest III. kerületében eladó egy 52 nm-es, 2 szobás, világos 3-ik emeleti ...

Eladó lakás

Budapest III. ker

***III. kerület, ÓBUDÁN 2 KÜLÖN NYÍLÓ szobás, 1 emeleti lakás BEÉPÍTETT ...