Eladó lakás Budapest IV. ker 179 000 000 Ft

Leírás

Nagy terasz, 2020-as építés, 4 szoba, jó környék!

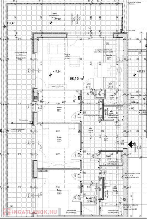
Eladó Újpesten, a kertváros mellett, mégis közel a központhoz a 4 szobás, 98 m²-es, + 55 m²-es nagyteraszos, újépítésű otthonunk.

A hasznos terület a terasz felével számolva 125 m².

Minden szobában nagy üvegfelületek vannak, és mindegyikből közvetlenül kijárat nyílik a részben fedett, minőségi műfűvel és greslappal burkolt, egybefüggő teraszra, ahonnan a kilátás több irányban is kifejezetten szép.

Legfőbb jellemzők:
• 55 m² nagy terasz + szép kilátás
• 4 szoba + gardrób + kamra + háztartási helyiség
• 2020-as újépítés, két lift, beálló- és tárolóopció
• Legfelső szint, de nem tetőtér, csendes, nagyon kevés falszomszéd
• Kedvező rezsi a méretéhez képest

Részletesen
A ház 2020-as építésű, szinte vadonat új! A közös területek igényesek és szokásosnál tágasabbak. Van közös bicikli- és babakocsitároló, belső udvar, mélygarázs és tárolók is, valamint két nagyméretű lift egymás mellett.

Környék és közlekedés
A környéken minden megtalálható, minden közel van. Újpest-központ villamossal kb. 8 perc, Rákospalota–Újpest vasútállomás pár perc séta, ahonnan 10 perc alatt a Nyugatinál lehet lenni. Szeretjük, hogy sok a könnyen elérhető zöld is a közelben: Szilas-patak partja, Farkas-erdő, Semsey park, igazán élhető a környék.

A lakás előnyei
A lakás a legfelső (4.) emeleten található, de nem tetőtéri. A folyosó legvégén helyezkedik el, így nincs előtte átjárás vagy zaj. A bejárat előtt egy kb. 10 m²-es, mások által nem használt terület található, amely akár extra tárolásra is használható. Csak egy oldalon van falszomszédunk, így kimondottan csendes. A ház jól szigetelt, minden ablak háromrétegű üveg. A fűtés házközponti gázfűtés, radiátorokkal, egyedi mérőkkel. A közösköltség 68.000 Ft/hó (átlag, éves szinten), amely tartalmazza a fűtést és a vízdíjat is. Ezen felül csak a villany fizetendő.

Belső elrendezés
Tágas előszoba, külön vendég WC, amerikai konyhás nappali-étkező. A konyhabútort gondosan megterveztük, gipszkartonnal körbeépítettük, a konyhai vizesblokkot (mosogató, mosogatógép) pedig egy félfal mögé helyeztük, ami nem szűkíti a teret, de lehetővé teszi, hogy elrejtsük mögé az időszakos kupit. A konyhából egy 2 nm-es praktikusan bepolcozott kamra is nyílik.
Három szoba (13 m², 13 m² és 9 m²), a legnagyobból nyíló, 3,5 m²-es gardróbbal (eredetileg zuhanyzónak tervezve, a kiállások megvannak hozzá). Tágas, több mint 7 m²-es fürdő WC-vel, valamint külön háztartási helyiség, ami lehetővé teszik, hogy a fürdőben ne kelljen gépeket vagy vegyszereket tárolni.
Az összes ablakra távirányítós motoros redőnyt szereltettünk, minden nyíló felületen szúnyoghálóval ellátva. A nappaliban klíma is található.

A terasz
Az 55 m²-es terasz az év nagy részében túlzás nélkül valódi élettérként működik. Viszonylag intim, az utcáról nem látni fel rá, a szomszéd házak kellő távolságban vannak. A délelőtti nap a konyha felőli oldalra süt, a délutáni a szobák elé — évszaktól függően jól variálható a terasz használata. A kilátás igazán szép, a szobák felöli oldalon a kertvárosra és a Budai hegyekre látunk rá meglepően messzire. A kedvencünk pedig a terasz előtti nagy fa, aminek a lobkoronáját látjuk a szobákból is. Tettem fel a teraszról képeket a tavaszi időszakból is, az aktuális képek mellett.

Garázs és tároló (nem kötelező megvásárolni a lakással együtt, de örülnénk neki)
• Mélygarázs beálló: 6 millió Ft a lakás vételárán felül
• Földszinti, jól pakolható 4,5 m²-es tároló: 3 millió Ft a lakás vételárán felül

Megtekintés
A lakás rugalmasan megtekinthető, minden kérdésre szívesen válaszolunk.
Ingatlanközvetítők segítségét nem kérjük, köszönjük!

Lakás részletei

Ár: 179 000 000 Ft
Méret: 98 négyzetméter
Azonosító: 11591145
Cím: Závodszky Zoltán utca
Építőanyag: Kérdezzen rá a hirdetőtől »
Ingatlan állapota: Kérdezzen rá a hirdetőtől »
Egész szobák: 4

Térkép

Hasonló lakás hirdetések

Eladó lakás

Budapest IV. ker

Kizárólag az OTP Ingatlanpont kínálatában! Exkluzív, extra felszereltségű ...

Eladó lakás

Budapest IV. ker

RITKASÁG! 3 SZOBÁS PENTHOUSE LAKÁS, PANORÁMÁVAL, DUPLA TERASSZAL, SZAUNÁVAL, ...

Hasonló lakás hirdetések

Eladó lakás

Budapest IV. ker

Kizárólag az OTP Ingatlanpont kínálatában! Exkluzív, extra felszereltségű ...

Eladó lakás

Budapest IV. ker

RITKASÁG! 3 SZOBÁS PENTHOUSE LAKÁS, PANORÁMÁVAL, DUPLA TERASSZAL, SZAUNÁVAL, ...