Eladó lakás Budapest IX. ker, Középső-Ferencváros, 98 000 000 Ft

Leírás

Eladó a IX. kerületben, az Üllői úton, a Klinikák és a Nagyvárad tér között egy második emeleti, 77 m2 ingatlan!
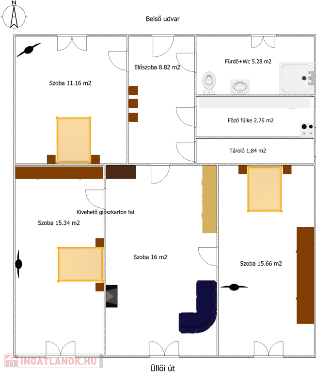
A lakás négy szobás, de az alaprajzon megjelölt gipszkarton kibontásával egy tágas nappalit nyerhetünk vissza.
A szobák méretei: 1.szoba: 11.16m2,
2.szoba: 15.34m2,
3.szoba: 16m2,
4.szoba: 15.66m2;

A fürdőszoba kivételével az egész lakás fel lett újítva két évvel ezelőtt.
A villanyhálózat, a burkolatok, a nyílászárók cserélve lettek. Álmennyezetbe szerelt világítás van az ingatlanba, így az eredeti 3.60m belmagasság 3 m-re csökkent. Ezzel a megoldással sokkal esztétikusabb lett ( szerelés tekintetében mindenképpen hasznos) és a fűtés-hűtés esetén kevesebb teret szükséges temperálni, amellett hogy a térérzet teljesen megmaradt.

A fűtés gázkonvektorral és villany fűtéssel megoldott.

Jelenleg rendelő-irodaként működik, így akár hasonló tevékenység a továbbiakban is működtethető.
Az ingatlan központi elhelyezkedéséből adódóan a közlekedés kiváló. A környéken bevásárlási lehetőségek, kisboltok, rendelő, óvodák, iskolák sétatávoságon belül elérhetőek, illetve a SOTE, a Nemzeti Közszolgálati Egyetem is.

Befektetésre vásárlás esetén, a környékbeli hasonló paraméterekkel rendelkező ingatlanok hosszú távú kiadás esetén megközelítőleg 330.000.-/hó + rezsi bérleti díjért adhatók ki, így öt éves szinten 19.800.000.- realizálható.

Bankfüggetlen hitelügyintézésben szakszerű segítséget tudunk nyújtani.
Az ingatlan előre egyeztetett időpontban tekinthető meg!

Lakás részletei

Ár: 98 000 000 Ft
Méret: 77 négyzetméter
Azonosító: 11520969
Cím: Üllői út
Városrész: Középső-Ferencváros
Rezsi: 30 000 Ft/hó
Emelet: 2. emelet
Építőanyag: Tégla
Fűtés jellege: Egyéb
Ingatlan állapota: Felújított
Komfort fokozat: Összkomfort
Építési év: 21-50 éves
Elhelyezkedés: Társasház
Tulajdonviszony: Saját
Kilátás: utcai
Kert: Nincs
Egész szobák: 4

Egyéb jellemzők

  • Erkély
  • Garázs
  • Klíma
  • Lift
  • Pince
  • Kertkapcsolat
  • Tároló
  • Kocsibeálló

Térkép

Hasonló lakás hirdetések

Eladó lakás

Budapest IX. ker

Ferencváros legdinamikusabban fejlődő részén egy 2022-ben épült társasház ...

Eladó lakás

Budapest IX. ker

Befektetők figyelem! Kiváló adottságú, jól alakítható lakás a IX. ...

Eladó lakás

Budapest IX. ker

Eladó nagypolgári, 3 szobás lakás a IX. kerület egyik legkedveltebb részén!Az ...

Eladó lakás

Budapest IX. ker

Ismerje meg ezt az új építésű, stílusos lakást Budapesten, az Aranyvirág ...

Hasonló lakás hirdetések

Eladó lakás

Budapest IX. ker

Ferencváros legdinamikusabban fejlődő részén egy 2022-ben épült társasház ...

Eladó lakás

Budapest IX. ker

Befektetők figyelem! Kiváló adottságú, jól alakítható lakás a IX. ...

Eladó lakás

Budapest IX. ker

Eladó nagypolgári, 3 szobás lakás a IX. kerület egyik legkedveltebb részén!Az ...

Eladó lakás

Budapest IX. ker

Ismerje meg ezt az új építésű, stílusos lakást Budapesten, az Aranyvirág ...