Eladó lakás Budapest V. ker 259 000 000 Ft

Leírás

Eladó luxuslakás a Parlament szomszédságában, Budapest belvárosában!

A Stollár Béla utcában, elegáns polgári ház 1. emeletén kínálunk megvételre egy 279 millió forintos, teljes körűen felújított, prémium minőségű lakást.

A 3,8 méteres belmagasság, a déli fekvés és a csendes utca kombinációja garantálja a világos, tágas tereket és a nyugodt otthoni hangulatot.

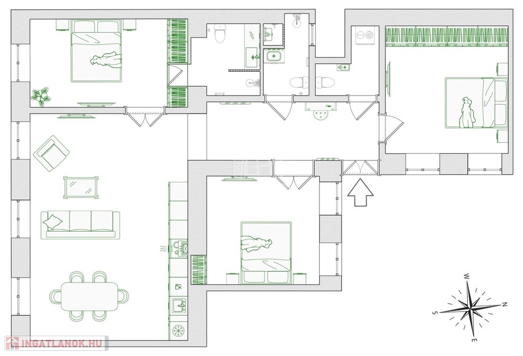
Kialakítás:
• impozáns nappali konyhával és étkezővel (37 m²)
• mester hálószoba saját fürdőszobával és gardróbbal
• további két hálószoba / iroda / gyerekszoba
• második fürdőszoba és külön vendégmosdó
• mosókonyha, tágas előszoba

A lakás minden részlete új: modern gépészet, energiahatékony fűtés és hűtés, tölgyfa parketta, designbútorok és minőségi háztartási gépek.

Elhelyezkedés:
A Parlament, a Bazilika, az Opera, a Margitsziget, bevásárló- és üzleti központok, valamint több neves iskola és egyetem mind sétatávolságban találhatók. A metró mindössze 3 perc alatt elérhető.

Ez az ingatlan ideális választás azok számára, akik a belváros szívében keresnek exkluzív, azonnal költözhető otthont – vagy akár értékálló befektetést.

Ár: 279 millió Ft

Lakás részletei

Ár: 259 000 000 Ft
Méret: 102 négyzetméter
Azonosító: 11559453
Irodai azonosító: 386414
Cím: Stollár Béla utca
Emelet: 1. emelet
Építőanyag: Tégla
Fűtés jellege: Cirkó
Ingatlan állapota: Felújított
Komfort fokozat: Luxus komfort
Építési év: 50 évesnél régebbi
Tulajdonviszony: Saját
Kilátás: utcai
Egész szobák: 4

Egyéb jellemzők

  • Erkély
  • Garázs
  • Lift
  • Pince
  • Tároló

Térkép

Hasonló lakás hirdetések

Eladó lakás

Budapest V. ker

Luxus a Parlament szomszédságában – eladó egy kivételes lakás a belváros ...

Eladó lakás

Budapest V. ker

Az V. kerület szívében, az Astoria és a Ferenciek tere között, a Kossuth ...

Eladó lakás

Budapest V. ker

Éljen Budapest szívében egy különleges építészeti értéket képviselő ...

Eladó lakás

Budapest V. ker, Belváros

V. Belváros. Elegáns, teljes körűen felújított lakás a Szervita téren Világos, ...

Hasonló lakás hirdetések

Eladó lakás

Budapest V. ker

Luxus a Parlament szomszédságában – eladó egy kivételes lakás a belváros ...

Eladó lakás

Budapest V. ker

Az V. kerület szívében, az Astoria és a Ferenciek tere között, a Kossuth ...

Eladó lakás

Budapest V. ker

Éljen Budapest szívében egy különleges építészeti értéket képviselő ...

Eladó lakás

Budapest V. ker, Belváros

V. Belváros. Elegáns, teljes körűen felújított lakás a Szervita téren Világos, ...