Eladó lakás Budapest VI. ker 159 990 000 Ft

Leírás

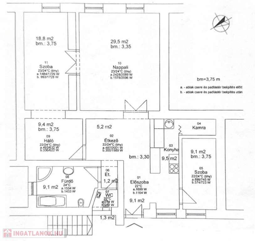
Budapesten, a belváros szívében, a Bazilika és az Opera közelében, eladó egy modern, tágas, lakás, mely az Ó utcában található. A harmadik emeleti ingatlan 102 m² alapterületű, 3 szobával rendelkezik, és teljes körű felújításon esett át, így az új tulajdonosok azonnal költözhetnek.

A lakásban minden műszaki és esztétikai felújítás megtörtént: az elektromos és vízvezetékeket, valamint a gázrendszert is kicserélték, emellett a padlóburkolatok és a nyílászárók is frissítésre kerültek. A komfortot egy kondenzációs gázkazán biztosítja, amely radiátorokon és padlófűtéssel egyaránt működik. A hűtésről két inverteres klíma gondoskodik, így a lakás minden évszakban kellemes hőmérsékletet biztosít.

A fürdőszoba igazi luxust kínál, hidromasszázs kád és zuhanykabin is megtalálható benne. A belső tér kiemelkedő belmagassággal rendelkezik, amely a tágasság érzetét növeli.

A lakás havi közös költsége 40.290 Ft, amelyből 17.850 Ft a felújítási alap. A ház rendezett állapotú, a közművek és az esővíz-elvezető csatornák is felújításon estek át.

A környék közlekedés szempontjából ideális, hiszen a metró minden vonala mindössze 5 perc sétával elérhető, így bárhova könnyedén eljuthatunk a városban. Az infrastruktúra kiemelkedő, számos bevásárlási, kulturális és oktatási lehetőség található a közvetlen közelben.

Várom hívását, akár hétvégén is!

N.Sz.

Ügyfeleink részére BANKFÜGGETLEN hitelügyintéző kollégáink szívesen nyújtanak segítséget, hitellel, vagy akár támogatásokkal kapcsolatban is!

Lakás részletei

Ár: 159 990 000 Ft
Méret: 102 négyzetméter
Azonosító: 11479322
Irodai azonosító: 378321
Cím: Ó utca
Emelet: 3. emelet
Építőanyag: Tégla
Fűtés jellege: Cirkó
Ingatlan állapota: Felújított
Komfort fokozat: Összkomfort
Építési év: 50 évesnél régebbi
Tulajdonviszony: Saját
Kilátás: utcai
Egész szobák: 3

Egyéb jellemzők

  • Erkély
  • Garázs
  • Lift
  • Pince
  • Tároló

Térkép

Hasonló lakás hirdetések

Eladó lakás

Budapest VI. ker

Eladásra kínálunk egy különleges, luxusminőségben felújított téglaépítésű ...

Eladó lakás

Budapest VI. ker

--- VI. KERÜLETBEN AZ ANDRÁSSY ÚTON A KODÁLY KÖRÖND KÖZELÉBEN ELADÓ ...

Eladó lakás

Budapest VI. ker

ELADÓ FRISSEN FELÚJÍTOTT, NAPFÉNYES 118 NM-ES LAKÁS A TERÉZ KÖRÚTON! - ...

Eladó lakás

Budapest VI. ker, Terézváros

*** PRÉMIUM ELHELYEZKEDÉS – BEFEKTETÉSNEK VAGY SAJÁT CÉLRA IS TÖKÉLETES ...

Hasonló lakás hirdetések

Eladó lakás

Budapest VI. ker

Eladásra kínálunk egy különleges, luxusminőségben felújított téglaépítésű ...

Eladó lakás

Budapest VI. ker

--- VI. KERÜLETBEN AZ ANDRÁSSY ÚTON A KODÁLY KÖRÖND KÖZELÉBEN ELADÓ ...

Eladó lakás

Budapest VI. ker

ELADÓ FRISSEN FELÚJÍTOTT, NAPFÉNYES 118 NM-ES LAKÁS A TERÉZ KÖRÚTON! - ...

Eladó lakás

Budapest VI. ker, Terézváros

*** PRÉMIUM ELHELYEZKEDÉS – BEFEKTETÉSNEK VAGY SAJÁT CÉLRA IS TÖKÉLETES ...