Eladó lakás Budapest VI. ker 259 000 000 Ft

Leírás

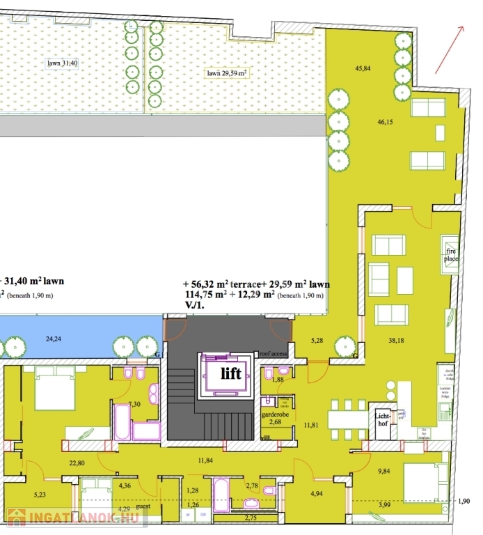
Folyamatosan bérbe adott lakás évi 6,6%-os megtérüléssel! Remek három háló szobás ingatlan 56m2 terasszal és kerttel és nettó 115m2 lakótérrel egy gyönyörű szecessziós épületben. Az elmúl 8 évben összesen 3 hónapig volt lakó nélkül az ingatlan! A lakás ára 259.000.000Ft
• ÉS MIÉRT ÉPP EZ A LEGMEGFELELŐBB VÁLASZTÁS?
• Kitűnő lokáció a Színháznegyed határán
• Remek közlekedési lehetőségek
• Őrzött mélygarázs
• Minden egyes lakás, intim, napsütéses terasszal rendelkezik
• Német precizitással és minőségi anyaghasználattal kivitelezett lakások
• Műemlék környezet egy igazi városi palotában
ELHELYEZKEDÉS:
Terézváros az egyik legsokszínűbb
Belvárosi kerület, a világ örökség részét képző
Andrássy út mellet számtalan nevezetesség és
látványosság található koncentráltan a
területen. Széles skálán mozognak a
kikapcsolódni vágyók lehetőségei a Városligeti
sport programoktól a szabadtéri kulturális
programokon át egészen a Magyar Állami
Operaházig. Legyen szó egy ebédről a Hajós
utcában vagy egy színházi előadással
egybekötött Liszt Ferenc téri vacsorával a
lehetőségek adottak. Sokszínű kulturális
intézmények, neves világ márkák és bevásárló
központok,
MEGKÖZELÍTHETŐSÉG
Fontos szempont volt a lakások akadálymentes megközelíthetősége, mely mára alap igény
minden korosztály számára így legyen szó babakocsiról vagy kerekes székről az utcaszintről
akadálymentesen megközelíthetőek az ingatlanok.
A biztonságos környezet szintén az elsődleges szempontok között szerepelnek a lakáskeresők
között, de mivel Terézváros Budapest legbiztonságosabb kerületei között van nyilván tartva
igazából a lakók komfort érzetét növeli, hogy az újonnan épült lakószintekre csak beléptető
kártya segítségével lehet bejutni a lifttel illetve lépcsőházból egyaránt
KÖZLEKEDÉS
A Teréz krt. közelségének köszönhetően pár perc alatt elérhető a 4-6 villamos vonal és a sárga
és kék metró. Ezen felül számtalan tömegközlekedési eszköz elérhető a vasút mellett.

Lakás részletei

Ár: 259 000 000 Ft
Méret: 121 négyzetméter
Azonosító: 11164701
Irodai azonosító: 346089
Cím: Eötvös utca
Erkély mérete: 86.00 négyzetméter
Emelet: 5. emelet
Építőanyag: Tégla
Fűtés jellege: Cirkó
Ingatlan állapota: Kitűnő
Komfort fokozat: Dupla komfort
Építési év: 11-20 éves
Tulajdonviszony: Saját
Kilátás: utcai
Egész szobák: 3
Fél szobák: 1

Egyéb jellemzők

  • Erkély
  • Garázs
  • Lift
  • Pince
  • Tároló
  • Kocsibeálló

Térkép

Hasonló lakás hirdetések

Eladó lakás

Budapest VI. ker

Új Építésű Lakás Egyedi Enteriőrrel Az Andrássy út közelségében, ...

Eladó lakás

Budapest VI. ker

BUDAPEST VI. kerületében, a Deák Ferenc tér szomszédságában, eladó ...

Eladó lakás

Budapest VI. ker, Terézváros

Eladó nagypolgári lakás a Kodály köröndnél, páratlan Andrássy úti ...

Eladó lakás

Budapest VI. ker

A VI. kerület frekventált részén, az Oktogon közvetlen közelében kínáljuk ...

Hasonló lakás hirdetések

Eladó lakás

Budapest VI. ker

Új Építésű Lakás Egyedi Enteriőrrel Az Andrássy út közelségében, ...

Eladó lakás

Budapest VI. ker

BUDAPEST VI. kerületében, a Deák Ferenc tér szomszédságában, eladó ...

Eladó lakás

Budapest VI. ker, Terézváros

Eladó nagypolgári lakás a Kodály köröndnél, páratlan Andrássy úti ...

Eladó lakás

Budapest VI. ker

A VI. kerület frekventált részén, az Oktogon közvetlen közelében kínáljuk ...