Eladó lakás Budapest VI. ker 99 000 000 Ft

Leírás


C I T Y C Λ R T E L

INTERNATIONAL LUXURY REAL ESTATE AGENCY

bemutatja:



Eladásra kínálunk egy igazi különlegességet Budapest leghíresebb sugárútján, a magyar Champs-Élysées-kéntemlegetett Andrássy úton, közvetlenül a Cseh Nagykövetség szomszédságában.

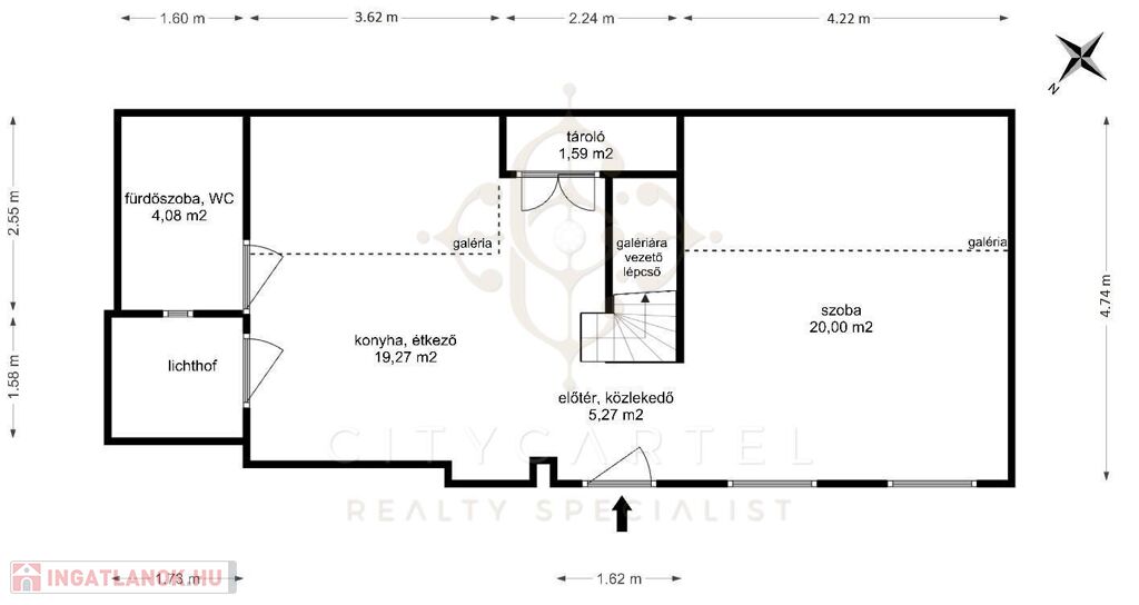
Ez a tulajdoni lapon 51 nm-es, valójában 18 nm galériával és 4 nm saját lichthoffal kiegészülő, összesen 73 m² hasznos alapterületű magasföldszinti lakás a történelem eleganciáját ötvözi a kortárs luxussal.

 

Történelmi hangulat – modern technológia

A lakás 2017-ben teljes körű felújításon esett át, lakberendező közreműködésével, prémium anyagok és harmonikus enteriőrtervezés mentén.

A felújítás során új gépészet, modern vezeték- és fűtésrendszer, valamint padlófűtés és kondenzációs gázkazán került beépítésre.

A külső nyílászárók hőszigetelő üvegezést kaptak, a beépített bútorok egyedileg készültek.

A falakat 19. századi Andrássy úti látképek díszítik, az étkező lámpatartója és a lépcső korlátja pedig eredeti, restaurált darabok – a ház történetének stílusában újragondolva.

 

Gondosan megtervezett terek

A bejáraton belépve egy tágas, légies tér fogad: balra a konyha és étkező, jobbra a nappali és a dolgozósarok kapott helyet.

A nappaliban térdfallal leválasztott munkaterület is kialakításra került, a lépcső alatt pedig praktikus tárolóktalálhatók.

A fürdőszoba zuhanyzós, egy légtérben a WC-vel, míg a háztartási helyiség mosó- és szárítógéppel felszerelt.

A lakáshoz tartozik egy 4 nm-es, kizárólagos használatú lichthof, amely intim, hangulatos, megvilágított kiülőkéntfunkcionál – egy csendes, privát menedék a belváros közepén.

 

Galéria – funkció és stílus tökéletes harmóniája

A nagy belmagasság lehetővé tette egy 18 nm-es galéria kialakítását, amely két külön funkcionális részből áll:

a nappali felett egy kb. 9 nm-es zárható hálószoba, radiátoros fűtéssel és franciaerkélyes kilátással a nappalira,

a konyha felett egy nyitott, üvegkorlátos galéria, vendégággyal és beépített gardróbbal.

A teljes konyha gépesített: sütő, indukciós főzőlap, mosogatógép, hűtő-fagyasztó, valamint riasztórendszer és hűtő-fűtő klíma is beépítésre került.

 

Befektetésként is ideális választás

A lakás kifogástalan műszaki és esztétikai állapotban van, jelenleg is megbízható bérlő lakja havi 420 000 Ft bérleti díj mellett.

A per- és tehermentes ingatlan azonnal birtokba vehető.

 

Ha Ön is részese szeretne lenni az Andrássy út történelmi eleganciájának ez a lakás ideális választás.

A stílus, a lokáció és az értékállóság itt valóban kézzel fogható.



 

Foglaljon időpontot személyes megtekintésre!

 

Ára: 99.000.000 Ft.

 

DR. BOZÓ JÁZON

Értékesítési munkatárs

Luxury Specialist

 

+36 30 815 2517

b.jazon@citycartel.hu

 

CITY CARTEL BUDA KFT.

CITY CARTEL FRANCHISE HUNGARY KFT.

1118 BUDAPEST, HEGYALJA ÚT 54.



1026 BUDAPEST, SZILÁGYI ERZSÉBET FASOR 121.

BUDAGYÖNGYE BEVÁSÁRLÓKÖZPONT

Lakás részletei

Ár: 99 000 000 Ft
Méret: 51 négyzetméter
Azonosító: 11577052
Irodai azonosító: 10825502
Emelet: Földszint
Építőanyag: Tégla
Fűtés jellege: Központi
Ingatlan állapota: Kitűnő
Komfort fokozat: Luxus komfort
Egész szobák: 2

Egyéb jellemzők

  • Lift

Hasonló lakás hirdetések

Eladó lakás

Budapest VI. ker

Exkluzív kivitelű luxus apartman A kubatúrába integrálódó zöld teraszok, ...

Eladó lakás

Budapest VI. ker

VI. kerületben, a Nyugati tér vonzáskörzetében kínálom megvételre ezt ...

Eladó lakás

Budapest VI. ker

VI.kerület Bajza utcában kínálunk eladásra egy 3. emeleti, 2 szobás, ...

Eladó lakás

Budapest VI. ker

Bazilikához közel a 6. kerület Dessewffy utca egyik legszebb, liftes házának ...

Hasonló lakás hirdetések

Eladó lakás

Budapest VI. ker

Exkluzív kivitelű luxus apartman A kubatúrába integrálódó zöld teraszok, ...

Eladó lakás

Budapest VI. ker

VI. kerületben, a Nyugati tér vonzáskörzetében kínálom megvételre ezt ...

Eladó lakás

Budapest VI. ker

VI.kerület Bajza utcában kínálunk eladásra egy 3. emeleti, 2 szobás, ...

Eladó lakás

Budapest VI. ker

Bazilikához közel a 6. kerület Dessewffy utca egyik legszebb, liftes házának ...