Eladó lakás Budapest VII. ker 68 500 000 Ft

Leírás

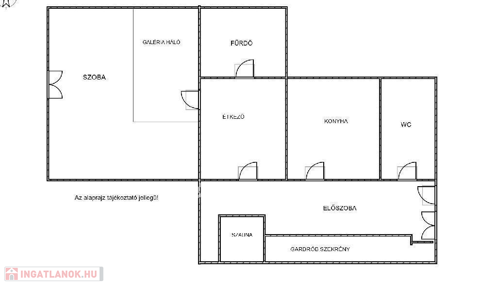
Budapest VII. kerület Erzsébet város szívében eladó egy 41 m2-es, felújított, + 9 nm galériás ,első emeleti lakás. A lakás néhány éve teljes felújításon esett át, minden vezeték a falban ki lett cserélve. Gáz kombi kazán biztosítja a központi fűtést és melegvizet is. A lakásban hűtő fűtő klíma gondoskodik a mindig temperált hőmérsékletről. A lakás egyedileg legyártott bútorokkal berendezett, minden centimért kihasználva. + 9 nm galéria biztosítja az intim hálóhelyet. A szoba ablakából rálátunk a New York Kávéházra. Totál belváros, jó közlekedéssel. Az előszobában még egy infraszauna is helyet kapott, mely külön megvásárolható.
Amennyiben érdekli a lakás, kérem ne habozzon, Hívjon a hér bármely napján, reggel 8 és este 8 között.

Lakás részletei

Ár: 68 500 000 Ft
Méret: 41 négyzetméter
Azonosító: 11550114
Irodai azonosító: M296568-4865385
Cím: Budapest 7. ker.i 41 nm-es lakás eladó
Emelet: 1. emelet
Építőanyag: Tégla
Fűtés jellege: Cirkó
Ingatlan állapota:
Komfort fokozat: Összkomfort
Építési év: 50 évesnél régebbi
Kilátás: utcai
Egész szobák: 2

Egyéb jellemzők

  • Klíma
  • Lift

Térkép

Hasonló lakás hirdetések

Eladó lakás

Budapest VII. ker

ELADÓ LAKÁS A DOHÁNY UTCÁBAN! A LAKÁS JELLEMZŐI: - Liftes társasház ...

Eladó lakás

Budapest VII. ker

VII. kerületben, a Dob utca elején, közvetlenül a Gozsdu-udvar vonzáskörzetében ...

Eladó lakás

Budapest VII. ker

VII. kerületben, a Dob utca elején, közvetlenül a Gozsdu-udvar vonzáskörzetében ...

Eladó lakás

Budapest VII. ker

Kitünő vétel a Városliget szomszédságában! Tágas, napfényes, új nyílászárókkal ...

Hasonló lakás hirdetések

Eladó lakás

Budapest VII. ker

ELADÓ LAKÁS A DOHÁNY UTCÁBAN! A LAKÁS JELLEMZŐI: - Liftes társasház ...

Eladó lakás

Budapest VII. ker

VII. kerületben, a Dob utca elején, közvetlenül a Gozsdu-udvar vonzáskörzetében ...

Eladó lakás

Budapest VII. ker

VII. kerületben, a Dob utca elején, közvetlenül a Gozsdu-udvar vonzáskörzetében ...

Eladó lakás

Budapest VII. ker

Kitünő vétel a Városliget szomszédságában! Tágas, napfényes, új nyílászárókkal ...