Eladó lakás Budapest VII. ker 89 000 000 Ft

Leírás

Modern igényesen felújított lakás eladó!

Két lakássá alakított ingatlan " A" jelű lakását kínáljuk megvételre a Damjanich utca kedvelt részén, liftes ház 2. emeletén.

Az ingatlan teljeskörűen felújított, minőségi bútorokkal és gépekkel berendezett, minden részletét gondosan megtervezték.
A lakás világos, tágas érzetet nyújt, minden helyiségén ablak van.
Használati megosztással kerül értékesítésre.

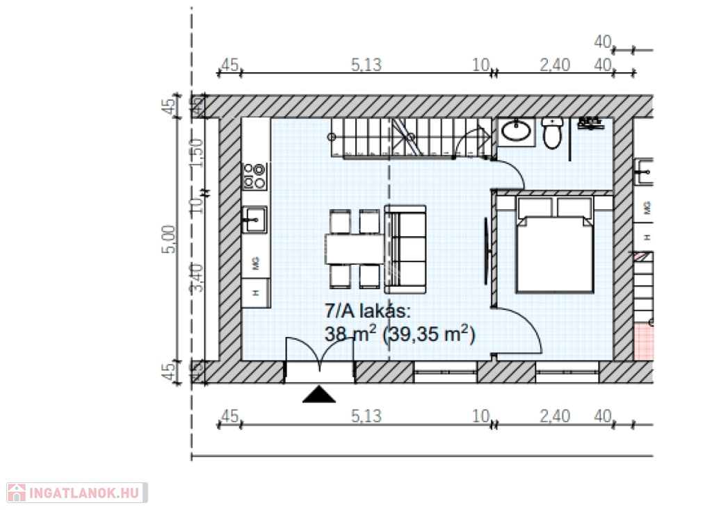
" A"- lakás rendkívül jó beosztású, hasznos alapterülete 61 nm.
- alapterület 38 nm.
- beosztása:
- előtér,
- konyha + étkező + nappali,
- hálószoba,
- fürdőszoba +WC,

- teljesértékű galéria 23 nm.
- beosztása:
- hálószoba,
- gardrób szoba,
Ebben a lakásban a fűtés gáz Mika kazánnal történik +1 db hűtő-fűtő klíma van.
A fűtés, villanybojler, redőnyök, lámpák, mosógép távolról vezérelhető.
A konyhák gépesítettek.
A lakás külön mérőórákkal rendelkezik.

Az ingatlan befektetésnek is kíváló, könnyen kiadható az Állatorvosi Egyetem és a turisztikai látványosságok közelsége miatt.
A környék rendkívül kedvelt, a Városliget, a Hősök tere és az Andrássy út néhány perc sétával elérhető.

Amivel segítjük az Ön ingatlanvásárlását:
- ingyenes hitelügyintézés,
- jogi háttér,
- földhivatali ügyintézés,
- energetikai tanúsítvány,
- a vevő számára az ingatlanközvetítés ingyenes.

Irodánk 30 éves szakmai tapasztalattal áll ügyfelei rendelkezésére!

Várom szíves megkeresését!

Lakás részletei

Ár: 89 000 000 Ft
Méret: 61 négyzetméter
Azonosító: 11583713
Irodai azonosító: 390240
Cím: Ligetváros
Emelet: 2. emelet
Építőanyag: Tégla
Fűtés jellege: Héra
Ingatlan állapota: Felújított
Komfort fokozat: Összkomfort
Építési év: 50 évesnél régebbi
Tulajdonviszony: Saját
Kilátás: udvari
Egész szobák: 3

Egyéb jellemzők

  • Erkély
  • Garázs
  • Lift
  • Pince
  • Tároló

Térkép

Hasonló lakás hirdetések

Eladó lakás

Budapest VII. ker

!DOHÁNY UTCÁBAN PRÉMIUM LAKÁS KIVÉTELES ÁRON! BUDAPEST VII. KERÜLETBEN ...

Eladó lakás

Budapest VII. ker

SZUPER BEFEKTETÉS! KÉT KÜLÖN ÁLLÓ, FELÚJÍTOTT LAKÁS ELADÓ! VII. kerületben, ...

Eladó lakás

Budapest VII. ker

VII. kerületben, a Klauzál utcában kínáljuk megvételre ezt az II. emeleti, ...

Eladó lakás

Budapest VII. ker, Erzsébetváros

Budapest VII kerületében - ahol a Városliget zebrán történő gyalogos ...

Hasonló lakás hirdetések

Eladó lakás

Budapest VII. ker

!DOHÁNY UTCÁBAN PRÉMIUM LAKÁS KIVÉTELES ÁRON! BUDAPEST VII. KERÜLETBEN ...

Eladó lakás

Budapest VII. ker

SZUPER BEFEKTETÉS! KÉT KÜLÖN ÁLLÓ, FELÚJÍTOTT LAKÁS ELADÓ! VII. kerületben, ...

Eladó lakás

Budapest VII. ker

VII. kerületben, a Klauzál utcában kínáljuk megvételre ezt az II. emeleti, ...

Eladó lakás

Budapest VII. ker, Erzsébetváros

Budapest VII kerületében - ahol a Városliget zebrán történő gyalogos ...