Eladó lakás Budapest VIII. ker 114 900 000 Ft

Leírás

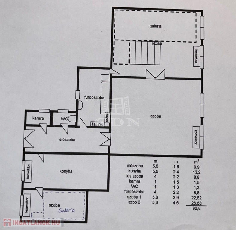
Eladásra kínálunk a Mátyás téren, egy 90 m²-es (valóságban 93 m²-es), utcai és udvari nézetű, jó állapotú, világos lakást. Az ingatlan a 2. emeleten található, liftes társasházban, amelynek külső homlokzata igényesen karbantartott.

A lakás 2+1 szobás, külön konyhával, valamint nagy belmagassággal rendelkezik. Az otthon különlegessége a dupla galéria, amely kiválóan növeli a hasznos alapterületet, így ideális lehet akár dolgozósarok, hálórész vagy tároló kialakítására. A műanyag nyílászárók korszerűek, a fűtést gázkonvektorok biztosítják.

A környék folyamatosan fejlődik: közelben található iskola, óvoda, játszótér, boltok, kávézók, gyógyszertár, minden fontos szolgáltatás könnyen elérhető.
A közlekedés szintén kiváló, a metrómegálló pár perc sétára található.

Ez az ingatlan ideális választás mindazoknak, akik tágas, jó elosztású lakást keresnek egy értékálló, megújuló városrészben.

Jöjjön el, nézze meg, és tegyen ajánlatot!

INGYENES hitel tanácsadás!
BANKFÜGGETLEN hitelcentrumunk minden elérhető bank és hitelintézet ajánlatát versenyezteti az Ön kedvéért, ráadásul DÍJMENTESEN.

ID:386369

Lakás részletei

Ár: 114 900 000 Ft
Méret: 90 négyzetméter
Azonosító: 11609976
Irodai azonosító: 390308
Cím: Mátyás tér
Emelet: 2. emelet
Építőanyag: Tégla
Fűtés jellege: Konvektoros
Ingatlan állapota:
Komfort fokozat: Összkomfort
Építési év: 50 évesnél régebbi
Tulajdonviszony: Saját
Kilátás: utcai
Egész szobák: 2
Fél szobák: 1

Egyéb jellemzők

  • Erkély
  • Garázs
  • Lift
  • Pince
  • Tároló

Térkép

Hasonló lakás hirdetések

Eladó lakás

Budapest VIII. ker

VIII. kerület Corvin-negyedben, néhány perc sétára a metrótól és a ...

Eladó lakás

Budapest VIII. ker

VIII. kerület fejlődő részén ÚJ ÉPÍTÉSŰ LAKÁSOK eladók! Parkosított ...

Eladó lakás

Budapest VIII. ker

PRÉMIUM ÉLETÉRZÉS A CORVIN NEGYEDBEN, 2 HÁLÓ + AMERIKAI KONYHÁS NAPPALIS, ...

Eladó lakás

Budapest VIII. ker

NAGYPOLGÁRI ELEGANCIA A KÁLVIN TÉRNÉL! KÜLÖNLEGES LEHETŐSÉG! Eladó ...

Hasonló lakás hirdetések

Eladó lakás

Budapest VIII. ker

VIII. kerület Corvin-negyedben, néhány perc sétára a metrótól és a ...

Eladó lakás

Budapest VIII. ker

VIII. kerület fejlődő részén ÚJ ÉPÍTÉSŰ LAKÁSOK eladók! Parkosított ...

Eladó lakás

Budapest VIII. ker

PRÉMIUM ÉLETÉRZÉS A CORVIN NEGYEDBEN, 2 HÁLÓ + AMERIKAI KONYHÁS NAPPALIS, ...

Eladó lakás

Budapest VIII. ker

NAGYPOLGÁRI ELEGANCIA A KÁLVIN TÉRNÉL! KÜLÖNLEGES LEHETŐSÉG! Eladó ...