Eladó lakás Budapest VIII. ker 347 928 Euro

Leírás

TÁGAS CSALÁDI OÁZIS ÓRIÁSI ERKÉLLYEL: PRÉMIUM A+ LAKÁS A KÁLVÁRIA TÉRNÉL

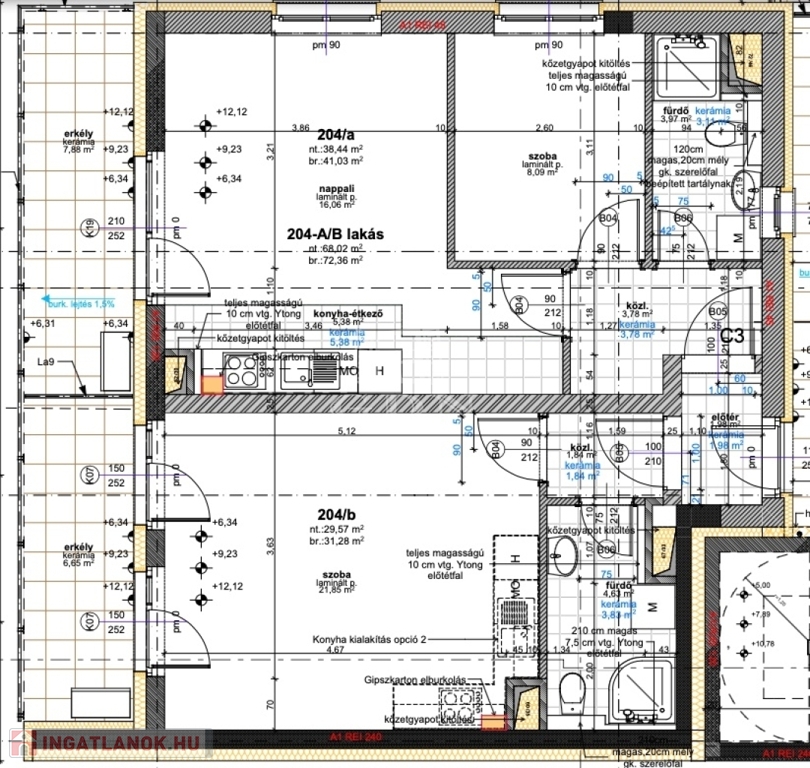
Eladó egy kiemelkedő adottságú, 68 négyzetméteres, 2. emeleti, 2 szobás, új építésű lakás a VIII. kerület legszebb, rehabilitált részén. Az ingatlan ékköve a 8 négyzetméteres, tágas erkély, amely valódi kiterjesztése a nappalinak. Ez a lakás azoknak készült, akik nem akarnak kompromisszumot kötni a belvárosi közelség és a tágas, élhető terek között.

A 2026-os átadású lakás elosztása ideális családok részére: nagyvonalú közösségi tér, szeparált hálószobák és duplakomfort biztosítja a zavartalan mindennapokat. A modern gépészet és a kiváló szigetelés révén a fenntartási költségek egy jóval kisebb lakás rezsijével vetekednek.

Műszaki tartalom:
- Energetikai besorolás: A+ (rezsibiztos otthon)
- Fűtés és hűtés: Levegő-víz hőszivattyú, egyedi Panasonic fan-coil rendszer minden helyiségben.
- Erkély: 8 nm-es, fedett kültéri pihenőhely.
- Szigetelés: 20 cm-es prémium homlokzati hőszigetelés.

KÖRNYÉK ÉS LOKÁCIÓ
A Kálvária tér megújuló parkjai, játszóterei és az egyetemek (NKE, Semmelweis) közelsége miatt ez a környék a fiatal családok és értelmiségiek kedvence. A közlekedés kiváló: M4 metró, 4-6-os villamos és számos buszjárat segíti a gyors városi mozgást.

A lakáshoz a teremgarázsban saját parkolóhely vásárolható 10 millió forintos irányáron. Az ingatlan modern berendezéssel, 2026. áprilisi átadással kerül birtokba.

Várom megtisztelő hívását a hét bármely napján a részletes műszaki adatokkal és a megtekintéssel kapcsolatban.

Lakás részletei

Ár: 347 928 Euro
Méret: 68 négyzetméter
Azonosító: 11607841
Irodai azonosító: 393996
Cím: Kálvária tér
Emelet: 2. emelet
Építőanyag: Tégla
Fűtés jellege: Hőszivattyú
Ingatlan állapota: Kitűnő
Komfort fokozat: Összkomfort
Építési év: Új építésű
Tulajdonviszony: Saját
Kilátás: utcai
Egész szobák: 2

Egyéb jellemzők

  • Erkély
  • Garázs
  • Lift
  • Pince
  • Tároló

Térkép