Eladó lakás Budapest VIII. ker 76 000 000 Ft

Leírás

Projekt
1082 Budapest BAROSS u. 106.

Modern lakások Józsefváros fő utcájában, a Baross utcában.

Az Ingatlan praktikusan kialakított, emeleti erkélyes vagy kertkapcsolatos lakásai minőségi és kényelmes életteret jelentenek családoknak és egyedülállóknak egyaránt. A karnyújtásnyira található Corvin Sétány és Corvin Plaza számos kikapcsolódási- és vásárlási lehetőséget, valamint szolgáltatást kínál: mozi, éttermek, borozók, élelmiszerboltok, pékségek, zöldséges, bank, posta, patika, szépségszalon, ruhaszervíz, mosoda, de akár fogorvos is megtalálható.

Az Baross 106 Residence lakásainak hűtését-fűtését mennyezethűtés-fűtés panelek szolgáltatják, amelynek teljesítményét a zárófödémen elhelyezett hőszivattyú biztosítja. A rendszer megújuló energiát használ és a nagy méretű, mennyezetről leadott hősugárzó technológiának köszönhetően egyenletes hűtést-fűtést biztosít, amely emeli a lakások hőkomfort érzetét.

A korábbi, egy területre irányított hűtő-fűtő rendszerektől eltérően az egyenletes hőleadás következtében a lakásban nem alakulnak ki hidegebb vagy melegebb pontok. A helyiségekben sem radiátorok sem klímaegységek nem kerülnek kiépítésre, így a szobák könnyebben berendezhetőek és a ház homlokzatát sem terhelik a külső klímaegységek.

Az ingatlan 869 nm-en helyezkedik el 60%-os beépítettséggel. 8 szinten, 25 méteres építménymagasággal.

A különböző szinteken elhelyezkedő udvar rész parkosításon esik át.

A lakóegységben 40-44 lakás helyezkedik el 2077 nm-en változatos méretekben a 31 nm-től 123 nm-ig az 1 szobástól az 4 szobásig. A kertkapcsolatostól az erkélyesen át a hatalmas tetőteraszosig.

A lakások kialakításánál kiemelten figyeltek a jó bútorozhatóságra, kényelmes lakótérre. Az lakáson belül még választási lehetőség van a burkolatok, szobaszínek tekintetében.

Várható birtokbaadás 2025 2. negyedév.

A házban rendelkezésre állnak, korlátozott darabszámban a parkolóhelyek és a saját tárolók.

A parkolóhelyek megközelítését két autólift teszi kényelmessé és megbízhatóvá.



Fizetési ütemezés : 60-30-10 % készültségi foknak megfelelően. De alkalmazkodunk ügyfeleink egyéni igényeihez.



Bővebb információk : baross106.hu és Hangya Péter +36702721496 hangya.peter@region.hu

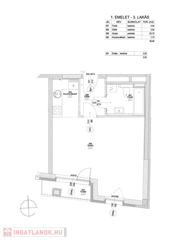
Lakás részletei

Ár: 76 000 000 Ft
Méret: 45 négyzetméter
Azonosító: 11490102
Irodai azonosító: 379056
Cím: Baross utca
Emelet: 2. emelet
Építőanyag: Tégla
Fűtés jellege: Házközponti (egyedi mérővel)
Ingatlan állapota: Kitűnő
Komfort fokozat: Összkomfort
Építési év: Új építésű
Tulajdonviszony: Saját
Kilátás: utcai
Egész szobák: 2

Egyéb jellemzők

  • Erkély
  • Garázs
  • Lift
  • Pince
  • Tároló

Térkép

Hasonló lakás hirdetések

Eladó lakás

Budapest VIII. ker

Projekt 1082 Budapest BAROSS u. 106. Modern lakások Józsefváros fő utcájában, ...

Eladó lakás

Budapest VIII. ker

Projekt 1082 Budapest BAROSS u. 106. Modern lakások Józsefváros fő utcájában, ...

Eladó lakás

Budapest VIII. ker

Projekt 1082 Budapest BAROSS u. 106. Modern lakások Józsefváros fő utcájában, ...

Eladó lakás

Budapest VIII. ker

ÚJ ÉPÍTÉSŰ!! CORVIN-NEGYEDBEN,, MAGAS EMELETI, 2 ERKÉLYES, KLIMATIZÁLT ...

Hasonló lakás hirdetések

Eladó lakás

Budapest VIII. ker

Projekt 1082 Budapest BAROSS u. 106. Modern lakások Józsefváros fő utcájában, ...

Eladó lakás

Budapest VIII. ker

Projekt 1082 Budapest BAROSS u. 106. Modern lakások Józsefváros fő utcájában, ...

Eladó lakás

Budapest VIII. ker

Projekt 1082 Budapest BAROSS u. 106. Modern lakások Józsefváros fő utcájában, ...

Eladó lakás

Budapest VIII. ker

ÚJ ÉPÍTÉSŰ!! CORVIN-NEGYEDBEN,, MAGAS EMELETI, 2 ERKÉLYES, KLIMATIZÁLT ...