Eladó lakás Budapest VIII. ker 79 000 000 Ft

Leírás

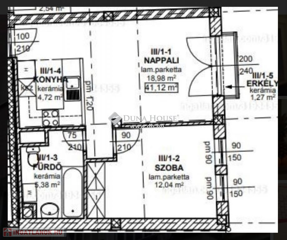
Eladó VIII. kerületben, egy 2014-ben épült ház 2. emeletén, 42 nm-es , !!

világos, jó elrendezésű, hangulatos, erkélyes, tehermentes lakást,AKÁR TELJES BÚTORZATTAL!A lakás belső elrendezése különösen előnyös: tágas és megfelelően elosztott, így optimális kényelmet biztosít lakói számára. A világosság és az erkélyes kialakítás minden évszakban biztosítja, hogy otthona meghitt, világos és barátságos hely legyen.A lakás fűtéséről egy házközponti rendszer gondoskodik, amely egyedi méréssel van ellátva, így a fűtési költség pontosan a tényleges fogyasztás alapján kerül kiszámolásra, lehetővé téve a költséghatékonyabb üzemeltetést.Az ingatlan rendelkezik hívó típusú lifttel , ami könnyedén elérhetővé teszi a lakást az épületen belül. Az erkélyről és az ablakokból nyíló utcai nézet tovább emeli az ingatlan vonzerejét, így válik igazán otthonossá és élhetővé. Ez a csodálatos otthon a város szívében található, közel minden lényeges infrastrukturális és kulturális szolgáltatáshoz, amely egy modern városi élethez szükséges.Összességében ez a lakás tökéletes választás lehet azok számára, akik a város központjában keresnek egy kényelmes, modern és hangulatos otthont. Ne hagyja ki ezt a ritka lehetőséget, hogy egy ilyen kiváló tulajdonságokkal rendelkező lakás legyen az Ön új otthona! Ha érdekli ez az ingatlan, lépjen kapcsolatba velem, és tegyük meg az első lépéseket otthona megvásárlása felé!

Referencia szám: LK037844

Lakás részletei

Ár: 79 000 000 Ft
Méret: 42 négyzetméter
Azonosító: 11540071
Irodai azonosító: LK037844-4957104
Cím: 42 nm-es lakás eladó Budapest 8. ker.
Emelet: 2. emelet
Építőanyag: Tégla
Fűtés jellege: Házközponti (egyedi mérővel)
Ingatlan állapota: Kitűnő
Komfort fokozat: Összkomfort
Építési év: 11-20 éves
Egész szobák: 2

Egyéb jellemzők

  • Erkély
  • Lift

Térkép

Hasonló lakás hirdetések

Eladó lakás

Budapest VIII. ker

8. Nagyon jó elosztású 100 n-es 3+1 szobás lakás eladó. Felújított, ...

Eladó lakás

Budapest VIII. ker, Népszínház negyed

Eladó a VIII.Kerületben a Népszínház utcában egy teljeskörűen felújított ...

Eladó lakás

Budapest VIII. ker

ÚJ ÉPÍTÉSŰ!! CORVIN-NEGYEDBEN,, MAGAS EMELETI, 2 ERKÉLYES, KLIMATIZÁLT ...

Eladó lakás

Budapest VIII. ker

Projekt 1082 Budapest BAROSS u. 106. Modern lakások Józsefváros fő utcájában, ...

Hasonló lakás hirdetések

Eladó lakás

Budapest VIII. ker

8. Nagyon jó elosztású 100 n-es 3+1 szobás lakás eladó. Felújított, ...

Eladó lakás

Budapest VIII. ker, Népszínház negyed

Eladó a VIII.Kerületben a Népszínház utcában egy teljeskörűen felújított ...

Eladó lakás

Budapest VIII. ker

ÚJ ÉPÍTÉSŰ!! CORVIN-NEGYEDBEN,, MAGAS EMELETI, 2 ERKÉLYES, KLIMATIZÁLT ...

Eladó lakás

Budapest VIII. ker

Projekt 1082 Budapest BAROSS u. 106. Modern lakások Józsefváros fő utcájában, ...