Eladó lakás Budapest XI. ker 189 000 000 Ft

Leírás

A XI. kerület egyik legkeresettebb, zöldövezeti részén, a Kék-tó környékén kínálunk eladásra egy két szintes, kertkapcsolatos, új építésű lakást igényes társasházban.
Az ingatlan ideális választás azoknak, akik nyugodt környezetben, de a város közelségét élvezve keresnek magas műszaki tartalommal rendelkező otthont.

2. számú lakás főbb jellemzői:
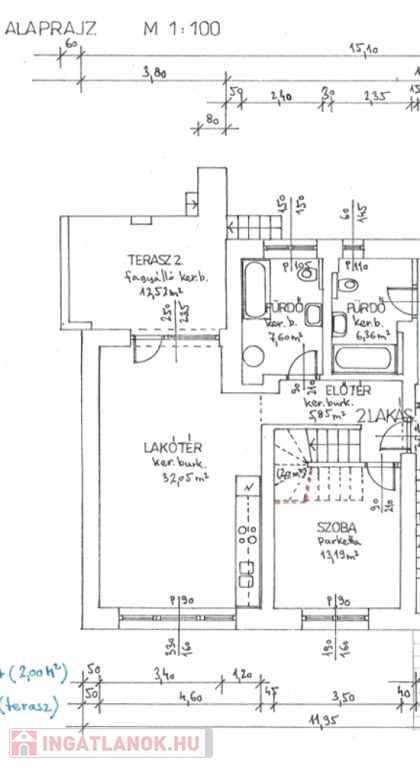
Lakótér: 118 m², belső kétszintes kialakítással

Saját kert: 200 m², teljesen leszeparált, kizárólagos használatú

Terasz: 17,5 m² – ideális reggeli kávézáshoz vagy családi grillezésekhez

Tároló 12 nm külön bejáratú a kertből.

Helyiségek elrendezése: kiváló belső elosztás, tágas, világos terek

Hangszigetelés: lakások közötti falak extra hangszigeteléssel ellátva

Műszaki tartalom:
Energia hatékony megoldások: H-tarifás hőszivattyús rendszer, amely padlófűtést és mennyezethűtést biztosít

Modern gépészet: paneles mennyezethűtési rendszer, prémium minőségű külső és belső hőszigeteléssel

Prémium kategóriás külső és belső burkolatok, melyek eleganciát és tartósságot kölcsönöznek az otthonoknak.

Minőségi kivitelezés: megbízható, referenciákkal rendelkező beruházó; hosszú távú garanciával

Elhelyezkedés és környezet:
Kelen-völgy zöldövezeti, csendes utcájában

Családbarát környék, rendezett, biztonságos környezet

Kiváló infrastruktúra: iskola, óvoda, bevásárlási lehetőségek, tömegközlekedés néhány perc sétára

Ez az ingatlan ideális választás családoknak, természetkedvelőknek vagy azoknak, akik kompromisszummentes otthont keresnek a város szívéhez közel.

Ne maradjon le erről a különleges lehetőségről – vegye fel velünk a kapcsolatot még ma!

Lakás részletei

Ár: 189 000 000 Ft
Méret: 116 négyzetméter
Azonosító: 11572801
Irodai azonosító: 388537
Cím: Van egy Kék tó a ház alatt..
Emelet: Félemelet
Építőanyag: Tégla
Fűtés jellege: Hőszivattyú
Ingatlan állapota: Kitűnő
Komfort fokozat: Dupla komfort
Építési év: Új építésű
Tulajdonviszony: Saját
Kilátás: kertre néző
Egész szobák: 4
Fél szobák: 1

Egyéb jellemzők

  • Erkély
  • Garázs
  • Lift
  • Pince
  • Tároló

Térkép

Hasonló lakás hirdetések

Eladó lakás

Budapest XI. ker

Csend és nyugalom a XI. kerületben - Luxuskategóriás lakás eladó! A ...

Eladó lakás

Budapest XI. ker

P21694 XI., KELENVÖLGYBEN ÚJ ÉPÍTÉSŰ 4 SZOBÁS LAKÁS SAJÁT KERTTEL ...

Eladó lakás

Budapest XI. ker

A XI. kerület zöldövezeti részén az Őrmezei úton épül BUDAPEST ELSŐ ...

Eladó lakás

Budapest XI. ker

A XI. kerület zöldövezeti részén az Őrmezei úton épül BUDAPEST ELSŐ ...

Hasonló lakás hirdetések

Eladó lakás

Budapest XI. ker

Csend és nyugalom a XI. kerületben - Luxuskategóriás lakás eladó! A ...

Eladó lakás

Budapest XI. ker

P21694 XI., KELENVÖLGYBEN ÚJ ÉPÍTÉSŰ 4 SZOBÁS LAKÁS SAJÁT KERTTEL ...

Eladó lakás

Budapest XI. ker

A XI. kerület zöldövezeti részén az Őrmezei úton épül BUDAPEST ELSŐ ...

Eladó lakás

Budapest XI. ker

A XI. kerület zöldövezeti részén az Őrmezei úton épül BUDAPEST ELSŐ ...