Eladó lakás Budapest XI. ker 74 900 000 Ft

Leírás

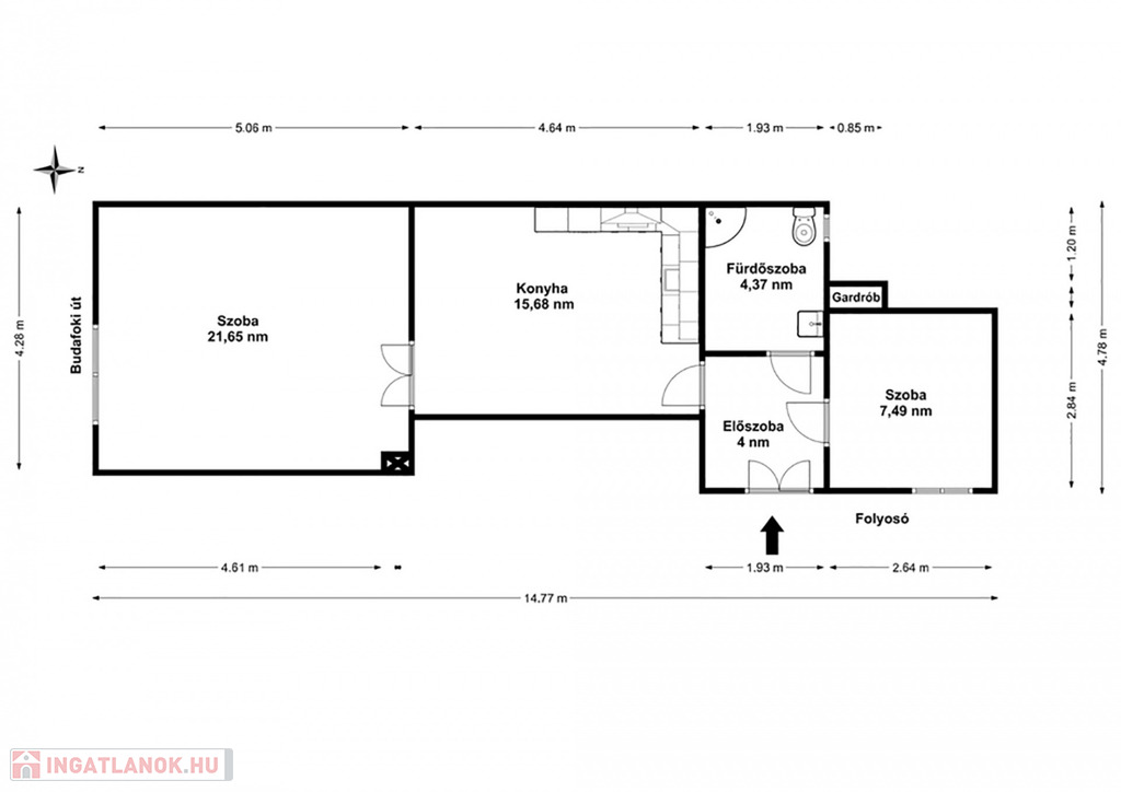
Eladó egy 51 m²-es, kétkülön bejáratú szobával rendelkező lakás Budapest XI. kerületében, a Budafoki úton, egy század elején épült társasházban.

A ház 1908-ban épült, klasszikus, körfolyosós kialakítású épület, állapota átlagos, ugyanakkor jól tükrözi a korra jellemző városi hangulatot. A lakás a 2. emeleten helyezkedik el, mely lifttel is megközelíthető.

A lakásba lépve azonnal érzékelhető a kellemesen tágas térérzet, amelyet a 3,4 méteres belmagasság határoz meg. A magas belmagasság levegős, nyugodt atmoszférát teremt, miközben lehetőséget ad a tér finom újragondolására, akár galéria kialakításával is.

Az elrendezés kiegyensúlyozott és átgondolt, a déli tájolású, utcai nézetű nappali világos, elegáns élettérként szolgál a mindennapokhoz, míg a belső udvarra néző hálószoba csendesebb, intimebb környezetet biztosít a pihenéshez. A különnyíló szobák jól elkülöníthető, harmonikusan használható tereket hoznak létre.

A nappali arányai lehetővé teszik egy diszkréten elkülöníthető home office kialakítását, így a munkavégzés kényelmesen illeszkedik a lakás mindennapi használatához, anélkül hogy megbontaná az élettér harmóniáját.

A konyha külön helyiségben kapott helyet, praktikus kialakításának köszönhetően nemcsak főzésre alkalmas, hanem egy kényelmes étkezőasztal is elfér benne.

A fürdőszoba sarokkádas kialakítású, amely egy hosszú nap végén valódi felüdülést kínál.

Műszaki:

Az ablakok fa nyílászárókkal rendelkeznek, a lakás melegéről a nappaliban és a hálószobában gázkonvektor,
a fürdőszobában és az előszobában padlófűtés gondoskodik.

A fűtés átalányköltsége körülbelül 7.000 Ft havonta, a közös költség 22.575 Ft.

Környék és közlekedés:

A lakás Budapest XI. kerületének Lágymányos városrészében helyezkedik el, a Budafoki út Baranyai utca sarkánál, kiváló infrastruktúrával. A környék különösen kedvelt fiatalok és egyetemisták körében, mivel több felsőoktatási intézmény található a közelben, valamint a mindennapi élethez szükséges üzletek és szolgáltatások könnyen elérhetők. Az Allee Bevásárlóközpont gyorsan és kényelmesen megközelíthető, mindössze egy villamosmegállónyi távolságra található.
A közlekedési lehetőségek kiemelkedőek, villamos- és buszjáratok néhány perc sétára találhatók, így Budapest különböző pontjai gyorsan elérhetők. A Móricz Zsigmond körtér 900 méter távolságban van, ahol az M4-es metró, valamint számos további járat biztosít gyors kapcsolatot a belváros és a város más részei felé.

Az ingatlan azonnal birtokba vehető, per-, teher- és igénymentes!

Ez az ingatlan ideális választás első otthont kereső fiataloknak, fiatal pároknak, valamint befektetési célra is, mivel elrendezése és elhelyezkedése miatt könnyen és jól kiadható.

Adatkezelés
Ezúton tájékoztatjuk, hogy Ön mint érdeklődő, a hirdetésben megjelölt telefonszám felhívásával hozzájárul személyes adatai – így különösen neve és telefonszáma -, a hirdetést feladó FORTISElit Ingatlan Kft. általi - biztonságos és körültekintő - kezeléséhez, nyilvántartásához. E körben, keresse a FORTISELIT ingatlaniroda weboldalát adatkezelési tájékoztatót.

We hereby inform you that You as an interested party, by calling the phone number mentioned in the advertisement, contribute to be your personal data – especially your name and phone number – handled and recorded safe and circumspectively by FORTISElit Ingatlan Kft as advertiser. Hereby, you can learn our Privacy Policy.

Finanszírozás:
Adatbázisunkban további több ezer ingatlanból választhat, hívjon bizalommal, hogy megtaláljuk a legmegfelelőbbet!
Hitelre van szüksége? Teljes körű és díjmentes hitel-ügyintézéssel, biztosításkötéssel áll rendelkezésére szakértő kollégánk. Kérje személyre szabott ajánlatunkat!



Lakás részletei

Ár: 74 900 000 Ft
Méret: 51 négyzetméter
Azonosító: 11595461
Irodai azonosító: 347333
Emelet: 2. emelet
Építőanyag: Tégla
Fűtés jellege: Konvektoros
Ingatlan állapota:
Komfort fokozat: Összkomfort
Egész szobák: 1
Fél szobák: 1

Egyéb jellemzők

  • Erkély
  • Lift
  • Kertkapcsolat

Hasonló lakás hirdetések

Eladó lakás

Budapest XI. ker, Szentimreváros

A XI. kerületben a Villányi úton, a Feneketlen tó közvetlen közelében ...

Eladó lakás

Budapest XI. ker

✨ Eladó egy igazán szerethető, napfényes 2+1 szobás lakás a XI. kerületben ...

Eladó lakás

Budapest XI. ker

Eladó 50m2, 2 szobás társasházi lakás, Bp. XI. ker. Sárbogárdi úton XI. ...

Eladó lakás

Budapest XI. ker

XI.KER ÚJ ÉPÍTÉSŰ LAKÁSOK – KELEN GATE - VASÚT UTCA Eladó egy modern, ...

Hasonló lakás hirdetések

Eladó lakás

Budapest XI. ker, Szentimreváros

A XI. kerületben a Villányi úton, a Feneketlen tó közvetlen közelében ...

Eladó lakás

Budapest XI. ker

✨ Eladó egy igazán szerethető, napfényes 2+1 szobás lakás a XI. kerületben ...

Eladó lakás

Budapest XI. ker

Eladó 50m2, 2 szobás társasházi lakás, Bp. XI. ker. Sárbogárdi úton XI. ...

Eladó lakás

Budapest XI. ker

XI.KER ÚJ ÉPÍTÉSŰ LAKÁSOK – KELEN GATE - VASÚT UTCA Eladó egy modern, ...