Eladó lakás Budapest XI. ker 87 500 000 Ft

Leírás

Panorámás, erkélyes "penthouse" jellegű otthon keresi új tulajdonosát rendezett, kertes társasházban.
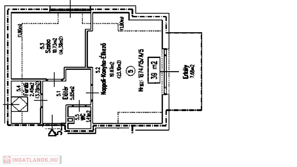
Eladó egy világos frissen felújított, 2 szobás lakás egy 2006-ban épült, mindösszesen 6 lakásos társasházban az utca legszebb részén, Hosszúrét kertvároságban. A kis „penthouse” különlegessége az örök panorámás erkély, ahol minden nap pihentető kilátás fogad. Ideális pároknak, kis családoknak.
Az ingatlan kifogástalan állapotú, kiváló a hang- és hőszigetelése, konyha gépesítve van, a fürdőszobában és a WC-ben mennyezetig érő, csiszolt mészkő burkolat természetközeli hangulatot ad. Az előszobában praktikus beépített szekrények segítik a tárolást.
A fűtést kondenzációs kazán biztosítja és akár hűtő-fűtő klíma is rendelkezésre áll. A nyílászárók (velux) redőnnyel és szúnyoghálóval felszereltek, távfelügyelethez bekötött riasztóval védett.
A közös költség csupán: 16.608 Ft/hó, a lakóközösség csendes, barátságos. Külön 7,5 millió forintért megvásárolható egy 5 m2-es tároló és egy tágas kocsibeálló az épület alatti teremgarázsban. Saját villanyóráról három fázisú autótöltő kialakítható!
Megtekintéssel kapcsolatban, várom megtisztelő hívását!

Az ingatlan csak referenssel tekinthető meg!

A hirdetésben feltüntetett adatok és információk csak tájékoztató jellegűek, jogi kötőerővel nem bírnak, nem tekinthetőek ajánlat tételnek és nem járnak az eladóra, referensre nézve kötelező ajánlati kötöttséggel.
I.I.

Lakás részletei

Ár: 87 500 000 Ft
Méret: 39 négyzetméter
Azonosító: 11557205
Irodai azonosító: 385895
Cím: Nevegy köz
Emelet: 2. emelet
Építőanyag: Tégla
Fűtés jellege: Cirkó
Ingatlan állapota: Kitűnő
Komfort fokozat: Összkomfort
Építési év: 11-20 éves
Tulajdonviszony: Saját
Kilátás: panorámás
Egész szobák: 2

Egyéb jellemzők

  • Erkély
  • Garázs
  • Lift
  • Pince
  • Tároló

Térkép

Hasonló lakás hirdetések

Eladó lakás

Budapest XI. ker

Kulcsrakész lakások eladók a Péterhegyi Lakóparkban! A LAKÓPARK ELKÉSZÜLT, ...

Eladó lakás

Budapest XI. ker

KIVÁLÓ ÜZLETI BEFEKTETÉS a BME közvetlen közelében! ELADÓ Budapest ...

Eladó lakás

Budapest XI. ker

KIVÁLÓ ÜZLETI BEFEKTETÉS a BME közvetlen közelében! ELADÓ Budapest ...

Eladó lakás

Budapest XI. ker

Eladó kertkapcsolatos, új építésű lakás a XI. kerület egyik legkedveltebb ...

Hasonló lakás hirdetések

Eladó lakás

Budapest XI. ker

Kulcsrakész lakások eladók a Péterhegyi Lakóparkban! A LAKÓPARK ELKÉSZÜLT, ...

Eladó lakás

Budapest XI. ker

KIVÁLÓ ÜZLETI BEFEKTETÉS a BME közvetlen közelében! ELADÓ Budapest ...

Eladó lakás

Budapest XI. ker

KIVÁLÓ ÜZLETI BEFEKTETÉS a BME közvetlen közelében! ELADÓ Budapest ...

Eladó lakás

Budapest XI. ker

Eladó kertkapcsolatos, új építésű lakás a XI. kerület egyik legkedveltebb ...