Eladó lakás Budapest XII. ker, Krisztinaváros, 139 000 000 Ft

Leírás

Eladó ingatlant keresel Budapest XII. kerületben? ~ Eladó Krisztinavárosban egy loggiás, panorámás, háromszobás lakás liftes társasházban, kiváló elosztással és budai várra néző kilátással. ~ Eladó Budapesti Lakás Kód: BPLS31.

Település: Budapest
Terület: 78 m2
Ingatlan típusa: lakás
Ingatlan állapota: jó állapotú - építési év 1964, felújítás 2018
Szint(ek): 7
Emelet: 6
Lift: van
Szobák: 3 (nappali és 2 hálószoba)
Fürdőszoba és WC: van , külön WC
Fűtés: házközponti (gázfűtés)
Légkondícionáló: igen ( 1 db)
Tetőtér: nem tetőtéri
Kilátás: Budai várra néző, panoráma a környező hegyekre
Kertkapcsolatos: közö kisebb gondozott kert
Parkolás: közterület (22.000 Forint az éves bérlet)
Pince: 6 m2-es tároló, 20m2-es közös tároló
Riasztó: előkészítve
Villany: van
Víz: van
Gáz: van
Csatorna: van

Budapest XII. kerületének egyik kedveltebb részén, Krisztinavárosban, a Maros utcában kínálunk megvételre egy liftes társasház 6. emeletén (nem zárószint) található, az alapító okirat szerint 75 m²-es, nappali + 2 szobás, járható gardróbos, 7 m²-es loggiás lakást.

A vételár tartalmazza a képeken látható beépített és nem beépített bútorokat, hűtőt, mosogatógépet és egyéb berendezéseket is (a dísztárgyak kivételével).

Épület

A társasház 1964-ben épült Szabó István Ybl-díjas építész tervei alapján (link).

Az épület folyamatosan karbantartott, stabil anyagi háttérrel rendelkezik.

A társasház megtakarítási számláján több mint 15 millió forint áll rendelkezésre, a társasházi tulajdonban lévő albetét pedig bérbe van adva.

A lapostető vízszigetelés felújítása 2022-ben teljes körűen megtörtént.

A lakók kényelmét földszinti, tágas kerékpár- és babakocsi-tároló, valamint egy gondozott, füves belső kert szolgálja.

Parkolás az utcán, lakcímbejelentéssel kedvezményes díjon (évi 22 500 Ft) megoldható.

A tulajdoni hányad részét képezi a pinceszinten egy száraz, zárható tároló is.

Lakás jellemzői

A kelet–nyugati tájolású, valódi faparkettával burkolt otthon minden napszakban jó megvilágítású.

A nappalihoz kapcsolódó loggia csendes, zöld területre és a budai hegyekre néz, míg a lakás keleti oldaláról a Budai Vár panorámája tárul elénk.

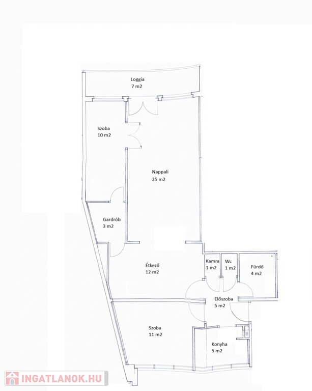
Az ingatlan elosztása kiváló:
76 m²-en előszoba, konyha, kamra, hall, tágas nappali, két hálószoba, járható gardrób, fürdőszoba és külön WC kapott helyet, melyet egy 7 m²-es loggia egészít ki.

Elrendezése:

előszoba: 5 m²-es

konyha + kamra: 5 m²-es

étkező (hall): 12 m²-es

nappali: 25 m²-es

hálószoba: 11 m²-es

hálószoba: 10 m²-es

gardrób: 3 m²-es

fürdőszoba: 4 m²-es

külön WC: 1 m²-es

loggia: 7 m²-es

A csatolt alaprajz tájékoztató jellegű.

A nyílászárók prémium minőségűek:

- Nívó biztonsági bejárati ajtó
- 2024-ben, tokkal együtt cserélt, háromrétegű, bukó-nyíló Schüco ablakok és teraszajtó, kiváló hő- és hangszigeteléssel
- Távirányítós elektromos redőnyök
- Pliszé szúnyoghálók és részben blackout rolók
- Méretre gyártott, faerezetű beltéri ajtók

A fűtést házközponti rendszer biztosítja, a nappaliban klímaberendezés található.

A melegvíz-ellátás villanybojlerrel történik, a lakásban nincs gázóra.

A vizes helyiségek igény szerint korszerűsíthetők, ugyanakkor minden berendezés működőképes és karbantartott.

A közös költség tartalmazza a fűtési és a hideg víz- és csatornadíj költségét is.

Az áramfogyasztás egyedi mérőóra alapján fizetendő.

Az ingatlan otthonos hangulatú, elhelyezkedése és adottságai miatt hosszú távú lakásra vagy befektetési célra, bérbeadásra is kiválóan alkalmas.

Környezet

A Maros utca rendezett és tágas, szépen gondozott fákkal, a környék közbiztonsága kiváló.

Néhány perc gyalogtávon belül jó nevű éttermek, pékségek, cukrászdák, fagyizók, nagyobb élelmiszerboltok, egy kisebb éjjel-nappali üzlet és egy ügyeletes gyógyszertár is megtalálhatók.

A közlekedés kényelmes: metró, villamos, busz, valamint vasút is könnyen elérhetők.

A környéken számos park és zöldterület található (Városmajor, Vérmező, Gesztenyés kert, Millenáris), valamint bevásárlóközpontok (MOM Park, Mammut, Hegyvidék Központ) és a Fény utcai piac is 15 percen belül elérhető.

Játszóterek, óvodák, iskolák, gimnáziumok és nemzetközi intézmények szintén a közelben szép számban találhatók.

Egyéb információ

Az ingatlan per- és tehermentes, 1/1 tulajdonban van, könnyen hitelezhető, birtokbaadása akár azonnal lehetséges.

MIÉRT FOGJA SZERETNI EZT AZ OTTHONT?

A lakás Budapest egyik legértékállóbb városrészében helyezkedik el, ahol a városi élet és a zöld környezet egyaránt jelen van.

A panoráma, a kiváló elosztás és a csendes loggia ritka kombinációt alkot a fővárosi kínálatban.

Befektetésnek és saját otthonnak is kiemelkedő választás.

ÉRTÉKELÉS

Ez az ingatlan a budai lakáspiac egyik klasszikus, stabil értéket képviselő típusa: kiváló elhelyezkedés, panoráma és jól fenntartható műszaki állapot jellemzi.

Hosszú távon is biztonságos befektetés.

ÁR-ÖSSZEHASONLÍTÁS A BUDAPESTI KÖRNYÉKEN

„Az eladó ingatlan ára versenyképes, mivel a környékbeli városrészek hasonló adottságú lakásai jellemzően az alábbi ársávban mozognak:”

Budai oldal (átlag): 1,1 – 1,9 M Ft/m²

XII. kerület: 1,4 – 2,2 M Ft/m²

XI. kerület: 1,2 – 1,8 M Ft/m²

II. kerület: 1,5 – 2,4 M Ft/m²

III. kerület: 1,0 – 1,6 M Ft/m²

XIII. kerület: 1,1 – 1,7 M Ft/m²

V–VI–VII. kerület: 1,3 – 2,0 M Ft/m²

ÁR-ÖSSZEHASONLÍTÁS AZ EURÓPAI KÖRNYEZETBEN

„Az eladó ingatlan ára versenyképes, mivel a hasonló adottságú lakások európai nagyvárosokban jellemzően az alábbi ársávban mozognak:”

Berlin: 2,0 – 4,5 M Ft/m²

Hamburg: 2,5 – 5,5 M Ft/m²

Frankfurt: 3,0 – 6,0 M Ft/m²

Vienna: 3,5 – 7,0 M Ft/m²

Prague: 2,5 – 5,0 M Ft/m²

Bratislava: 2,0 – 4,0 M Ft/m²

Cologne / Düsseldorf: 2,5 – 5,5 M Ft/m²

A budapesti lakás ára ezekhez képest kedvezőbb belépési szintet kínál, miközben erős bérleti piaccal rendelkezik.

MIÉRT ÉRI MEG MEGVÁSÁROLNI?

• Kiemelt budai elhelyezkedés
• Panoráma a Budai Várra és a hegyekre
• Kiváló tömegközlekedési és szolgáltatási környezet
• Azonnal költözhető, jó állapotú lakás
• Befektetésre és bérbeadásra is ideális
• Stabil értéktartás a budai lakáspiacon

KAPCSOLAT

Tisztelettel kérünk minden érdeklődőt, hogy közvetlenül ne keresse fel az eladót!

Az ingatlan megtekintése irodánkkal egyeztetve történik.

Kapcsolattartó: Weisz Gabriella

Telefon: +36 30 474 5901

Email: info@balatonhomes.com

Kérjük, az érdeklődés során hivatkozzon a BPLS31 ingatlan kódra.

Kérjük, egyeztessen időpontot velünk.

Tegye ezt a kiváló adottságú budai lakást új otthonává vagy értékálló befektetésévé!

Lakás részletei

Ár: 139 000 000 Ft
Méret: 78 négyzetméter
Azonosító: 11599769
Irodai azonosító: BPLS31
Városrész: Krisztinaváros
Emelet: 6. emelet
Építőanyag: Kérdezzen rá a hirdetőtől »
Fűtés jellege: Házközponti (egyedi mérővel)
Ingatlan állapota:
Tulajdonviszony: Saját
Egész szobák: 3
Nappalik: 1

Egyéb jellemzők

  • Erkély
  • Klíma
  • Lift
  • Tároló

Térkép

Hasonló lakás hirdetések

Eladó lakás

Budapest XII. ker

Eladásra kínálunk Kútvölgy kedvelt részén egy Ősfás 1100 m2 területen ...

Eladó lakás

Budapest XII. ker

ELADÓ EGY KÜLÖNLEGES LAKÁS A XII. KERÜLETBEN, A VÁROSMAJOR SZOMSZÉDSÁGÁBAN ...

Eladó lakás

Budapest XII. ker

Eladó a XII. kerület kedvelt részén, a Kiss János altábornagy utcában ...

Eladó lakás

Budapest XII. ker

Budapest, 12. kerület Városmajor utcában, 2018-ban épült társasház első ...

Hasonló lakás hirdetések

Eladó lakás

Budapest XII. ker

Eladásra kínálunk Kútvölgy kedvelt részén egy Ősfás 1100 m2 területen ...

Eladó lakás

Budapest XII. ker

ELADÓ EGY KÜLÖNLEGES LAKÁS A XII. KERÜLETBEN, A VÁROSMAJOR SZOMSZÉDSÁGÁBAN ...

Eladó lakás

Budapest XII. ker

Eladó a XII. kerület kedvelt részén, a Kiss János altábornagy utcában ...

Eladó lakás

Budapest XII. ker

Budapest, 12. kerület Városmajor utcában, 2018-ban épült társasház első ...