Eladó lakás Budapest XII. ker 190 928 850 Ft

Leírás

VIRÁNYOS VILLAPARK - PRÉMIUM OTTHONOK!
Elindult a Virányos Villapark épülő lakásainak értékesítése! Részletes információk, alaprajzok, parkolóhelyek, tárolók a viranyosvillapark oldalon! Várható átadás: 2026. 3. negyedév!

A Virányos Villapark Budapest 12. kerületében, a budai Széll Kálmán térhez közel, mégis csendes környezetben elhelyezkedő prémium minőségű lakópark.

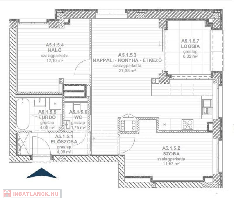
A hirdetésben szereplő lakás, az F épület 1. emeletén helyezkedik el, DK tájolással, 61,06 m2 alapterülettel, mely életteret tovább növeli a 6,02 m2 alapterületű terasz.

A lakás helyiségei: Előszoba, WC, Szoba, Amerikai konyhás nappali, Szoba, Fürdőszoba.

A Villaparkban 60-175m2 közötti, N + 1-2-3-4 szobás, kertes, teraszos, erkélyes, tágas tetőteraszos, valamint duplex és penthouse lakások közül választhat. Az elérhető lakásokról érdeklődjön telefonon! A kiválasztott lakáshoz mélygarázs beálló hely és tároló vásárlása kötelező. További beálló helyek és tárolók a készlet erejéig vásárolhatóak.

A villapark főbb jellemzői: parkosított, öntözőrendszerrel ellátott közös kert, csendes környezet, változatos lakás-, terasz- és kertméretek, tágas, napfényes lakások.

A lakások műszaki jellemzői: megújuló energiával előállított hatékony, hőszivattyús hűtő-fűtő rendszer, padlófűtés és mennyezeti fan-coil hűtés a maximális komfort érzetért, lakásonként kialakított hővisszanyerős szellőztetőrendszer az állandó friss levegő biztosításáért, magas minőségű alumínium nyílászárók 3 rétegű üvegezéssel a kiváló hő- és hangszigetelésért, árnyékoló rendszer az optimális fényviszonyok eléréséért, audió-videó kaputelefon, személyre szabható okosotthon rendszer előkészítés, amely lehetővé teszi a lakás teljeskörű vezérlését.

Az ingatlan közvetlen környezetében számos magánóvoda és általános iskola, gimnázium található. Bevásárlási lehetőségként a Budagyöngye Bevásárlóközpont és a szintén közeli Mammut Bevásárló- és Szórakoztató Központ is rendelkezésre áll.

A Virányos Villapark tömegközlekedési eszközzel is könnyen megközelíthető, az 56-os, 59-es, 61-es villamosok, a 22-es, 91-es, 155-ös és 156-os buszok megállói pár perc sétatávolságra találhatók.

Lakás részletei

Ár: 190 928 850 Ft
Méret: 61 négyzetméter
Azonosító: 11539821
Irodai azonosító: M303593-4956009
Emelet: 1. emelet
Építőanyag: Tégla
Fűtés jellege: Hőszivattyú
Ingatlan állapota: Épülő
Komfort fokozat: Dupla komfort
Építési év: Új építésű
Kilátás: kertre néző
Egész szobák: 3

Egyéb jellemzők

  • Erkély
  • Garázs
  • Lift

Térkép

Hasonló lakás hirdetések

Eladó lakás

Budapest XII. ker

A Kis-Svábhegy közvetlen közelében eladó a Zsolna utcában egy igényes ...

Eladó lakás

Budapest XII. ker

**Panorámás, tágas lakás eladó a XII. kerület szívében!** Olyan ingatlant ...

Eladó lakás

Budapest XII. ker

PANORÁMÁS, TELJES KÖRŰEN FELÚJÍTOTT OTTHON A DIANA UTCÁBAN XII. KERÜLETBEN. Eladó ...

Eladó lakás

Budapest XII. ker

**Panorámás, tágas lakás eladó a XII. kerület szívében!** Olyan ingatlant ...

Hasonló lakás hirdetések

Eladó lakás

Budapest XII. ker

A Kis-Svábhegy közvetlen közelében eladó a Zsolna utcában egy igényes ...

Eladó lakás

Budapest XII. ker

**Panorámás, tágas lakás eladó a XII. kerület szívében!** Olyan ingatlant ...

Eladó lakás

Budapest XII. ker

PANORÁMÁS, TELJES KÖRŰEN FELÚJÍTOTT OTTHON A DIANA UTCÁBAN XII. KERÜLETBEN. Eladó ...

Eladó lakás

Budapest XII. ker

**Panorámás, tágas lakás eladó a XII. kerület szívében!** Olyan ingatlant ...