Eladó lakás Budapest XII. ker 620 000 Euro

Leírás


Kiváló beosztású, teraszos, világos lakás a XII. kerület zöldövezetében – garázsvásárlási lehetőséggel

 

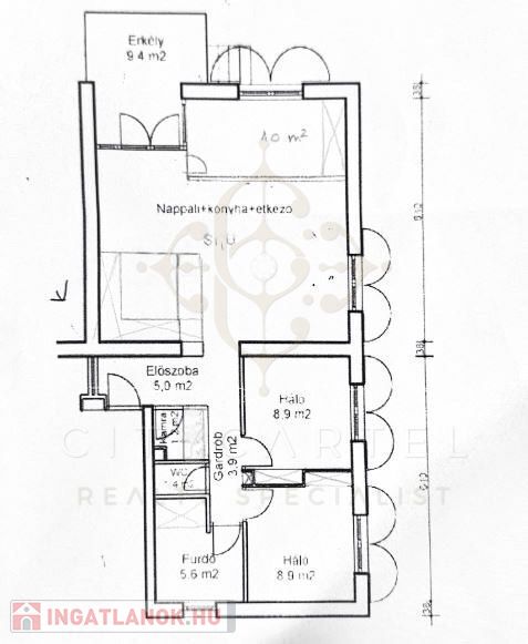
A XII. kerület egyik legkedveltebb, csendes zöldövezeti utcájában, a Galgóczy utcában kínálunk eladásra egy kivételes adottságokkal rendelkező ingatlant, amely összesen 102 nm-nyi hasznos alapterületet kínál.

 

A hirdetésben szereplő méret az alábbiakból tevődik össze:

~77 nm-es, nappali + 3 szobás lakás tulajdonjoga 9,4 nm-es terasz (a lakással együtt bruttó ~82 nm)

kb. 22 nm bruttó alapterületű tetőtéri helyiség, amely alapító okiratban rögzítetten a lakáshoz tartozik,

és jelenleg garzonként funkcionál

 

A társasház 1983-ban épült, jó állapotú, rendezett, kis lakásszámú épület, közös kerttel.

 

A lakás déli tájolású, 2,8 méteres belmagassággal rendelkezik, folyamatosan karbantartott és részben felújított.

 

A lakás (~77 nm + 9,4 nm terasz)

A tágas előszobából egy világos, teraszkapcsolatos amerikai konyhás nappali–étkező térbe érkezünk, amelyből leválasztással alakították ki a lakás harmadik hálószobáját. A fal gipszkartonból készült, így az eredeti, egybenyitott tér igény szerint könnyedén visszaállítható – ez a rugalmasság különösen értékessé teszi az otthont.

A másik két hálószoba a közlekedőből nyílik.

A mindennapi kényelmet tovább növeli a kamra, a különálló mellékhelyiség és a fürdőszoba praktikus elhelyezése. Az elrendezésnek köszönhetően minden funkcionális zóna jól elkülönül, mégis harmonikusan kapcsolódik a lakás élettereihez – átgondolt, élhető és otthonos.

Fűtés: cirkó

 

Tetőtéri helyiség (kb. 22 nm bruttó)

A társasház tetőterében helyezkedik el, külön bejárattal, jelenleg garzonként használják, saját zuhanyzós fürdőszobával és WC-vel, konvektoros fűtéssel és panorámás kilátással.

Jelenleg bérlő lakta, aki most kültözik ki, de jól kiadható..

 

Egyéb helyiségek, lehetőségek

4,5 nm-es tároló a pincében

15 nm-es teremgarázs beálló, önálló helyrajzi számon, külön megvásárolható (nem kötelező)

 

Közös költség: 28.000 Ft/hó, amely tartalmazza a vízdíjat is.

A tulajdonos a vételárat euróban szeretné megkapni, az ingatlan vételára 620.000 euró, a teremgarázs-beálló pedig 46.000 euró.

 

Ideális választás családi otthonként, de befektetésként is kiváló lehetőség, hiszen az ingatlan rendkívül értékálló és jól hasznosítható.

 

További információért vagy megtekintésért keressen bizalommal.

 

Lakás részletei

Ár: 620 000 Euro
Méret: 102 négyzetméter
Azonosító: 11611829
Irodai azonosító: 10825317
Emelet: Földszint
Építőanyag: Tégla
Fűtés jellege: Cirkó
Ingatlan állapota:
Komfort fokozat: Összkomfort
Egész szobák: 4

Egyéb jellemzők

  • Lift