Eladó lakás Budapest XII. ker 249 000 000 Ft

Leírás


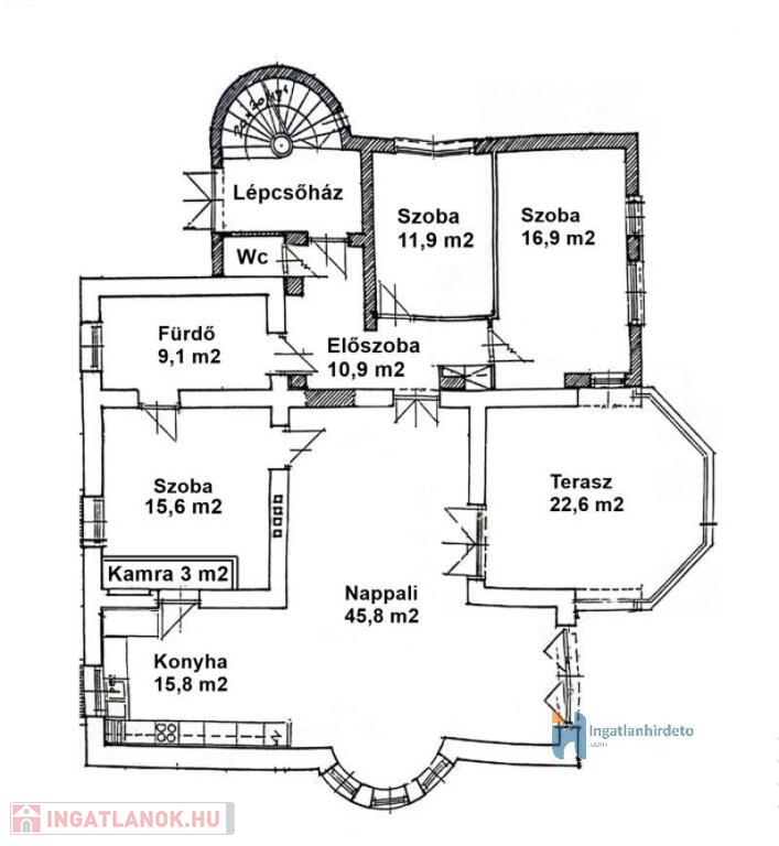
Elhelyezkedése: Társasház Emeleti elhelyezkedés: Félemelet Tájolása: Dél-keleti tájolású Állapota: Jó Komfort besorolása: összkomfortos Építési éve: 1916 Alapterülete: 135 m2 Szobák száma: 4szoba Felújított: Felújított Felújítás éve: 2002 Fűtés típusa: Házközponti Homlokzat állapot: Jó Építési mód: Tégla Parkolási lehetőség: Telken Kilátás: Parkra nyíló kilátás Jellemzői: Alacsony rezsi, Csendes környék, Jó közlekedés Energetikai besorolás: Nincs adat Egyéb jellemzők: Terasz
12. kerületben, Mártonhegyen eladó egy 135 m2-es, 4 szobás, nagy teraszos (22,6 m2) jó állapotú, csendes, villa lakás.

A villa lakást 2002-ben teljeskörűen felújították, amely során kicserélték a víz és villanyvezetékeket, szanitereket, burkolatokat, fűtésrendszert (padlófűtés az egész lakásban) és konyhabútort.

A villát 1916-ban a Ráday család építette 50 cm-es mészkőfalakból, melyet 2000-2002 között teljesen helyreállítottak (vízvezeték rendszer, elektromos hálózat, csatornahálózat, fűtésrendszer, burkolatok) és külső szigetelést (15 cm) kapott. Az épület 3 szintes és 3 lakásos.

Az épület tetején egy hatalmas közös használatú városra panorámás terasz, illetve az épület körül közös kert biztosítja a lakók kikapcsolódását és nyugalmát.

A villa lakás további jellemzői:
- azonnal birtokba vehető
- DK-i fekvés
- belmagasság 3,2 m
- mészkőből rakott kandalló
- beépített konyha gépekkel (főzőlap, sütő, elszívó, mosogatógép)
- redőnyös ablakok
- sarokkádas fürdőszoba
- alacsony rezsi

Fűtés: házközponti (átalány 24.000 Ft/hó)

A lakáshoz tartozik egy mosókonyha, valamint a kertben egy fedett autóbeálló.

Közlekedés: buszok (102, 110, 112) villamosok (59, 59A, 59B) éjszakai járat (990) pár percen belül elérhetőek.

Közelben: Magyar-sváb általános- és középiskola (Tamási Áron iskola) 2 perc gyalog. Nemzetközi óvoda 500 méterre van, az amerikai, brit és osztrák iskolák autóval 5-10 percen belül. Bevásárlási lehetőségek, óvoda, iskola, bankok, posta, gyógyszertár stb.

További információért kérem, hívjon bizalommal, majd nézze meg személyesen, és tegyen egy ajánlatot!

Lakás részletei

Ár: 249 000 000 Ft
Méret: 135 négyzetméter
Azonosító: 11571093
Emelet: Félemelet
Építőanyag: Tégla
Fűtés jellege: Házközponti
Ingatlan állapota:
Komfort fokozat: Összkomfort
Építési év: 1-5 éves
Elhelyezkedés: Társasház
Kilátás: panorámás
Egész szobák: 4

Térkép

Hasonló lakás hirdetések

Eladó lakás

Budapest XII. ker

ÁLOM LAKÓKÖRNYEZET, PANORÁMA ÉS LUXUS A VÁROS FELETT! A luxus otthon ...

Eladó lakás

Budapest XII. ker

Kiváló beosztású, teraszos, világos lakás a XII. kerület ...

Eladó lakás

Budapest XII. ker

Kizárólag Irodánk kínálatában! Eladásra kínálunk egy csendes, jó ...

Eladó lakás

Budapest XII. ker

Panorámás, belső kétszintes otthon Mártonhegy közkedvelt ...

Hasonló lakás hirdetések

Eladó lakás

Budapest XII. ker

ÁLOM LAKÓKÖRNYEZET, PANORÁMA ÉS LUXUS A VÁROS FELETT! A luxus otthon ...

Eladó lakás

Budapest XII. ker

Kiváló beosztású, teraszos, világos lakás a XII. kerület ...

Eladó lakás

Budapest XII. ker

Kizárólag Irodánk kínálatában! Eladásra kínálunk egy csendes, jó ...

Eladó lakás

Budapest XII. ker

Panorámás, belső kétszintes otthon Mártonhegy közkedvelt ...