Eladó lakás Budapest XII. ker 279 999 000 Ft

Leírás

Eladásra kínálunk Kútvölgy kedvelt részén egy Ősfás 1100 m2 területen elhelyezkedő patinás „lakást – házat” amely közvetlen 500 m2-es kertkapcsolattal rendelkezik.

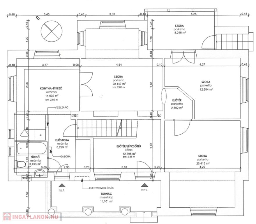
A 195 m2-es lakás két szinten helyezkedik el, ami jelenleg két különálló és külön bejárattal rendelkező lakásra van megosztva, földszint 95 m2 – első emelet 100 m2 + 500 m2 kertrész.

A lakások a meglévő belső feljárattal újra összenyithatóak – amellyel az eredeti állapotnak megfelelő 5 szobás lakás alakítható ki. A lakás a közvetlen kertrész miatt olyan, mintha ha egy önálló ház lenne, amit két utcáról is meg lehet közelíteni.

Potenciális befektetési lehetőség lehet vállalkozóknak, amennyiben a két lakást hivatalosan szétválasztják - felújítják és kertrészeket megosztják. A kialakított ingatlan elemeket tovább tudják értékesíteni.

A 195 m2 lakás elrendezése:

Földszint:
• 3 db. szoba, 1 db. félszoba
• Konyha
• Fürdőszoba
• Közlekedő

Emelet:
• 3 db. szóba
• Közlekedő -dolgozó sarok
• Konyha
• Fürdőszoba
• Előtér - lépcsőház

Tároló - pince:
• 30 m2

Kert:
• Közvetlen 500 m2 kertrész + kerti kemence
• Egyéb kertrész 200 m2
• 1 db. kocsibeálló

A társasházban 2 db. lakás található az eladásra kínált 195 m2 (földszint - emelet) + alagsori szinten található 60 m2 -es.

A ház 1940-ben épült 55 cm vastag téglafalakkal. Az épület szerkezetileg jó állapotú – feljutása és korszerűsítése esedékes.

Az ingatlant fiatal pároknak -családoknak és vállalkozóknak egyaránt ajánljuk.

Amennyiben Önnek a vásárláshoz szüksége lenne hitelre egyedi kedvezménnyel,kezdeményezheti a kapcsolatfelvételt bankfüggetlen hitelügyintézőinkkel, teljesen DÍJMENTESEN.

Az ingatlan részletes ismertetése és bemutatása előre egyeztetett időpontban lehetséges, melyet nagyon rugalmasan kezelünk, akár HÉTVÉGÉN is.

Amennyiben felkeltette az érdeklődését, további kérdéseivel kapcsolatban várom jelentkezését!

Lakás részletei

Ár: 279 999 000 Ft
Méret: 195 négyzetméter
Azonosító: 11560717
Irodai azonosító: 386605
Cím: Kútvölgy kertkapcsolatos lakás-ház
Emelet: Földszint
Építőanyag: Tégla
Fűtés jellege: Cirkó
Ingatlan állapota: Felújítandó
Komfort fokozat: Dupla komfort
Építési év: 50 évesnél régebbi
Tulajdonviszony: Saját
Kilátás: panorámás
Egész szobák: 5
Fél szobák: 1

Egyéb jellemzők

  • Erkély
  • Garázs
  • Lift
  • Pince
  • Tároló

Térkép

Hasonló lakás hirdetések

Eladó lakás

Budapest XII. ker

ÁLOM LAKÓKÖRNYEZET, PANORÁMA ÉS LUXUS A VÁROS FELETT! A lenyűgöző ...

Eladó lakás

Budapest XII. ker

Igazi különlegesség irodánk kínálatában! A kerület közkedvelt részén, ...

Eladó lakás

Budapest XII. ker, Farkasvölgy

MÁR CSAK 1 LAKÁS ELADÓ! XI. Sasad felső részén, csendes mellékutcában, ...

Eladó lakás

Budapest XII. ker

Belbuda szívében, zöldövezeti nyugalomban – kertkapcsolatos, 3 hálószobás ...

Hasonló lakás hirdetések

Eladó lakás

Budapest XII. ker

ÁLOM LAKÓKÖRNYEZET, PANORÁMA ÉS LUXUS A VÁROS FELETT! A lenyűgöző ...

Eladó lakás

Budapest XII. ker

Igazi különlegesség irodánk kínálatában! A kerület közkedvelt részén, ...

Eladó lakás

Budapest XII. ker, Farkasvölgy

MÁR CSAK 1 LAKÁS ELADÓ! XI. Sasad felső részén, csendes mellékutcában, ...

Eladó lakás

Budapest XII. ker

Belbuda szívében, zöldövezeti nyugalomban – kertkapcsolatos, 3 hálószobás ...