Eladó lakás Budapest XII. ker 760 000 Euro

Leírás

ÁLOM LAKÓKÖRNYEZET, PANORÁMA ÉS LUXUS A VÁROS FELETT!

A lenyűgöző panorámával rendelkező luxus élettér a Budai oldal kiemelt részén a Farkasvölgy-Csillebérc városrészek ölelésében, közvetlenül tájvédelmi terület közelében, mégis ritka csendes hegyvidéki környezetben helyezkedik el!

A hirdetésben szereplő ár az alábbi egységeket foglalja magában:
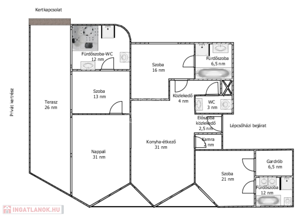
- lakás nettó alapterület: 153 m2,
- kertkapcsolatos nagyméretű terasz: 35 m2,
- kert használat, társasházi alapító szerinti megosztással,
- garázs: 16nm,
- közös használatú társasházi egységek (pl. lépcsőház, felszíni beálló)
- wellness részleg (úszómedence, Finn szauna, masszázs kád) használat.

A szűk lokáció pont attól egyedi, hogy 10 PERCEN BELÜL EGYARÁNT ELÉRHETŐ A XII. ÉS A XI. KERÜLET FREKVENTÁLT RÉSZEI, vagy akár Budaörs, valamint az M7-es, illetve M1-es autópálya kivezető szakasza (elkerülve a városi forgalmat)!

Az épülettel és a lakással kapcsolatos fotók, alaprajzok, kivitelezési tervdokumentációk igény szerint rendelkezésre állnak!

Rövid szerkezeti, műszaki tartalom:
- tetőfedés: antracit színű betoncserép + PREFA rendszerű alumínium lemez bádogozás,
- födém: vasbeton monolit födémszerkezet, előre gyártott és monolit kiváltók,
- vázszerkezet: 30 cm égetett vázkerámia, (Porotherm klíma),
- szigetelés: 15 cm vastag dryvit,
- belső válaszfal: 10 cm vastag válaszfaltégla, lakásokat elválasztó fal: 30 cm vastag hang-gátló téglával,
- 3 rétegű üveg, 5 légkamrás nyílászárók,
- hőszivattyús rendszer, padló és mennyezetfűtés.

FIGYELEM, az épületben további 2 lakás lett kialakítva, melyek külön emeleten helyezkednek el.
Fontos megemlíteni, hogy a kertkapcsolatos ingatlan hálószobai gardrób válaszfalának átalakításával akár közvetlen, privát kapcsolatot lehet biztosítani a wellness részhez!

Extrák:
- belső medence és kiépített wellness részleg,
- minőségi burkolatok, szaniterek és egyedi, átgondolt tervezés,
- távirányítós, motoros úszó kapu,
- önállóan használt garázs felhajtó,
- fűtött garázs (közvetlen lépcsőházi átjárással),
- Hitachi típusú hőszivattyús fűtésrendszer, padlófűtéssel!

Lakás részletei

Ár: 760 000 Euro
Méret: 204 négyzetméter
Azonosító: 11444042
Irodai azonosító: 375716
Cím: Moha utca
Emelet: Földszint
Építőanyag: Tégla
Fűtés jellege: Hőszivattyú
Ingatlan állapota: Kitűnő
Komfort fokozat: Összkomfort
Építési év: 1-5 éves
Tulajdonviszony: Saját
Kilátás: panorámás
Egész szobák: 4

Egyéb jellemzők

  • Erkély
  • Garázs
  • Lift
  • Pince
  • Tároló

Térkép