Eladó lakás Budapest XIII. ker 100 050 000 Ft

Leírás

ÚJ ÉPÍTÉSŰ INGATLANOK 2027 KÖLTÖZÉSSEL!

Angyalföld:

Angyalföld Budapest XIII. kerületének legnagyobb városrésze, amely az egykori ipari zónából mára modern lakó- és irodanegyeddé alakult át. Hagyományos ipari zónák helyén ma már irodaházak, kereskedelmi egységek és a Duna-parton luxuslakások találhatók.

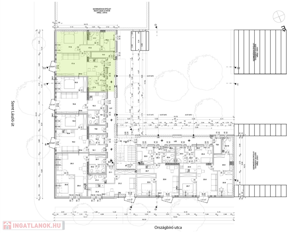
Az épület tettérbeépítése során törekedtünk olyan lakások kialakítására, ami a mai lakásigényeknek felel
meg, mint amerikai konyhás nappali és külön hálószoba. Változatos lakásokat alakítottunk ki úgy
méretükben, mint elrendezésükben.

17 lakás.
Előszoba: 2.35 nm.
Fürdőszoba: 5.49 nm.
Konyha+ étkező: 10,01 nm.
Nappali: 21.48 nm.
Közlekedő: 4.39 nm.
Hálószoba: 17.08 nm.
Fürdőszoba: 4.05 nm.
Halószoba: 8.53 nm.
Erkély: 1.52 nm.

Fizetés: készültségi fokozathoz kötött fizetési ütemezés.

A további kérdésekkel és a megtekintéssel kapcsolatban, kérem keressen a megadott mobil számon.

Lakás részletei

Ár: 100 050 000 Ft
Méret: 69 négyzetméter
Azonosító: 11600663
Irodai azonosító: 392819
Cím: Országbíró utca
Emelet: 2. emelet
Építőanyag: Tégla
Fűtés jellege: Hőszivattyú
Ingatlan állapota: Kitűnő
Komfort fokozat: Összkomfort
Építési év: Új építésű
Tulajdonviszony: Saját
Kilátás: utcai
Egész szobák: 2
Fél szobák: 1

Egyéb jellemzők

  • Erkély
  • Garázs
  • Lift
  • Pince
  • Tároló

Térkép

Hasonló lakás hirdetések

Eladó lakás

Budapest XIII. ker

Újlipótváros szívében!!! utcától pár lépésre erkélyes, frissen ...

Eladó lakás

Budapest XIII. ker

Eladó napfényes, erkélyes lakás Újlipótváros kedvelt részén! Budapest ...

Eladó lakás

Budapest XIII. ker

Eladó exkluzív hangulatú polgári lakás Újlipótváros szívében Újlipótváros ...

Eladó lakás

Budapest XIII. ker

OTTHON, AHOVA JÓ HAZAÉRNI ÚJLIPÓTVÁROS SZÍVÉBEN! Képzeld el, ahogy ...

Hasonló lakás hirdetések

Eladó lakás

Budapest XIII. ker

Újlipótváros szívében!!! utcától pár lépésre erkélyes, frissen ...

Eladó lakás

Budapest XIII. ker

Eladó napfényes, erkélyes lakás Újlipótváros kedvelt részén! Budapest ...

Eladó lakás

Budapest XIII. ker

Eladó exkluzív hangulatú polgári lakás Újlipótváros szívében Újlipótváros ...

Eladó lakás

Budapest XIII. ker

OTTHON, AHOVA JÓ HAZAÉRNI ÚJLIPÓTVÁROS SZÍVÉBEN! Képzeld el, ahogy ...