Eladó lakás Budapest XIII. ker 99 500 000 Ft

Leírás

FELÚJÍTANDÓ INGATLAN ÚJLIPÓTVÁROS SZÍVÉBEN!
Eladó Budapest XIII. kerületének egyik legnépszerűbb területén, Újlipótvárosban, egy 72 m2-es, erkélyes lakás.
Az ingatlan egy Bauhaus stílusú, liftes társasház 3. emeletén található.
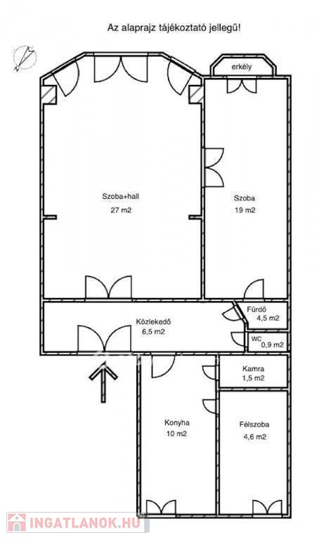
A lakásba a felújított, lépcsőházból egy elegáns kétszárnyú ajtón keresztül juthatunk be. A felújítandó ingatlanban 2,5 szoba hall, konyha, spájz, fürdőszoba, külön WC található.
Az utcára néző szobák és az erkély délkeleti fekvésűek. A északnyugati tájolású félszoba és a konyha egy rendezett belső udvarra néznek.
A fürdőszoba az előszobából és az egyik szobából is megközelíthető. A konyhából nyíló félszoba akár egy nagyobb étkezős konyhává is átalakítható igény szerint. Tulajdonosaik nagyon vigyáztak az ingatlanra, melynek köszönhetően (a ház kora ellenére), a szobákban és az előszobában lévő parketták jó állapotban vannak. Fűtése távfűtés.
A lakás jó fekvésének köszönhetően szép, napos, világos otthon kialakítására van lehetőség.
A társasház tiszta, rendezett, a lakóközössége kulturált.
A lokáció kitűnő, közel a Jászai Mari térhez, Duna-parthoz, Szent István parkhoz, Nyugati térhez, Westendhez és a Margitszigethez. Tömegközlekedéssel a város minden pontja rövid időn belül elérhető.
Amennyiben hirdetésem felkeltette érdeklődését, vagy szeretné megtekinteni az ingatlant, várom hívását!

Referencia szám: M316976

Lakás részletei

Ár: 99 500 000 Ft
Méret: 72 négyzetméter
Azonosító: 11611273
Irodai azonosító: M316976-5099109
Emelet: 3. emelet
Építőanyag: Tégla
Fűtés jellege: Távfűtés
Ingatlan állapota: Felújítandó
Komfort fokozat: Összkomfort
Építési év: 50 évesnél régebbi
Kilátás: utcai
Egész szobák: 2
Fél szobák: 1

Egyéb jellemzők

  • Lift

Térkép

Hasonló lakás hirdetések

Eladó lakás

Budapest XIII. ker

Elhelyezkedése: Lakótelepen Emeleti elhelyezkedés: Emeleten Emelet száma: ...

Eladó lakás

Budapest XIII. ker

A CasaNetWork Ingatlanhálózat ceglédi irodája eladásra kínálja a 174602238 ...

Eladó lakás

Budapest XIII. ker

Újlipótváros szívében!!! utcától pár lépésre erkélyes, frissen ...

Eladó lakás

Budapest XIII. ker

Eladó exkluzív hangulatú polgári lakás Újlipótváros szívében Újlipótváros ...

Hasonló lakás hirdetések

Eladó lakás

Budapest XIII. ker

Elhelyezkedése: Lakótelepen Emeleti elhelyezkedés: Emeleten Emelet száma: ...

Eladó lakás

Budapest XIII. ker

A CasaNetWork Ingatlanhálózat ceglédi irodája eladásra kínálja a 174602238 ...

Eladó lakás

Budapest XIII. ker

Újlipótváros szívében!!! utcától pár lépésre erkélyes, frissen ...

Eladó lakás

Budapest XIII. ker

Eladó exkluzív hangulatú polgári lakás Újlipótváros szívében Újlipótváros ...