Eladó lakás Budapest XIII. ker 113 000 000 Ft

Leírás

Eladó világos, felújított 2+1 szobás lakás Újlipótváros szívében, a Visegrádi utcában!

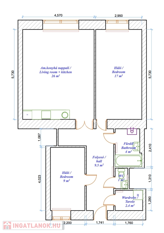
Budapest XIII. kerületében, Újlipótváros kedvelt utcájában kínálunk eladásra egy 70 m²-es, 3. emeleti, utcai nézetű, bútorozott lakást. A lakás elrendezése ideális: amerikai konyhás nappali és két külön nyíló hálószoba biztosít kényelmes életteret. A keleti és nyugati tájolás miatt a helyiségek világosak, a belmagasság pedig akár galéria kialakítására is lehetőséget ad.

A lakás néhány éve teljes körű felújításon esett át: új villamoshálózat, víz- és fűtésrendszer került beépítésre, modern Beretta cirkókazánnal. Új külső és belső nyílászárók kerültek beépítésre szúnyoghálóval, redőnnyel és árnyékolóval. A komfortot hűtő-fűtő klíma biztosítja, a biztonságról több ponton záródó, ráccsal védett bejárati ajtó gondoskodik.

A gépesített amerikai konyha ergonomikus kialakítású, a lakás külön WC-vel, mosókonyhával és tárolóval is rendelkezik. Minden közmű egyedileg mérhető.

Kiváló lokáció, pár perc sétára a WestEndtől, Duna-parttól, kiváló tömegközlekedéssel és infrastrukturális ellátottsággal.

Ideális otthon családoknak, pároknak, de befektetésként is remek választás.

Jöjjön el, nézze meg, és tegyen ajánlatot!
ID:384032

Lakás részletei

Ár: 113 000 000 Ft
Méret: 70 négyzetméter
Azonosító: 11545304
Irodai azonosító: 384032
Cím: Visegrádi utca
Emelet: 3. emelet
Építőanyag: Tégla
Fűtés jellege: Cirkó
Ingatlan állapota: Felújított
Komfort fokozat: Összkomfort
Építési év: 50 évesnél régebbi
Tulajdonviszony: Saját
Kilátás: utcai
Egész szobák: 2
Fél szobák: 1

Egyéb jellemzők

  • Erkély
  • Garázs
  • Lift
  • Pince
  • Tároló

Térkép

Hasonló lakás hirdetések

Eladó lakás

Budapest XIII. ker

Dunai Panorámás! Nagy teraszos! Magas emeleti!Eladó a 13. kerületben a ...

Eladó lakás

Budapest XIII. ker

Eladó XIII. Dagály sétányon,!! csendes környezetben, egy 43 nm-es, 2 ...

Eladó lakás

Budapest XIII. ker

A főváros közkedvelt részén, Újlipótvárosban, a Pannónia utcában ...

Eladó lakás

Budapest XIII. ker

A XIII. kerület méltán közkedvelt, prémium kertvárosi részén, Mosoly ...

Hasonló lakás hirdetések

Eladó lakás

Budapest XIII. ker

Dunai Panorámás! Nagy teraszos! Magas emeleti!Eladó a 13. kerületben a ...

Eladó lakás

Budapest XIII. ker

Eladó XIII. Dagály sétányon,!! csendes környezetben, egy 43 nm-es, 2 ...

Eladó lakás

Budapest XIII. ker

A főváros közkedvelt részén, Újlipótvárosban, a Pannónia utcában ...

Eladó lakás

Budapest XIII. ker

A XIII. kerület méltán közkedvelt, prémium kertvárosi részén, Mosoly ...