Eladó lakás Budapest XIII. ker 69 700 000 Ft

Leírás

ÚJ ÉPÍTÉSŰ INGATLANOK 2027 KÖLTÖZÉSSEL!

Angyalföld:

Angyalföld Budapest XIII. kerületének legnagyobb városrésze, amely az egykori ipari zónából mára modern lakó- és irodanegyeddé alakult át. Hagyományos ipari zónák helyén ma már irodaházak, kereskedelmi egységek és a Duna-parton luxuslakások találhatók.

Az épület tettérbeépítése során törekedtünk olyan lakások kialakítására, ami a mai lakásigényeknek felel
meg, mint amerikai konyhás nappali és külön hálószoba. Változatos lakásokat alakítottunk ki úgy
méretükben, mint elrendezésükben.

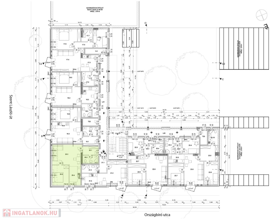
20. lakás.
Előszoba 4.60 nm.
Fürdőszoba: 4.07 nm.
Nappali étkező: 20.08 nm.
Konyha:7.30 nm.
Hálószoba: 11.39 nm.


Fizetés: készültségi fokozathoz kötött fizetési ütemezés.

A további kérdésekkel és a megtekintéssel kapcsolatban, kérem keressen a megadott mobil számon.

Lakás részletei

Ár: 69 700 000 Ft
Méret: 41 négyzetméter
Azonosító: 11600667
Irodai azonosító: 392823
Cím: Országbíró utca
Emelet: 2. emelet
Építőanyag: Tégla
Fűtés jellege: Hőszivattyú
Ingatlan állapota: Kitűnő
Komfort fokozat: Összkomfort
Építési év: Új építésű
Tulajdonviszony: Saját
Kilátás: utcai
Egész szobák: 1
Fél szobák: 1

Egyéb jellemzők

  • Erkély
  • Garázs
  • Lift
  • Pince
  • Tároló

Térkép

Hasonló lakás hirdetések

Eladó lakás

Budapest XIII. ker

XIII. kerületben Vizafogó városrészben eladó felújított, erkélyes lakás. A ...

Eladó lakás

Budapest XIII. ker

☀️ Jó állapotú, 2 szobás lakás eladó Angyalföldön – Jász utcában! Angyalföldön, ...

Eladó lakás

Budapest XIII. ker

Azonnal hasznosítható, galériás lakás a Hegedűs Gyula utcában A XIII. ...

Eladó lakás

Budapest XIII. ker

„ÁLMODJA MEG OTTHONÁT VELÜNK” BUDAPEST XIII. kerületben a REITTER FERENC ...

Hasonló lakás hirdetések

Eladó lakás

Budapest XIII. ker

XIII. kerületben Vizafogó városrészben eladó felújított, erkélyes lakás. A ...

Eladó lakás

Budapest XIII. ker

☀️ Jó állapotú, 2 szobás lakás eladó Angyalföldön – Jász utcában! Angyalföldön, ...

Eladó lakás

Budapest XIII. ker

Azonnal hasznosítható, galériás lakás a Hegedűs Gyula utcában A XIII. ...

Eladó lakás

Budapest XIII. ker

„ÁLMODJA MEG OTTHONÁT VELÜNK” BUDAPEST XIII. kerületben a REITTER FERENC ...