Eladó lakás Budapest XIII. ker 69 900 000 Ft

Leírás

Modern, galériás okosotthon eladó a 13. kerületben, a Visegrádi utca elején!

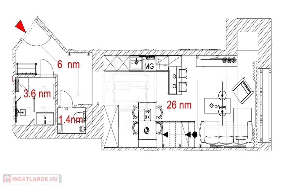
A XIII. kerület egyik legjobb részén, a Visegrádi utca elején, a körúthoz közel, egy szépen karbantartott, 6 szintes társasház 1. emeletén található ez a teljes körűen felújított, 41 m²-es, galériás, 1 szobás lakás.

A belsőépítész által megálmodott design, a prémium anyaghasználat és az okosotthon megoldások modern, kényelmes életteret biztosítanak – fiatal pároknak, első lakásként vagy befektetésnek is tökéletes választás.

Főbb jellemzők:
• Teljes körű műszaki és esztétikai felújítás
• 42 m² alapterület
• Padlófűtés minden helyiségben
• 3 rétegű, hő- és hangszigetelt nyílászárók
• Gree klíma
• Gépesített, egyedi tervezésű konyhabútor
• Belsőépítész által tervezett, alacsony energiaigényű lakás
• Részben bútorozott, kérésre teljes bútorzattal is elérhető (külön megállapodás szerint)
• Zuhanyzós fürdőszoba
• 1. emelet, galériás kialakítás

Lokáció: Nyugati tér, Lehel tér, Szent István körút pár perc sétára. Kiváló közlekedés, éttermek, kávézók, boltok közvetlen közelben.

Birtokbavétel: 2026 január
A képek látványtervek, amelyek hűen tükrözik majd a végleges kialakítást.
Érdeklődni privát üzenetben vagy telefonon.

Lakás részletei

Ár: 69 900 000 Ft
Méret: 42 négyzetméter
Azonosító: 11595019
Irodai azonosító: 392068
Cím: Visegrádi utca
Emelet: 1. emelet
Építőanyag: Tégla
Fűtés jellege: Villany
Ingatlan állapota: Felújított
Komfort fokozat: Összkomfort
Építési év: 50 évesnél régebbi
Tulajdonviszony: Saját
Kilátás: udvari
Egész szobák: 1

Egyéb jellemzők

  • Erkély
  • Garázs
  • Lift
  • Pince
  • Tároló

Térkép

Hasonló lakás hirdetések

Eladó lakás

Budapest XIII. ker

XIII. kerületben Vizafogó városrészben eladó felújított, erkélyes lakás. A ...

Eladó lakás

Budapest XIII. ker

☀️ Jó állapotú, 2 szobás lakás eladó Angyalföldön – Jász utcában! Angyalföldön, ...

Eladó lakás

Budapest XIII. ker

Budapest XIII . kerületében , Újlipótváros egyik kedvelt utcájában kínálunk ...

Eladó lakás

Budapest XIII. ker

Azonnal hasznosítható, galériás lakás a Hegedűs Gyula utcában A XIII. ...

Hasonló lakás hirdetések

Eladó lakás

Budapest XIII. ker

XIII. kerületben Vizafogó városrészben eladó felújított, erkélyes lakás. A ...

Eladó lakás

Budapest XIII. ker

☀️ Jó állapotú, 2 szobás lakás eladó Angyalföldön – Jász utcában! Angyalföldön, ...

Eladó lakás

Budapest XIII. ker

Budapest XIII . kerületében , Újlipótváros egyik kedvelt utcájában kínálunk ...

Eladó lakás

Budapest XIII. ker

Azonnal hasznosítható, galériás lakás a Hegedűs Gyula utcában A XIII. ...