Eladó lakás Budapest XIII. ker 78 600 000 Ft

Leírás

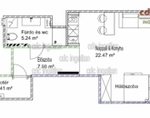
ÚJLIPÓTVÁROSBAN ERKÉLYES DESIGNLAKÁS ELADÓ! XIII. kerületben, a Hegedűs Gyula utcában eladó egy II. emeleti, 36 m2-es, 2 szobás, amerikai konyhás, cirkófűtéses, hűtő-fűtő klímás, DNY-i fekvésű, napfényes, utcai nézetű, lakberendező egyedi tervei alapján, teljes körűen, prémium minőségű anyagokkal felújított, különlegesen gyönyörű lakás.
A ház 1920-ban épült, 5 szintes, LIFTES, csodaszép belső kerttel, igényes lakóközöséggel.
A lakás ügyvédileg ellenjegyzett használati megosztással, külön mérőórákkal felszerelt. A teljes berendezés, bútorok, dekoráció az ár részét képezi! Környék infrastruktúrája páratlan! Minden egy karnyújtásnyira. Duna -part, Szent István park pár perc séta. Értékálló befektetés!
Érd: Juhász Mária 06 30 52 55 398

Ezúton tájékoztatjuk, hogy Ön, mint érdeklődő, a hirdetésben megjelölt telefonszám felhívásával hozzájárul személyes adatai – így különösen neve és telefonszáma -, a hirdetést feladó Szita Ingatlan Kft.. általi - biztonságos és körültekintő - kezeléséhez, nyilvántartásához. További információt CDCI portálunk adatvédelmi aloldalán talál.

Referencia szám: 436559

Lakás részletei

Ár: 78 600 000 Ft
Méret: 36 négyzetméter
Azonosító: 11574239
Irodai azonosító: 436559-5034308
Cím: 36 nm-es lakás eladó Budapest 13. ker.
Emelet: 2. emelet
Építőanyag: Tégla
Fűtés jellege: Cirkó
Ingatlan állapota: Kitűnő
Építési év: 50 évesnél régebbi
Kilátás: utcai
Egész szobák: 2

Egyéb jellemzők

  • Erkély
  • Klíma
  • Lift

Térkép

Hasonló lakás hirdetések

Eladó lakás

Budapest XIII. ker

.Eladásra kínálom a 13k.Vizafogó nagyon KÖZKEDVELT részén - pár perc ...

Eladó lakás

Budapest XIII. ker

!!KIVÁLÓ BEFEKTETÉS A DUNA PLÁZA KÖZELÉBEN!! !MÁR CSAK NÉHÁNY LAKÁS ...

Eladó lakás

Budapest XIII. ker

A Szent István körúton, a múlt század fordulóján épült, jó állapotú, ...

Eladó lakás

Budapest XIII. ker

️ Exkluzív, modern otthonok Angyalföld prémium lokációjában! ️ Fedezze ...

Hasonló lakás hirdetések

Eladó lakás

Budapest XIII. ker

.Eladásra kínálom a 13k.Vizafogó nagyon KÖZKEDVELT részén - pár perc ...

Eladó lakás

Budapest XIII. ker

!!KIVÁLÓ BEFEKTETÉS A DUNA PLÁZA KÖZELÉBEN!! !MÁR CSAK NÉHÁNY LAKÁS ...

Eladó lakás

Budapest XIII. ker

A Szent István körúton, a múlt század fordulóján épült, jó állapotú, ...

Eladó lakás

Budapest XIII. ker

️ Exkluzív, modern otthonok Angyalföld prémium lokációjában! ️ Fedezze ...