Eladó lakás Budapest XIII. ker 89 900 000 Ft

Leírás

ÚJLIPÓTVÁROSBAN, A VICTOR HUGO UTCÁNÁL – FELÚJÍTOTT, NAGY ERKÉLYES LAKÁS ELADÓ
Budapest XIII. kerületének egyik legkedveltebb részén, Újlipótváros szívében kínálunk megvételre egy keleti fekvésű, világos, felújított lakást.
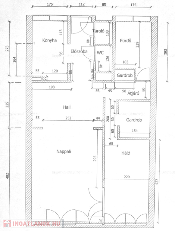
61 m², 2 szoba + étkező, 7 m²-es nagy erkély, 5. emelet, liftes házban
A lakás főbb jellemzői:
• napfényes, keleti tájolás
• tágas nappali és külön hálószoba étkezővel
• nagy, élhető erkély (7 m²)
• ablakos konyha
• külön fürdőszoba és WC
• teljes körű felújítás (villany- és vízvezetékek, burkolatok, konyha, fürdő)
• klímával felszerelt
• pincei tároló tartozik hozzá
• rendezett, liftes társasház, jó lakóközösséggel
Közös költség: 27 000 Ft/hó
Udvari beálló bérelhető
Kiváló elhelyezkedés: boltok, éttermek, orvosi rendelő, tömegközlekedés pár perc sétára, a belváros gyorsan elérhető.
Ideális választás saját otthonnak vagy befektetésnek is, hiszen a környék kiemelten keresett és könnyen kiadható.

Lakás részletei

Ár: 89 900 000 Ft
Méret: 61 négyzetméter
Azonosító: 11598774
Irodai azonosító: 392577
Cím: Victor Hugo utca
Emelet: 5. emelet
Építőanyag: Tégla
Fűtés jellege: Távfűtés
Ingatlan állapota: Felújított
Komfort fokozat: Összkomfort
Építési év: 21-50 éves
Tulajdonviszony: Saját
Kilátás: utcai
Egész szobák: 2

Egyéb jellemzők

  • Erkély
  • Garázs
  • Lift
  • Pince
  • Tároló
  • Kocsibeálló

Térkép

Hasonló lakás hirdetések

Eladó lakás

Budapest XIII. ker

!!KIVÁLÓ BEFEKTETÉS A DUNA PLÁZA KÖZELÉBEN!! !MÁR CSAK NÉHÁNY LAKÁS ...

Eladó lakás

Budapest XIII. ker

A Szent István körúton, a múlt század fordulóján épült, jó állapotú, ...

Eladó lakás

Budapest XIII. ker

Megvételre kínálom a méltán közkedvelt Marina parton A Danubius utcában ...

Eladó lakás

Budapest XIII. ker

ÚJLIPÓTVÁROSBAN ERKÉLYES DESIGNLAKÁS ELADÓ! XIII. kerületben, a Hegedűs ...

Hasonló lakás hirdetések

Eladó lakás

Budapest XIII. ker

!!KIVÁLÓ BEFEKTETÉS A DUNA PLÁZA KÖZELÉBEN!! !MÁR CSAK NÉHÁNY LAKÁS ...

Eladó lakás

Budapest XIII. ker

A Szent István körúton, a múlt század fordulóján épült, jó állapotú, ...

Eladó lakás

Budapest XIII. ker

Megvételre kínálom a méltán közkedvelt Marina parton A Danubius utcában ...

Eladó lakás

Budapest XIII. ker

ÚJLIPÓTVÁROSBAN ERKÉLYES DESIGNLAKÁS ELADÓ! XIII. kerületben, a Hegedűs ...