Eladó lakás Budapest XIII. ker 98 000 000 Ft

Leírás

✨ Eladó újszerű, erkélyes lakás Angyalföldön – Nerium Lakópark ✨

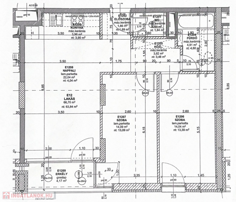
Angyalföld kedvelt részén, a 2019-ben épült Nerium lakóparkban kínálunk megvételre egy 7 emeletes, újszerű téglaépület első emeletén található, tulajdoni lapon 65 nm, de a valóságban 67 m²-es, 3 szobás lakást.

Főbb jellemzők:

Amerikai konyhás nappali + 2 hálószoba

Erkély, ideális reggeli kávézáshoz vagy esti pihenéshez

Jó állapotú, újszerű lakás

Tehermentes

Több ponton záródó biztonsági bejárati ajtó
Műanyag thermó ablakok + redőny
Házközponti fűtés, egyedi mérővel

A lakásban a beépített , gépesített konyhabútor , illetve a beépített szekrények, a nappaliban a bútorok az ár részét képezik.

Kiegészítők:

Teremgarázs hely: 9.000.000 Ft (kötelező megvásárolni)

Tároló: 5.500.000 Ft (opcionális)


Elhelyezkedés:

Csendes, nyugodt környezet

Kiváló közlekedés, bevásárlási lehetőségek a közelben

Ideális választás családoknak, pároknak vagy befektetésnek

További információért és megtekintésért várom hívását!

Lakás részletei

Ár: 98 000 000 Ft
Méret: 67 négyzetméter
Azonosító: 11606101
Irodai azonosító: 393715
Cím: Petneházy utca
Emelet: 1. emelet
Építőanyag: Tégla
Fűtés jellege: Házközponti (egyedi mérővel)
Ingatlan állapota: Kitűnő
Komfort fokozat: Összkomfort
Építési év: 6-10 éves
Tulajdonviszony: Saját
Kilátás: udvari
Egész szobák: 3

Egyéb jellemzők

  • Erkély
  • Garázs
  • Lift
  • Pince
  • Tároló
  • Kocsibeálló

Térkép

Hasonló lakás hirdetések

Eladó lakás

Budapest XIII. ker

️ Exkluzív, modern otthonok Angyalföld prémium lokációjában! ️ Fedezze ...

Eladó lakás

Budapest XIII. ker

Újlipótváros szívében!!! utcától pár lépésre erkélyes, frissen ...

Eladó lakás

Budapest XIII. ker

Elhelyezkedése: Lakótelepen Emeleti elhelyezkedés: Emeleten Emelet száma: ...

Eladó lakás

Budapest XIII. ker

Eladó egy 70 m²-es, déli tájolású, nagy belmagasságú, rendkívül világos ...

Hasonló lakás hirdetések

Eladó lakás

Budapest XIII. ker

️ Exkluzív, modern otthonok Angyalföld prémium lokációjában! ️ Fedezze ...

Eladó lakás

Budapest XIII. ker

Újlipótváros szívében!!! utcától pár lépésre erkélyes, frissen ...

Eladó lakás

Budapest XIII. ker

Elhelyezkedése: Lakótelepen Emeleti elhelyezkedés: Emeleten Emelet száma: ...

Eladó lakás

Budapest XIII. ker

Eladó egy 70 m²-es, déli tájolású, nagy belmagasságú, rendkívül világos ...