Eladó lakás Budapest XIV. ker 117 900 000 Ft

Leírás

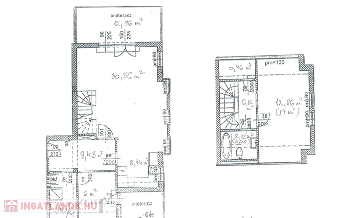
A XIV. kerületben, Alsórákos csendes, kertvárosi részén, a Szilágysomlyó utcában kínálunk megvételre egy 2001-ben épült, 9 lakásos társasházban található, nappali + 2 hálószobás, belső kétszintes, duplakomfortos, dupla teraszos lakást.

A nettó 79 m²-es (1,9 m alatti részekkel együtt 91 m²) lakáshoz összesen 20 m² terasz tartozik (13 m² + 6,5 m²). Világos, napos, csendes otthon, egyedi cirko fűtéssel és problémamentes lakóközösséggel. A házhoz ápolt, tágas közös kert tartozik.

Elrendezés

Alsó szint:

Egyedileg tervezett amerikai konyhás nappali

Nagy, déli fekvésű, étkezésre is alkalmas terasz

Kertre néző háló/dolgozószoba vagy vendégszoba, saját zuhanyzós fürdőszobával

Előszoba jó tárolási lehetőségekkel

Második, kisebb terasz


Emelet (tetőtér):

Egyedi falépcső vezet fel

Jelenleg egybenyitott hálótér (eredetileg 2 külön szoba, visszaalakítható)

Gardrób

Kádas fürdőszoba

A lakás kiváló választás otthoni munkavégzéshez vagy akár két kisgyermekes család számára is.

Az ingatlan megkímélt, folyamatosan karbantartott, műszaki és esztétikai állapota kiváló.

MŰSZAKI ADATOK

Alapterület: 79 m² (bruttó 91 m²)
Teraszok: összesen 20 m² (13 m² + 6,5 m²)
Szobák száma: nappali + 2 háló (jelenleg 2 háló, visszaalakítható 3-á)
Fürdőszobák: 2 (zuhanyzós + kádas)
Fűtés: egyedi gázcirkó
Építés éve: 2001
Társasház: 9 lakásos
Homlokzat: szigetelt
Tető: Bramac betoncserép
Állapot: kiváló, karbantartott
Közös kert: gondozott, tágas

Parkolás: külön helyrajzi számon lévő teremgarázs
Tároló: 4 m²

A garázs és a tároló ára: +10 millió Ft.

BEFEKTETÉSI LEHETŐSÉG

A belső kétszintes kialakítás, a 3 szobás lehetőség, a dupla komfort és a két nagy terasz kifejezetten vonzóvá teszi családok és bérlők számára egyaránt.

A tetőtéri rész visszaalakítható két külön hálószobává, így az alaprajz rugalmasan igazítható az igényekhez.

A kertvárosi, csendes környezet és a kiváló állapot hosszú távon is értékálló befektetést jelent.

KÖRNYÉK ÉS KÖZLEKEDÉS

Alsórákos Zugló egyik legkedveltebb, kertvárosi része, nyugodt, zöld környezetben.

A környéken bevásárlási lehetőségek, szolgáltatások, iskolák és óvodák könnyen elérhetők.

Tömegközlekedéssel és autóval is jól megközelíthető, a belváros kényelmesen elérhető.

Lakás részletei

Ár: 117 900 000 Ft
Méret: 89 négyzetméter
Azonosító: 11602257
Irodai azonosító: 349735
Emelet: 2. emelet
Építőanyag: Tégla
Fűtés jellege: Cirkó
Ingatlan állapota:
Komfort fokozat: Dupla komfort
Egész szobák: 2
Fél szobák: 1

Egyéb jellemzők

  • Erkély
  • Garázs
  • Lift
  • Kertkapcsolat

Hasonló lakás hirdetések

Eladó lakás

Budapest XIV. ker

Praktikus elrendezés, világos terek. Budapest XIV. kerület Alsórákos ...

Eladó lakás

Budapest XIV. ker

!!!FANTASZTIKUS ÁRON ÚJÉPÍTÉSŰ LAKÁSOK MÁR LEKÖTHETŐEK ZUGLÓ KERTVÁROSÁBAN!!! ...

Eladó lakás

Budapest XIV. ker

ELADÓ ÚJÉPÍTÉSŰ LAKÁS A ZENIT RESIDENCE TERÜLETÉN A BOSNYÁK UTCÁBAN ...

Eladó lakás

Budapest XIV. ker

Praktikus elrendezés, világos terek. Budapest XIV. kerület Alsórákos ...

Hasonló lakás hirdetések

Eladó lakás

Budapest XIV. ker

Praktikus elrendezés, világos terek. Budapest XIV. kerület Alsórákos ...

Eladó lakás

Budapest XIV. ker

!!!FANTASZTIKUS ÁRON ÚJÉPÍTÉSŰ LAKÁSOK MÁR LEKÖTHETŐEK ZUGLÓ KERTVÁROSÁBAN!!! ...

Eladó lakás

Budapest XIV. ker

ELADÓ ÚJÉPÍTÉSŰ LAKÁS A ZENIT RESIDENCE TERÜLETÉN A BOSNYÁK UTCÁBAN ...

Eladó lakás

Budapest XIV. ker

Praktikus elrendezés, világos terek. Budapest XIV. kerület Alsórákos ...