Eladó lakás Budapest XIX. ker 143 900 000 Ft

Leírás

ELADÓ ÚJ ÉPÍTÉSŰ TÁRSASHÁZI LAKÁSOK KISPEST-ÓVÁROSÁBAN!



Budapest rohamosan fejlődő XIX. kerületében idén épülő 4 lakásos társasház A++ energetikai minősítésű lakásai eladók.

A társasház lokáció szempontjából első osztályú, Kispest legkedveltebb részén az Óvárosban, ezen belül is a Fő utcában található, ami önmagában egy hatalmas előny.

A lakások alapvető paramétereit tekintve belső kétszintesek, önálló kertkapcsolattal és kocsibeállóval, garázzsal ellátottak, ezeket a vételár tartalmazza.

A lakások fűtését elektromos padlófűtés, illetve ún. fancoil rendszer biztosítja, ami egy hűtő-fűtő elektromos hőszivattyús berendezést jelent, ami nem csak rendkívül költséghatékony, hanem mindemellett környezetbarát is.

Ezt kiegészítve 3 rétegű üveggel ellátott, fóliázott korszerű műanyag nyílászárók gondoskodnak a tökéletesen gazdaságos otthonról.

A vételár részét képezi egy mozgás, - nyitásérzékelős riasztó berendezés.



A lakások egyedi tulajdonságai:



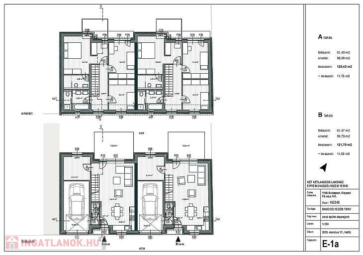
A lakás

Alapterület: 120,42 m2

Terasz: 11,73 m2

Kert: 32,52 m2

Ára: 151.900.000 Ft



B lakás

Alapterület: 121,7 m2

Terasz: 11,53 m2

Kert: 32,89 m2

Ára: 153.900.000 Ft



C lakás

ELADVA



D lakás

Alapterület: 118,14 m2

Terasz: 11,6 m2

Kert: 324,63 m2

Felszíni parkolók

Ára: 179.900.000 Ft

Vevőink felé a közvetítés díjtalan.

Eladó ingatlanját díjmentesen felbecsüljük.



Lakás részletei

Ár: 143 900 000 Ft
Méret: 121 négyzetméter
Azonosító: 11506065
Irodai azonosító: 21375
Építőanyag: Kérdezzen rá a hirdetőtől »
Ingatlan állapota: Átlagos
Egész szobák: 4
Fél szobák: 1

Hasonló lakás hirdetések

Eladó lakás

Budapest XIX. ker

A XIX. kerület kedvelt, kertvárosi részén,csendes zsákutcában, a Viola ...

Eladó lakás

Budapest XIX. ker

EXKLUZÍV ÚJ ÉPÍTÉSŰ LUXUS LAKÁSOK KISPEST KERTVÁROSI ÖVEZETÉBEN – ...

Eladó lakás

Budapest XIX. ker

ELADÓ ÚJ ÉPÍTÉSŰ TÁRSASHÁZI LAKÁSOK KISPEST-ÓVÁROSÁBAN! Budapest ...

Eladó lakás

Budapest XIX. ker

✨ PENTHOUSE JELLEGŰ PRÉMIUM OKOSOTTHON – 2024-ES ÉPÍTÉS ✅ Nettó ...

Hasonló lakás hirdetések

Eladó lakás

Budapest XIX. ker

A XIX. kerület kedvelt, kertvárosi részén,csendes zsákutcában, a Viola ...

Eladó lakás

Budapest XIX. ker

EXKLUZÍV ÚJ ÉPÍTÉSŰ LUXUS LAKÁSOK KISPEST KERTVÁROSI ÖVEZETÉBEN – ...

Eladó lakás

Budapest XIX. ker

ELADÓ ÚJ ÉPÍTÉSŰ TÁRSASHÁZI LAKÁSOK KISPEST-ÓVÁROSÁBAN! Budapest ...

Eladó lakás

Budapest XIX. ker

✨ PENTHOUSE JELLEGŰ PRÉMIUM OKOSOTTHON – 2024-ES ÉPÍTÉS ✅ Nettó ...