Eladó lakás Budapest XV. ker 175 000 000 Ft

Leírás

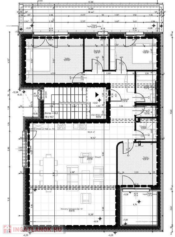
XV. KERÜLETBEN: RÁKOSPALOTÁN, ÚJSZERŰ, 2025-BEN ÉPÜLT, BRT. 157 M2, AMERIKAI KONYHÁS NAPPALIS, 3 SZOBÁS, DUPLAKOMFORTOS, EGYEDI PENTHOUSE LAKÁS, 2 TERASSZAL, TÁROLÓVAL.

AZ ÉPÜLET JELLEMZŐI:

Téglaépítésű, 2025-ben épült, 8 lakásos társasház. Az épületbe arcfelismerő- és ujjlenyomat felismerő rendszerrel lehet bemenni.

A LAKÁS JELLEMZŐI:

A lakásban egy 44 m2-es amerikai konyhás, étkezős nappali, 3 szoba, 2 fürdőszoba, előtér, közlekedő, mellékhelyiség és 2 terasz található (7 m2+ 23 m2). Gyönyörű, egyedi, minőségi burkolatok lettek beszerelve.

A nyílászárók elektromos redőnyökkel vannak ellátva, a bejárati ajtó egyedileg gyártott, több ponton záródó speciális biztonsági ajtó. A fűtés hőszivattyús, (mennyezti hűtés, padló fűtés), szellőztető rendszer is rendelkezésre áll. Smart home (fűtésre és árnyékolásra) - és riasztórendszerrel is ellátott a lakás.

A lakás teljes bútorzata megbeszélés tárgyát képezi.

Tartozik a lakáshoz egy 7 m2 és 23 m2-es terasz, illetve egy saját tároló. Igény esetén 3 db garázs vásárolható a lakáshoz, 7.000.000 Ft/ darab. A garázsoknál a napelemrendszer vezetékrendszer már ki vaépítve.



FINANSZÍROZÁS:

Az ingatlan hitelre is megvásárolható. Bankfüggetlen tanácsadóink, az ország összes pénzintézete közül gyorsan és gördülékenyen találja meg az Önnek legmegfelelőbb konstrukciót, egyedi kedvezményekkel. A hitel közvetítés díjmentes.



A hirdetésben szereplő adatok tájékoztató jellegűek.

Várjuk hívását munkanapokon 09.00- 18:00 óra között.

Amennyiben eladná saját ingatlanát, több mint 16 éve működő, kifejezetten a kerületre szakosodott irodánktól, INGYENES ÉRTÉKBECSLÉST kérhet

Lakás részletei

Ár: 175 000 000 Ft
Méret: 157 négyzetméter
Azonosító: 11585408
Irodai azonosító: 23473
Építőanyag: Kérdezzen rá a hirdetőtől »
Ingatlan állapota: Átlagos
Egész szobák: 4