Eladó lakás Budapest XV. ker 78 450 000 Ft

Leírás

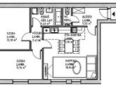
XV. KERÜLETBEN: FREKVENTÁLT RÉSZEN, ELADÓ ÚJ ÉPÍTÉSŰ, 65,36 M2, AMERIKAI KONYHÁS NAPPALIS, 2 SZOBÁS, I.EMELETI TÁRSASHÁZI TÉGLALAKÁS.



A LAKÁS JELLEMZŐI:

A lakás várható átadási határideje 2026 év vége. A társasház 7 lakásos lesz, 3 szintes, 30-as porotherm téglából épül, amelyet egy 10 cm-es grafitos szigeteléssel is ellátnak majd.

A lakásban tágas amerikai konyhás nappali, 2 szoba, fürdőszoba, előszoba, közlekedő és mellékhelyiség kerül kialakításra.

A nyílászárók 6 légkamrás, 3 rétegű hőszigetelt ablakok lesznek. A fűtést kondenzációs kazán fogja biztosítani, a hideg burkolatok alatt padlófűtés kerül kialakításra, a szobákban pedig lapradiátorokat szerelnek fel és 1 hűtő-fűtő klímát.

Az ár tartalmazza a burkolatok, szerelvények és szaniterek beépítését, az anyag árat nem.

Igény esetén extra költséggel kérhető: elektromos redőny, kamera, riasztó, konyhabútor, beépített szekrények.

Lehetőség van plusz tároló (2.000.000 Ft/db), illetve udvari autóbeálló (2.500.000 Ft/db.) vásárlásához.

Referencia ingatlanok megtekintése is lehetséges.



FINANSZÍROZÁS:

Az ingatlan TEHERMENTES lesz, hitelre is megvásárolható. Bankfüggetlen tanácsadóink, az ország összes pénzintézete közül gyorsan és gördülékenyen találja meg az Önnek legmegfelelőbb konstrukciót, egyedi kedvezményekkel. A hitel közvetítés díjmentes.

Várjuk hívását munkanapokon 09:00-18:00 között.

A hirdetésben szereplő adatok tájékoztató jellegűek.

Amennyiben eladná saját ingatlanát, több mint 10 éve működő, kifejezetten a kerületre szakosodott irodánktól, INGYENES ÉRTÉKBECSLÉST kérhet.

Lakás részletei

Ár: 78 450 000 Ft
Méret: 65 négyzetméter
Azonosító: 11586914
Irodai azonosító: 24185
Emelet: 1. emelet
Építőanyag: Kérdezzen rá a hirdetőtől »
Ingatlan állapota: Átlagos
Egész szobák: 3

Hasonló lakás hirdetések

Eladó lakás

Budapest XV. ker

Felújított panorámás lakás a XV. kerületben – még időben lecsaphatsz ...

Eladó lakás

Budapest XV. ker

Megvételre kínálok Budapesten a XV. kerületben, a Nyírpalota úton, egy ...

Eladó lakás

Budapest XV. ker

Budapest XV. kerület, a Nyírpalota úton, kiváló elosztású, 72 nm-es, ...

Eladó lakás

Budapest XV. ker

Jó állapotú 2+2 szobás lakás loggiával az Erdőkerülő utcában, Eladásra ...

Hasonló lakás hirdetések

Eladó lakás

Budapest XV. ker

Felújított panorámás lakás a XV. kerületben – még időben lecsaphatsz ...

Eladó lakás

Budapest XV. ker

Megvételre kínálok Budapesten a XV. kerületben, a Nyírpalota úton, egy ...

Eladó lakás

Budapest XV. ker

Budapest XV. kerület, a Nyírpalota úton, kiváló elosztású, 72 nm-es, ...

Eladó lakás

Budapest XV. ker

Jó állapotú 2+2 szobás lakás loggiával az Erdőkerülő utcában, Eladásra ...