Eladó lakás Budapest XVIII. ker 86 900 000 Ft

Leírás

Új építésű, prémium társasházi lakások Budapest XVIII. kerületében – Bókaytelepen!
Budapest XVIII. kerületének egyik legkedveltebb, kertvárosias részén, Bókaytelepen épül ez a mindössze 10 lakásos, exkluzív társasház, kiváló infrastruktúrával, mégis nyugodt, zöldövezeti környezetben.
Az ingatlan ideális választás mindazoknak, akik modern, energiatakarékos otthont keresnek, vagy értékálló befektetésben gondolkodnak.
Tervezett átadás: 2026. II.-III. negyedév
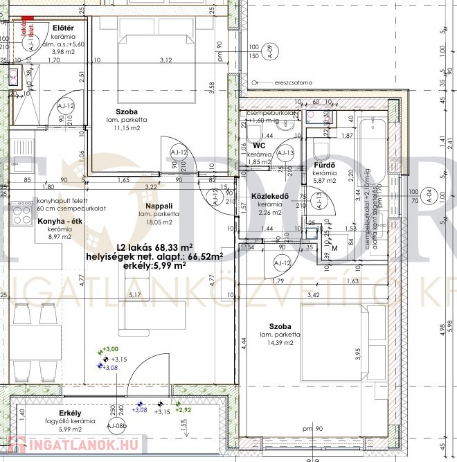
Az első vagy második emeleti lakás 66 négyzetméter hasznos alapterülettel 6 négyzetméteres erkéllyel, amerikai konyhás nappali + 2 hálószobával rendelkezik, 86,9 millió forint.

A társasház főbb jellemzői
• földszint + 3 emelet kialakítás
• lift a kényelmes közlekedésért
• az 1. és 2. emeleten 4–4 lakás
• a tetőtérben 2 db penthouse lakás, hatalmas teraszokkal
• közös használatú, rendezett udvar
• közös kerékpártároló
A projekt kis lakásszáma garantálja a családias, nyugodt lakóközösséget.

Prémium szerkezet – kiváló hő- és hangszigetelés
A társasház korszerű, minőségi építési technológiával készül:
• 30 cm-es téglafalazatból épül
• belső válaszfalak Ytong téglából
• a szomszédos lakások között hanggátló falazat biztosítja a nyugalmat
• 20 cm-es homlokzati hőszigetelés, amely jelentősen csökkenti a fenntartási költségeket

Műszaki tartalom – korszerű, energiatakarékos rendszer (A+ minősítéssel)
A társasház tervezésénél kiemelt szempont volt a modern gépészet, a fenntarthatóság és az alacsony rezsi.
Az épület A+ energetikai besorolással rendelkezik, amely hosszú távon is kedvező fenntartást biztosít.
A lakások központi fűtési rendszerrel készülnek, amelyet korszerű gépészet szolgál ki:
• 2 db hőszivattyú
• 2 db 1000 literes puffer tartály
• kiegészítő gázkazán rásegítés a melegvíz előállításhoz
• minden lakásban komfortos padlófűtés

Fan-coil hűtés előkészítés minden helyiségben
A lakásokban fan-coil hűtés kerül kialakításra, így a nyári klimatizálás is könnyedén megoldható modern, esztétikus módon.

Egyedi mérhetőség, szabályozható komfort
A fűtés és hűtés fogyasztása lakásonként külön mérhető:
• a rendszer fogyasztását hőmennyiségmérő rögzíti
• a vízfogyasztáshoz 1 db vízóra kerül felszerelésre, amely összeköttetésben áll a hőmennyiségmérővel
A lakások hőmérséklete kényelmesen szabályozható:
• a nappaliban és a hálószobákban külön-külön állítható
• zónánként kezelhető rendszer a maximális komfort érdekében

Kulcsrakész átadás – választható belső kialakítással
A meghirdetett árak kulcsrakész állapotra vonatkoznak, mely tartalmazza:
• választható hideg- és melegburkolatokat
• beltéri ajtókat
• modern szanitereket
Így az új tulajdonos saját ízlésére formálhatja otthonát már a kivitelezés során.

Parkolás és tárolók (kötelezően megvásárolandó)
A lakásokhoz az alábbi opciók közül választható parkolóhely tartozik:
• Garázs: 5,5 M Ft
• Fedett beálló: 4,5 M Ft
• Udvari beálló: 3 M Ft
Tároló vásárlása kötelező: 1,7 M Ft

Elérhető lakások – már csak 5 db!
1. emeleti lakások
Lakás 1.
• 75 m² + 6 m² erkély
• 2 hálószoba + amerikai konyhás nappali
• fürdőszoba + külön WC
Ár: 93,9 M Ft
Lakás 2.
• 66 m² + 6 m² erkély
• 2 hálószoba + amerikai konyhás nappali
• fürdőszoba + külön WC
Ár: 86,9 M Ft
2. emeleti lakás
Lakás 6.
• 66 m² + 6 m² erkély
• 2 hálószoba + amerikai konyhás nappali
• fürdőszoba + külön WC
Ár: 86,9 M Ft


Penthouse lakások a tetőtérben
Penthouse 1.
• 60 m² + 48 m² panorámás terasz
• 1 hálószoba + amerikai konyhás nappali
• fürdőszoba + külön WC
Ár: 86,9 M Ft
Penthouse 2.
• 63 m² + 41 m² hatalmas terasz
• 2 hálószoba + amerikai konyhás nappali
• fürdőszoba + külön WC
Ár: 89,9 M Ft

Érdeklődés, foglalás
A lakások száma korlátozott, a projekt kiemelkedő elhelyezkedése és műszaki színvonala miatt gyors értékesítés várható.
Keressen bizalommal további információért, alaprajzokért és személyes egyeztetésért!
A leírás és az alaprajz kizárólag tájékoztató jellegű.
IRODÁNK INGYENES HITELÜGYINTÉZÉSSEL, TANÁCSADÁSSAL, SZÁMOS BANK AJÁNLATÁVAL ÉS ÚJ CSOK PLUSZ FOLYÓSÍTÁSÁVAL VÁRJA ÜGYFELEIT.
Ez a modern, energiatakarékos és prémium kivitelezésű otthon rövid időn belül birtokba vehető. Ne hagyja ki ezt a lehetőséget, hogy álmai otthonába költözhessen!

Lakás részletei

Ár: 86 900 000 Ft
Méret: 70 négyzetméter
Azonosító: 11605292
Irodai azonosító: 349791
Összesített energetikai besorolás: A+
Emelet: 1. emelet
Építőanyag: Tégla
Ingatlan állapota: Kitűnő
Komfort fokozat: Összkomfort
Építési év: Új építésű
Egész szobák: 3

Egyéb jellemzők

  • Erkély
  • Garázs
  • Lift
  • Kertkapcsolat

Hasonló lakás hirdetések

Eladó lakás

Budapest XVIII. ker

Eladó tágas, alakítható földszinti lakás az Alacskai lakótelepen! Az ...

Eladó lakás

Budapest XVIII. ker, Miklóstelep

XVIII. KÉTSZINTES SORHÁZI Ház – NYUGODT KÖRNYEZETBEN XVIII. kerület ...

Eladó lakás

Budapest XVIII. ker

Új építésű, prémium társasházi lakások Budapest XVIII. kerületében ...

Eladó lakás

Budapest XVIII. ker

 NAPFÉNYES, ERKÉLYES TÉGLALAKÁS ELADÓ – SZENT IMRE-KERTVÁROS  3. ...

Hasonló lakás hirdetések

Eladó lakás

Budapest XVIII. ker

Eladó tágas, alakítható földszinti lakás az Alacskai lakótelepen! Az ...

Eladó lakás

Budapest XVIII. ker, Miklóstelep

XVIII. KÉTSZINTES SORHÁZI Ház – NYUGODT KÖRNYEZETBEN XVIII. kerület ...

Eladó lakás

Budapest XVIII. ker

Új építésű, prémium társasházi lakások Budapest XVIII. kerületében ...

Eladó lakás

Budapest XVIII. ker

 NAPFÉNYES, ERKÉLYES TÉGLALAKÁS ELADÓ – SZENT IMRE-KERTVÁROS  3. ...