Eladó lakás Budapest XXII. ker 138 000 000 Ft

Leírás

Eladó új építésű otthonok Budapest–Nagytétényben – modern, fiatalos, energiatakarékos!

Ha egy új, kényelmes és modern otthont keresel nyugodt környezetben, akkor ezt érdemes megnézned!
Budapest XXII. kerületének kedvelt részén, Nagytétényben eladó egy új építésű, 2 lakásos társasház mindkét lakása.

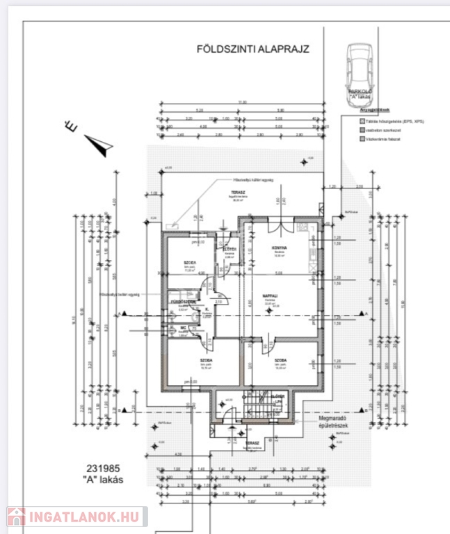
Lakások főbb jellemzői
• 110 m²-es lakótér
• kb 350 nm saját telekrész
• amerikai konyhás nappali + 3 külön nyíló hálószoba
• 1 fürdőszoba
• 1 háztartási helyiség
• saját garázs mindkét lakáshoz

⚡ Modern műszaki tartalom
• energiatakarékos hőszivattyús fűtés lakásonként
• padlófűtés minden helyiségben
• klíma minden szobában
• 3 rétegű műanyag nyílászárók
• elektromos redőnyök
• 10 cm külső hőszigetelés

Biztonság és kényelem
• kamera- és riasztórendszer kiállások
• új kerítés
• elektromos kapu

A lakások ideálisak családoknak vagy mindazoknak, akik új, alacsony rezsijű otthont keresnek Budapest zöldebb, nyugodtabb részén, mégis jó közlekedéssel.
A képeken a földszinti lakás látható, ami külön lépcsőházból megközelíthető. A telek két utcára nyílik, így a két lakás és a hozzájuk tartozó telekrész is külön utcáról bejáratos.

Amennyiben a megvásárláshoz hitelre van szükség, bankfüggetlen hitelcentrumunk díjmentesen áll ügyfeleink rendelkezésére.

További információért vagy megtekintésért keress bizalommal!

Lakás részletei

Ár: 138 000 000 Ft
Méret: 110 négyzetméter
Azonosító: 11604440
Irodai azonosító: 393413
Cím: Nagytétény
Emelet: 1. emelet
Építőanyag: Tégla
Fűtés jellege: Hőszivattyú
Ingatlan állapota: Kitűnő
Komfort fokozat: Dupla komfort
Építési év: Új építésű
Tulajdonviszony: Saját
Kilátás: udvari
Egész szobák: 4

Egyéb jellemzők

  • Erkély
  • Garázs
  • Lift
  • Pince
  • Tároló

Térkép

Hasonló lakás hirdetések

Eladó lakás

Budapest XXII. ker

Eladó új építésű otthonok Budapest–Nagytétényben – modern, fiatalos, ...

Eladó lakás

Budapest XXII. ker

Kedves Ingatlankereső! Ajánlom figyelmébe ezt a most épülő Társasházi ...

Hasonló lakás hirdetések

Eladó lakás

Budapest XXII. ker

Eladó új építésű otthonok Budapest–Nagytétényben – modern, fiatalos, ...

Eladó lakás

Budapest XXII. ker

Kedves Ingatlankereső! Ajánlom figyelmébe ezt a most épülő Társasházi ...