Eladó lakás Budapest XXIII. ker 77 575 000 Ft

Leírás

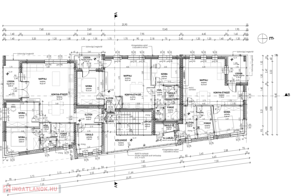
Eladó egy új építésű, összesen 6 lakásból álló társasház valamennyi lakása.

Az ingatlan Soroksár új kertvárosi lakóparkjában, csendes, családbarát környezetben található, ahol a nyugodt életvitel és a jó városi elérhetőség harmonikusan találkozik.

A város zajától távol, mégis kiváló infrastruktúrával rendelkezik: üzletek, szolgáltatások és tömegközlekedés könnyen elérhetők.

A Soroksári kiserdő és a Duna közelsége különleges, természetközeli hangulatot biztosít, amely valódi otthonérzetet nyújt a leendő tulajdonosok számára.

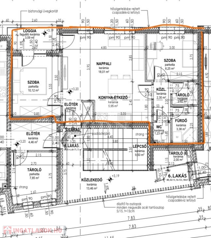
5. lakás:
- Emelet,
- 53,5 nm,
- 2 szoba,
- Amerikai konyhás nappali,
- Fürdő-Wc,
- Kamra,
- Erkély 3,7nm.
- 77.575.000 Ft

További lakások az emeleten:
4. lakás: 100.050.000 Ft
6. lakás: 69.600.000 Ft


MŰSZAKI TARTALOM

Szerkezet és szigetelés
• ProKoncept rendszerű falazat (25–35 cm vastagság)
• 15 cm vastag grafitos hőszigetelés a homlokzaton
• Lábazati és koszorú előtti hőszigetelés
• Talajnedvesség elleni bitumenes szigetelés
• Kiemelkedő hő- és hangszigetelési tulajdonságok

Tető
• Égetett agyag cserépfedés
• Alacsony hajlásszögű tetőrészeken korcolt fémlemez fedés
• Tartós, időjárásálló szerkezeti kialakítás

Nyílászárók
• Műanyag nyílászárók, 3 rétegű hőszigetelő üvegezéssel
• Jó hő- és hangszigetelési értékek
• Teraszajtók szintén 3 rétegű üvegezéssel

Fűtés – gépészet
• Levegő–víz hőszivattyús fűtési rendszer
• Felületfűtés (padlófűtés)
• Elektromos bojleres melegvíz-ellátás

Energia & jövőállóság
• Energiatakarékos, korszerű műszaki megoldások
• Napelem későbbi kiépítésének lehetősége
• Elektromos autó töltés előkészítése

Burkolatok, belső kialakítás
• Gipszkarton álmennyezet
• Burkolatok magas minőségben, választható kivitelben

Parkolás, környezet
• Telken belüli parkolás
• Minden lakáshoz saját autóbeálló
• Földszinti lakásokhoz saját kis kert
• Aszfaltozott utca, kiépített közművek

Az elkészült lakások lakhatási engedéllyel kerülnek átadásra!!!
Tervezett átadás: 2026. év vége!

Ütemezés: 20% foglaló, a fennmaradó összeg megbeszélés alapján.

Az ingatlan 3%-os Otthon Start hitellel is megvásárolható.


Irodánk 30 éves szakmai tapasztalattal áll ügyfelei rendelkezésére!
Bankfüggetlen hitelcentrummal, jogi hátérrel segítjük ingatlanvásárlását!
Várom szíves megkeresését, hívjon bizalommal!

Lakás részletei

Ár: 77 575 000 Ft
Méret: 53 négyzetméter
Azonosító: 11601017
Irodai azonosító: 392884
Cím: Kertvárosi körút
Emelet: 1. emelet
Építőanyag: Tégla
Fűtés jellege: Hőszivattyú
Ingatlan állapota: Kitűnő
Komfort fokozat: Összkomfort
Építési év: Új építésű
Tulajdonviszony: Saját
Kilátás: udvari
Egész szobák: 3

Egyéb jellemzők

  • Erkély
  • Garázs
  • Lift
  • Pince
  • Tároló

Térkép

Hasonló lakás hirdetések

Eladó lakás

Budapest XXIII. ker

Prémium minőségben felújított otthon Soroksár szívében! Eladásra ...

Eladó lakás

Budapest XXIII. ker

Soroksár frekventált részén eladó 87 m2-es lakás, ami irodának is kiválóan ...

Eladó lakás

Budapest XXIII. ker

Eladásra kínálok, Budapest XXIII. Kerületében, Soroksár szívében, igényesen ...

Eladó lakás

Budapest XXIII. ker

Prémium minőségben felújított, kertkapcsolatos otthon Soroksár szívében! Eladásra ...

Hasonló lakás hirdetések

Eladó lakás

Budapest XXIII. ker

Prémium minőségben felújított otthon Soroksár szívében! Eladásra ...

Eladó lakás

Budapest XXIII. ker

Soroksár frekventált részén eladó 87 m2-es lakás, ami irodának is kiválóan ...

Eladó lakás

Budapest XXIII. ker

Eladásra kínálok, Budapest XXIII. Kerületében, Soroksár szívében, igényesen ...

Eladó lakás

Budapest XXIII. ker

Prémium minőségben felújított, kertkapcsolatos otthon Soroksár szívében! Eladásra ...