Eladó lakás Cegléd 68 000 000 Ft

Leírás

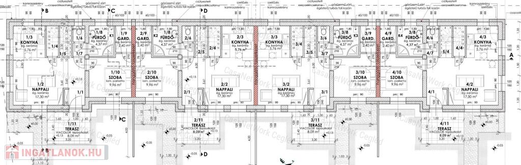
A CASANETWORK CEGLÉD eladásra kínálja a 174601461-es számú, új építésű TÁRSASHÁZI TÉGLALAKÁS-t Cegléden, jó környéken.  Az általam eladásra kínált ingatlan 86 nm-es, tetőtér beépítéses. Az ingatlanok sorházi jellegükből adódóan egy telken épülnek, zárt udvarral, külön-külön saját parkolóhellyel. Mindegyik ingatlanhoz saját kertrész tartozik. 

Kimagasló műszaki tartalom, megbízható kivitelező.

A jelenleg meghirdetett ingatlanok mérnöki rajzok alapján lettek közzétéve! Figyelembe kell venni, hogy a használatbavételi engedély kiadása után az ingatlanok m²-ben kisebb vagy nagyobb eltérést mutathatnak (+/- irányba).

A CASANETWORK CEGLÉD által kínált TÁRSASHÁZI LAKÁS további jellemzői:

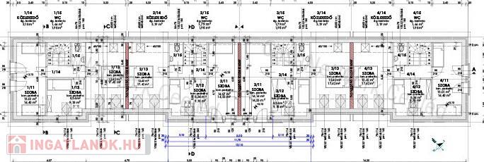
  • - 91 m2 lakótér (kétszintes-földszinti + tetőtér beépítve
  • - A földszint: terasz, nappali, konyha, fürdőszoba, wc, szoba, tároló
  • - Az emelet: közlekedő, 3 szoba, wc+ erkély
  • - H tarifa
  • - Energetikai besorolás A+
  • - Tégla építésű, hungarocell hőszigetelés (beton alap)
  • - Belmagasság 2,7 méter
  • - Fűtése kondenzációs gázkazán (radiátorok) és padlófűtés, hőszivattyú,
  • - Hő- és hangszigetelt, új műanyag nyílászárók, VELUX tetőablakok,
  • - Parkolni az udvarban, ingyenesen lehet, minden lakáshoz külön parkolóhely
  • - Klíma ( Hűt- fűt),
  • - A tervek alapján a lakások CSOK hitelre alkalmasak lesznek (bővebb tájékoztatás személyesen)
  • - Az alaprajzok megtekintése illetve plusz információk kizárólag egyeztetett időpontban a CasaNetwork ceglédi irodájában lehetséges!

Amennyiben a 174601461 számú A CASANETWORK CEGLÉD által kínált TÉGLALAKÁS,  vagy bármely a kínálatunkban található LAKÁS felkeltette érdeklődését, hívjon a megadott telefonszámon. /A hirdetésben szereplő információk a megbízótól kapott adatok alapján készültek, pontosságukért felelősséget nem vállalunk!/

Kollégám díjmentes, bank semleges hitel ügyintézéssel áll rendelkezésre.

CASANETWORK - Ingatlanban otthon vagyunk!

Lakás részletei

Ár: 68 000 000 Ft
Méret: 91 négyzetméter
Azonosító: 11164955
Irodai azonosító: 174601461
Emelet: Földszint
Építőanyag: Tégla
Fűtés jellege: Cirkó
Ingatlan állapota: Kitűnő
Egész szobák: 4

Hasonló lakás hirdetések

Eladó lakás

Cegléd

Új építésű 86 m2 lakás eladó Cegléden!A CASANETWORK CEGLÉD eladásra ...

Hasonló lakás hirdetések

Eladó lakás

Cegléd

Új építésű 86 m2 lakás eladó Cegléden!A CASANETWORK CEGLÉD eladásra ...