Eladó lakás Cegléd 68 000 000 Ft

Leírás

Új építésű lakások eladók Cegléden – már csak két lakás maradt!

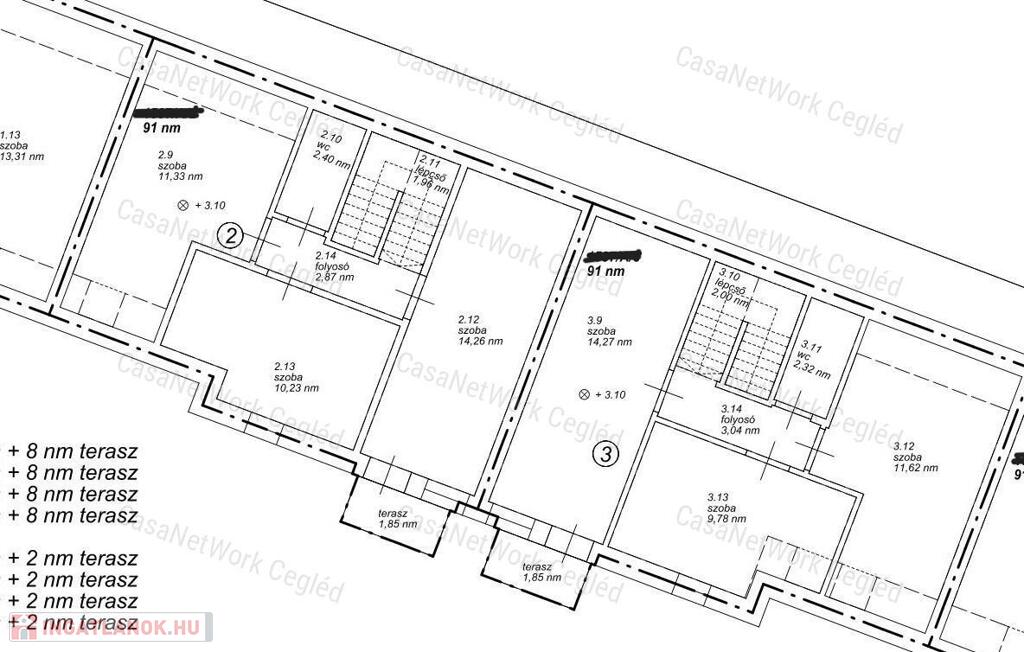
A CasaNetwork Cegléd kínálatában elérhető egy 4 lakásos, modern társasház, amelyből már csak a 2-es és 3-as számú lakás eladó (azonosító: 174602147). A hirdetésben szereplő lakás a 3 lakás.

Az ingatlan 91 m² alapterületű, sorházi jellegű épület része, zárt udvarban helyezkedik el, saját kerttel és parkolóhellyel.
A lakás idei átadású, önálló helyrajzi számmal rendelkezik, valamint fix 3% hitelre OSP konstrukcióra is alkalmas.

A lakások kétszintesek, tetőtér-beépítésesek és tégla építésűek, korszerű anyagokkal, modern technológiával és kiváló hőszigeteléssel készülnek. A tágas, napfényes helyiségek és az átgondolt belső elrendezés kényelmes, otthonos életteret biztosítanak.

A társasház Cegléd egyik kedvelt, csendes, családbarát környékén található. A közelben bevásárlási lehetőségek, iskola, óvoda és buszmegálló is megtalálhatók, így a mindennapi élethez szükséges minden karnyújtásnyira van.

Ezek a lakások ideális választást jelentenek családoknak és pároknak, akik minőségi, új építésű otthont keresnek Cegléden, zárt udvarban, saját kerttel és parkolóval.

A földszinten egy világos nappali, konyha, fürdőszoba, külön WC, szoba és tároló kapott helyet, valamint egy 7,6 m²-es terasz is tartozik a lakáshoz, amely közvetlen kapcsolatot biztosít a kerttel. Az emeleten egy közlekedő, három külön nyíló szoba, egy WC és egy 1,8 m²-es erkély található.

Az ingatlan A+ energetikai besorolású, tégla falazattal, beton alappal és hungarocell hőszigeteléssel épül. A belmagasság 2,7 méter, a nyílászárók korszerű, hő- és hangszigetelt műanyag ablakok, a tetőtérben pedig VELUX tetőablakok kerülnek beépítésre. A fűtést és a hűtést kondenzációs gázkazán, padlófűtés, valamint hőszivattyú és hűtő-fűtő klíma biztosítja, továbbá H tarifa is elérhető.

A parkolás az udvarban, saját, ingyenes parkolóhelyen megoldott. 

A lakások CSOK és banki hitel igénylésére is alkalmasak, bővebb tájékoztatás személyesen kérhető. Az alaprajzok és további információk előzetes időpont-egyeztetést követően a CasaNetwork ceglédi irodájában megtekinthetők.

Amennyiben a 174602147-es számú, új építésű társasházi tégla lakás vagy bármely más kínálatunkban szereplő ingatlan felkeltette érdeklődését, hívjon bizalommal. Kollégánk díjmentes, banksemleges hitelügyintézéssel áll rendelkezésére.

CasaNetwork – Ingatlanban otthon vagyunk!

Lakás részletei

Ár: 68 000 000 Ft
Méret: 91 négyzetméter
Azonosító: 11571422
Irodai azonosító: 174602147
Emelet: Földszint
Építőanyag: Tégla
Fűtés jellege: Cirkó
Ingatlan állapota:
Egész szobák: 5

Hasonló lakás hirdetések

Eladó lakás

Cegléd

Új építésű 86 m2 lakás eladó Cegléden!A CASANETWORK CEGLÉD eladásra ...

Eladó lakás

Cegléd

ÚJ ÉPÍTÉSŰ TÁRSASHÁZI LAKÁSOK CEGLÉD BELVÁROSÁBAN KOCSIBEÁLLÓVAL! ...

Eladó lakás

Cegléd

ÚJ ÉPÍTÉSŰ TÁRSASHÁZI LAKÁSOK CEGLÉD BELVÁROSÁBAN KOCSIBEÁLLÓVAL! ...

Eladó lakás

Cegléd

Cegléden a belváros szívében most épülő 6 lakásos társasházban kínálom ...

Hasonló lakás hirdetések

Eladó lakás

Cegléd

Új építésű 86 m2 lakás eladó Cegléden!A CASANETWORK CEGLÉD eladásra ...

Eladó lakás

Cegléd

ÚJ ÉPÍTÉSŰ TÁRSASHÁZI LAKÁSOK CEGLÉD BELVÁROSÁBAN KOCSIBEÁLLÓVAL! ...

Eladó lakás

Cegléd

ÚJ ÉPÍTÉSŰ TÁRSASHÁZI LAKÁSOK CEGLÉD BELVÁROSÁBAN KOCSIBEÁLLÓVAL! ...

Eladó lakás

Cegléd

Cegléden a belváros szívében most épülő 6 lakásos társasházban kínálom ...