Eladó lakás Csorna 52 000 000 Ft

Leírás


Csorna központi részén épülő 17 lakásos társasházban új építésű lakások eladók.

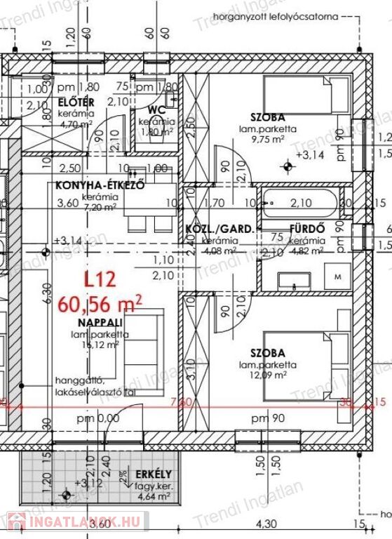
A meghirdetett 1. emeleten található 60,56 nm-es ingatlanban amerikai konyhás nappali, 2 szoba, fürdőszoba, külön WC, gardrób, előtér kerül kialakításra. A nappaliból 4,64 nm-es erkély nyílik.

A lakás fűtéskész ára: 52.000.000 Ft. Kulcsrakész befejezés kérhető.

A lakáshoz 1 db gépkocsibeálló tartozik.

A minőségi anyagokból épülő tárasház 30 cm-es falazóelemből, 15 cm-es homlokzati hőszigeteléssel épül. A 3 rétegű műanyag nyílászárók kívül fehér színűek. A társasház fűtését hőszivattyú biztosítja, lakásonként egyedi hőmennyiségmérővel, hőleadás padlófűtéssel. A társasház udvarán térkövezett gépkocsibeállók kerülnek kialakításra.

Várható fűtéskész átadás: 2026 ősz

Bővebb információkért forduljon hozzám bizalommal.

Hétköznap és hétvégén is várom hívását!

Díjmentes, bankfüggetlen hitelügyintézéssel állunk rendelkezésére.

A hirdetésben feltüntetett képek illusztrációk.

Lakás részletei

Ár: 52 000 000 Ft
Méret: 61 négyzetméter
Azonosító: 11567707
Irodai azonosító: 196400792
Emelet: 1. emelet
Építőanyag: Tégla
Ingatlan állapota: Kitűnő
Komfort fokozat: Összkomfort
Építési év: Új építésű
Egész szobák: 3

Egyéb jellemzők

  • Lift

Hasonló lakás hirdetések

Eladó lakás

Csorna

Azonnal költözhető erkélyes lakás! Csorna mellékutcájában ...

Hasonló lakás hirdetések

Eladó lakás

Csorna

Azonnal költözhető erkélyes lakás! Csorna mellékutcájában ...