Eladó lakás Debrecen, Belváros, 129 100 000 Ft

Leírás

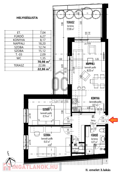
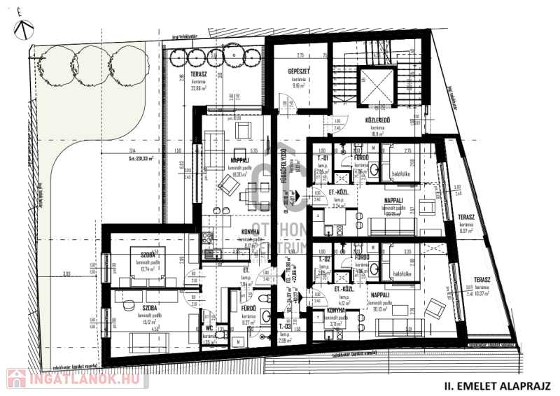
II. emelet 3. lakás 71 nm + 23 nm terasz:

- nappali
- konyha
- 2 hálószoba
- előszoba
- tároló
- terasz
Projekt bemutatása

Belváros szívében, Nagytemplomtól 500 méterre épül a 8 lakásos, liftes társasház.

Az értékesítés elkezdődött!!!!

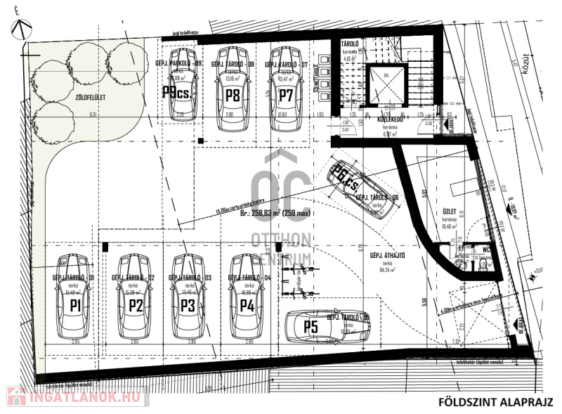
Földszinten 1 db üzlethelyiség és fedett/nyitott gépjárműtárolók (8MFt + ÁFA), melyek megvásárlása nem szükségszerű!
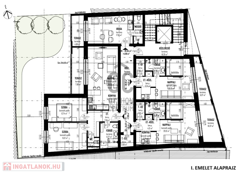
Az I. és II. emeletén 3 - 3 lakás, melyek garzon (nappali + hálófülke) és nappali + 2 hálós kialakításuak.
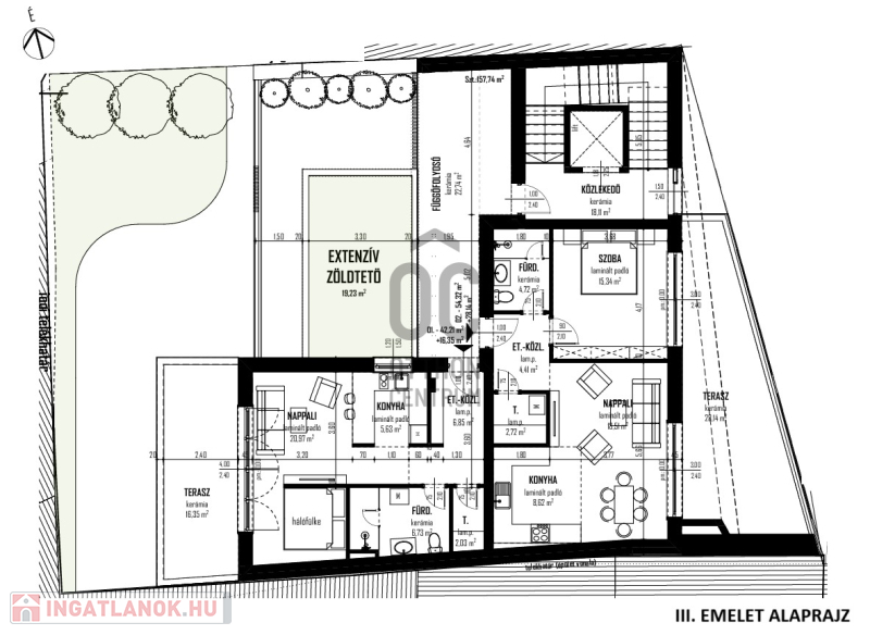
A III. emeleten 2 lakás, melyből az egyik garzon, míg a másik nappali + 1 hálós.

A modern és ízléses külsőhöz egyedi elosztású, élhető terekkel rendelkező, napfényes lakásokat terveztek, házközpontú kondenzációs gázkazánnal, padlófűtéssel, hőszigetelt nyílászárókkal, minőségi szaniterekkel.

A beruházó és kivitelező múltja és referenciái, garancia a minőségi és egyben megbízható projektnek!

KÖZPONTI ELHELYEZKEDÉS, KIVÁLÓ KÖZLEKEDÉS:

A Hal köz párszáz méterre kávézókkal, éttermekkel, teraszokkal várja a vendégeket.
Villamos és buszközlekedés csak séta távolságra, mellyel a város bármelyik pontjára könnyen eljuthatunk.
A kiváló infrastruktúrának köszönhetően az ingatlanok értékállóak.
Ideális mindazok számára, akik szeretnek a belvárosban élni és az ezzel járó számos előnyt élvezni!
A lakások - akár külföldi - bérlők igényeit is kielégítő, könnyen bérbe adható, ízléses apartmanokká alakíthatóak!

Válasszon az alábbi lehetőségek közül, ha Önnek fontos a belváros nyújtotta kedvező adottság, illetve az értékállóságot keresi jövőjét illetően!

Várható átadás: 2026. III. negyedév.

Hitelügyintézést banki kollégánk teljeskörűen és ingyen bonyolítja Önnek irodánkban, de akár otthonában is!

Lakás részletei

Ár: 129 100 000 Ft
Méret: 71 négyzetméter
Azonosító: 11569934
Városrész: Belváros
Építőanyag: Tégla
Fűtés jellege: Cirkó
Ingatlan állapota: Kitűnő
Kilátás: kertre néző
Egész szobák: 3

Egyéb jellemzők

  • Erkély
  • Garázs
  • Lift
  • Kertkapcsolat
  • Tároló
  • Kocsibeálló

Hasonló lakás hirdetések

Eladó lakás

Debrecen, Belváros

Debrecen, Belvárosának szívében, 2022-ben, magas műszaki tartalommal megépült, ...

Eladó lakás

Debrecen, Belváros

Debrecen abszolút Belvárosában, de mégis csendes övezetben, modern, egyedi ...

Eladó lakás

Debrecen, Belváros

Debrecen abszolút Belvárosában, de mégis csendes övezetben, modern, egyedi ...

Eladó lakás

Debrecen, Belváros

Debrecen belvárosában, a Nagytemplom közvetlen közelében 90%-os készültségben ...

Hasonló lakás hirdetések

Eladó lakás

Debrecen, Belváros

Debrecen, Belvárosának szívében, 2022-ben, magas műszaki tartalommal megépült, ...

Eladó lakás

Debrecen, Belváros

Debrecen abszolút Belvárosában, de mégis csendes övezetben, modern, egyedi ...

Eladó lakás

Debrecen, Belváros

Debrecen abszolút Belvárosában, de mégis csendes övezetben, modern, egyedi ...

Eladó lakás

Debrecen, Belváros

Debrecen belvárosában, a Nagytemplom közvetlen közelében 90%-os készültségben ...