Eladó lakás Debrecen 222 000 000 Ft

Leírás

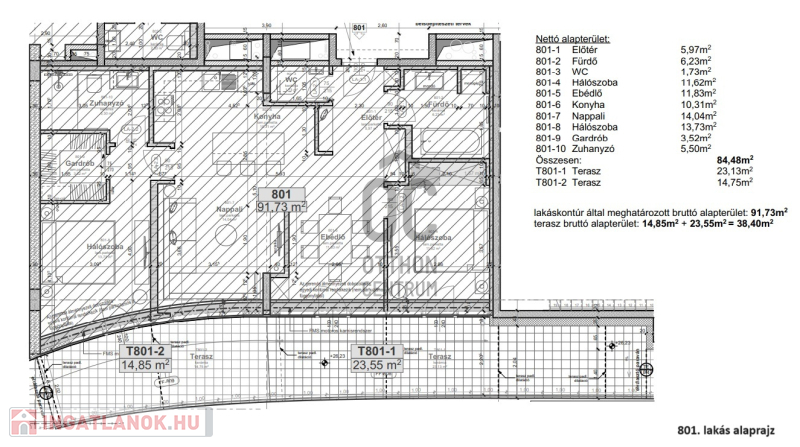
Eladó a város egyik legkülönlegesebb, új építésű társasházában egy VIII. emeleti, br. 92 m²-es, belsőépítész által tervezett, magas presztízsű lakás, 38 m²-es panorámás terasszal, három kijárattal.
A lakás a projekt egyik kiemelt darabja: luxus kivitelezés, modern vonalvezetés, páratlan szolgáltatások.

Főbb paraméterek:
* tágas nappali + szeparált étkező
* dizájn konyha minőségi gépekkel teljesen felszerelve
* 2 külön nyíló hálószoba
* gardrób
* 2 modern fürdőszoba
* hatalmas, 38 m²-es terasz csodás panorámával

A lakók szállodai élményt kapnak, többek között:
- autólift a mélygarázsban
- recepció és beléptetőrendszer
- tetőterasz napozóval, medencével, jacuzzival, szaunával
-házon belüli étterem
-üvegkorlátos, tágas erkélyek minden lakáshoz
-központi padlófűtés + mennyezeti hűtés-fűtés
-egységes függönyök, modern burkolatok, elegáns fürdők

AZ UTOLSÓ EXKLUZÍV LAKÁSOK EGYIKE!

Ha prémium minőségű, szolgáltatásokkal körülvett, modern és értékálló otthont keres a Nagyerdő kapujában – ez az Ön lakása.
Projekt bemutatása

Debrecen belvárosát a Nagyerdővel összekötő sugárúton kerül kivitelezésre a helyi neves tervező házaspár által megálmodott, egyedi megoldású, könnyed vonalvezetésű, igényes, 60 lakásos társasház.
Az otthonos lakások mindegyikére jellemző a fényes terek, kellemes időjárás-független hőmérséklet, csodálatos panoráma.

A tervezésnél elsődleges szempont volt, hogy a lakók úgy érezzék magukat, mintha egy szállodában lennének:
-lift nemcsak a társasházban, hanem a garázsban is (autólift)
-portaszolgálat / recepció, beléptetőrendszer
-tetőteraszon napozó, medence, szauna, jakuzzi, amit a lakók használhatnak
-étterem.

A lakások mindegyike:
-erkélyes
-konyhával és minőségi gépekkel felszerelt
-fürdőszobák ízléses, modern kialakításuak
-egységes függönyökkel ellátottak
-padlófűtés és mennyezet fűtés-hűtésű.

A budapesti sikeres beruházó hajdúsági gyökerekkel rendelkezik. Büszkeség számukra nemcsak Debrecen legkülönlegesebb lakóingatlanát fejleszteni, de mind a beruházást, mind az üzemeltetést cégcsoporton belül megvalósítani. Ezáltal vevőközpontú vásárlási folyamatot alakítottak ki először a régióban, így nem Ön finanszírozza a beruházást, hanem a beruházó és Önnek semmilyen anyagi kockázata nincs!

Ne késlekedjen, legyen Ön is lakástulajdonos ebben a csúcskategóriás komplexumban!

Lakás részletei

Ár: 222 000 000 Ft
Méret: 92 négyzetméter
Azonosító: 11408294
Építőanyag: Tégla
Ingatlan állapota: Kitűnő
Kilátás: utcai
Egész szobák: 3

Egyéb jellemzők

  • Erkély
  • Garázs
  • Lift
  • Kertkapcsolat
  • Tároló
  • Kocsibeálló

Hasonló lakás hirdetések

Eladó lakás

Debrecen

Projekt bemutatása Debrecen Nagyerdei lakóövezetében új 6 lakásos lakóépület ...

Eladó lakás

Debrecen

Debrecen belváros, pláza mellett!!! Kivételes belvárosi befektetési ...

Eladó lakás

Debrecen

Modern otthon álomszép kerttel. Eladó egy 2019-ben épült, önálló tégla ...

Eladó lakás

Debrecen, Belváros

Debrecen óvárosi részén, csendes utcában eladó egy első emeleti, bruttó ...

Hasonló lakás hirdetések

Eladó lakás

Debrecen

Projekt bemutatása Debrecen Nagyerdei lakóövezetében új 6 lakásos lakóépület ...

Eladó lakás

Debrecen

Debrecen belváros, pláza mellett!!! Kivételes belvárosi befektetési ...

Eladó lakás

Debrecen

Modern otthon álomszép kerttel. Eladó egy 2019-ben épült, önálló tégla ...

Eladó lakás

Debrecen, Belváros

Debrecen óvárosi részén, csendes utcában eladó egy első emeleti, bruttó ...