Eladó lakás Debrecen, Belváros, 42 900 000 Ft

Leírás

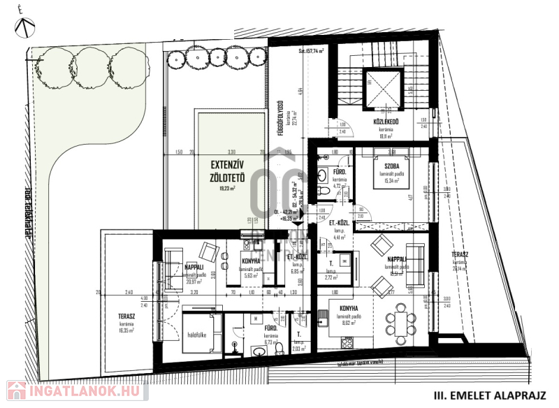
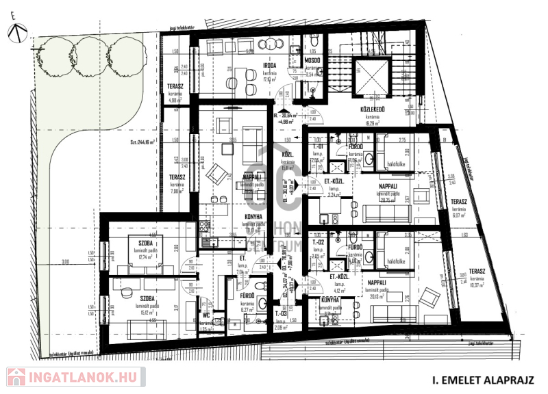
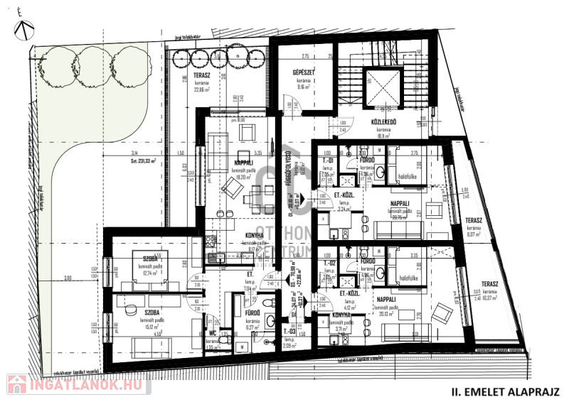
III. emelet 2/A lakás (20 nm + 11 nm terasz):

A stúdió lakás egy nagy lakás kettéosztásából lett kialakítva:
- nappali/háló, konyha étkezővel
- előtér
- fürdőszoba-WC
- terasz.

Ideális egyedülállónak, egyetemistának, aki kis fenntartási költséggel, mégis a belváros összes előnyével keres új építésű otthont!

Befektetőknek, akik ismerik a stúdió lakás összes előnyét!
Projekt bemutatása

Belváros szívében, Nagytemplomtól 500 méterre épül a 8 lakásos, liftes társasház.

Az értékesítés elkezdődött!!!!

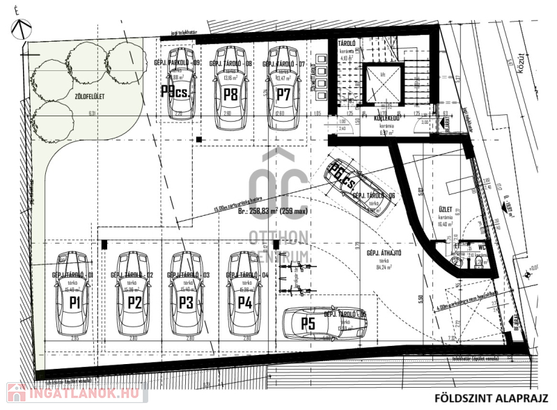
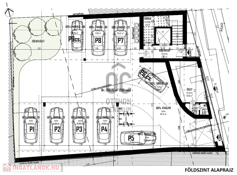
Földszinten 1 db üzlethelyiség és fedett/nyitott gépjárműtárolók (8MFt + ÁFA), melyek megvásárlása nem szükségszerű!
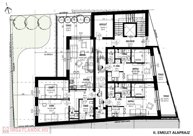
Az I. és II. emeletén 3 - 3 lakás, melyek garzon (nappali + hálófülke) és nappali + 2 hálós kialakításuak.
A III. emeleten 2 lakás, melyből az egyik garzon, míg a másik nappali + 1 hálós.

A modern és ízléses külsőhöz egyedi elosztású, élhető terekkel rendelkező, napfényes lakásokat terveztek, házközpontú kondenzációs gázkazánnal (fan-coil) fűtés-hűtés, hőszigetelt nyílászárókkal, minőségi szaniterekkel.

A beruházó és kivitelező múltja és referenciái, garancia a minőségi és egyben megbízható projektnek!

KÖZPONTI ELHELYEZKEDÉS, KIVÁLÓ KÖZLEKEDÉS:

A Hal köz párszáz méterre kávézókkal, éttermekkel, teraszokkal várja a vendégeket.
Villamos és buszközlekedés csak séta távolságra, mellyel a város bármelyik pontjára könnyen eljuthatunk.
A kiváló infrastruktúrának köszönhetően az ingatlanok értékállóak.
Ideális mindazok számára, akik szeretnek a belvárosban élni és az ezzel járó számos előnyt élvezni!
A lakások - akár külföldi - bérlők igényeit is kielégítő, könnyen bérbe adható, ízléses apartmanokká alakíthatóak!

Válasszon az alábbi lehetőségek közül, ha Önnek fontos a belváros nyújtotta kedvező adottság, illetve az értékállóságot keresi jövőjét illetően!

Várható átadás: 2026. III. negyedév.

Hitelügyintézést banki kollégánk teljeskörűen és ingyen bonyolítja Önnek irodánkban, de akár otthonában is!

Lakás részletei

Ár: 42 900 000 Ft
Méret: 20 négyzetméter
Azonosító: 11568913
Városrész: Belváros
Építőanyag: Tégla
Fűtés jellege: Egyéb
Ingatlan állapota: Kitűnő
Kilátás: utcai
Egész szobák: 1

Egyéb jellemzők

  • Erkély
  • Garázs
  • Lift
  • Kertkapcsolat
  • Tároló
  • Kocsibeálló

Hasonló lakás hirdetések

Eladó lakás

Debrecen, Belváros

Debrecen-Belváros Nagyállomás közeli részében, egy igazán különleges ...

Eladó lakás

Debrecen

Debrecen Angyalföld téren , Keleti fekvésű , 3. emeleti duplaliftes lépcsőházban ...

Eladó lakás

Debrecen

Belváros vonzáskörzetében, a Mata János utcán, csendes környezetben, ...

Eladó lakás

Debrecen

Belvárosban, a Vörösmarty utcán, 2009-ben épült, kilenclakásos, négyemeletes ...

Hasonló lakás hirdetések

Eladó lakás

Debrecen, Belváros

Debrecen-Belváros Nagyállomás közeli részében, egy igazán különleges ...

Eladó lakás

Debrecen

Debrecen Angyalföld téren , Keleti fekvésű , 3. emeleti duplaliftes lépcsőházban ...

Eladó lakás

Debrecen

Belváros vonzáskörzetében, a Mata János utcán, csendes környezetben, ...

Eladó lakás

Debrecen

Belvárosban, a Vörösmarty utcán, 2009-ben épült, kilenclakásos, négyemeletes ...