Eladó lakás Debrecen 60 000 000 Ft

Leírás

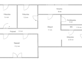
Eladásra kínálunk egy 61 m²-es, 1+2 félszobás, világos és csendes lakást Tócóvölgy szívében, egy rendezett, négyemeletes társasház 4. emeletén (nem zárószint!).

Főbb jellemzők:
- Alapterület: 61 m²
- Elrendezés: nappali/hálószoba, étkező, konyha, két félszoba, kamra, előszoba, külön fürdő és WC
- Távfűtés egyedi mérés nélkül, fűtő-hűtő klíma
- Új bejárati ajtó
- Frissen cserélt vízórák és szennyvízcsövek
- Új, garanciás csaptelepek a konyhában és fürdőben
- Saját, zárt tároló
- Gondozott, parkosított udvar játszótérrel, kondiparkkal és padokkal

Elhelyezkedés:
Tócóvölgy Debrecen egyik legkedveltebb és legbarátságosabb városrésze, kiváló infrastruktúrával.
A közelben minden megtalálható: élelmiszerbolt, iskola, óvoda, orvosi rendelő, gyógyszertár, pékség, ételbár, drogéria – sőt, még jégcsarnok is!

Közlekedése kiváló:
- Gyors elérés az autópálya-felhajtóhoz
- Könnyen megközelíthető a Déli, Határ úti és Nyugati Ipari park, valamint a belváros
- Ingyenes parkolás a ház körül

Tökéletes választás:
- Saját otthonnak
- Első lakásként
- Kisgyermekes családoknak
- Értékálló, biztonságos befektetésként

Az ingatlan kizárólag készpénzes vevők számára elérhető.

Ne hagyja ki ezt a kivételes lehetőséget – világos, tágas, gondosan karbantartott lakás Tócóvölgy legjobb részén!

További információért és megtekintésért keressen bizalommal a hét bármely napján!

Lakás részletei

Ár: 60 000 000 Ft
Méret: 61 négyzetméter
Azonosító: 11582505
Építőanyag: Panel
Ingatlan állapota: Átlagos
Kilátás: utcai
Egész szobák: 3

Egyéb jellemzők

  • Erkély
  • Garázs
  • Lift
  • Kertkapcsolat
  • Tároló
  • Kocsibeálló

Hasonló lakás hirdetések

Eladó lakás

Debrecen

Vargakerti városrészben, a Trombitás utcán, liftes épületben, 90/74 m2-es, ...

Eladó lakás

Debrecen

Debrecenben dinamikusan fejlõdõ részén a Tócóligetben 47m2-es magasföldszinti, ...

Eladó lakás

Debrecen

Eladó, Debrecenben a Libakertben, Egyetem közelében, villamos vonal mentén, ...

Eladó lakás

Debrecen

Debrecen frekventált városrészében, a Postakertben új építésű, 37-75 ...

Hasonló lakás hirdetések

Eladó lakás

Debrecen

Vargakerti városrészben, a Trombitás utcán, liftes épületben, 90/74 m2-es, ...

Eladó lakás

Debrecen

Debrecenben dinamikusan fejlõdõ részén a Tócóligetben 47m2-es magasföldszinti, ...

Eladó lakás

Debrecen

Eladó, Debrecenben a Libakertben, Egyetem közelében, villamos vonal mentén, ...

Eladó lakás

Debrecen

Debrecen frekventált városrészében, a Postakertben új építésű, 37-75 ...