Eladó lakás Debrecen 62 500 000 Ft

Leírás

Eladó Tégla Lakás Debrecen Nagyerdőalja Városrészben a Zöld utcán!!!! Stadion, Főnix csarnok, Kassai úti Campus a közelben!!

Eladásra kínálunk egy 62 m²-es, téglaépítésű lakást a közkedvelt Nagyerdőalja városrész csendes utcájában. Az ingatlan egy földszinti lakás, amely tökéletes választás mind fiatal pároknak, mind idősebb korosztálynak. Befektetésre is ideális, az egyetemek közelsége miatt!

Az ingatlan főbb jellemzői:
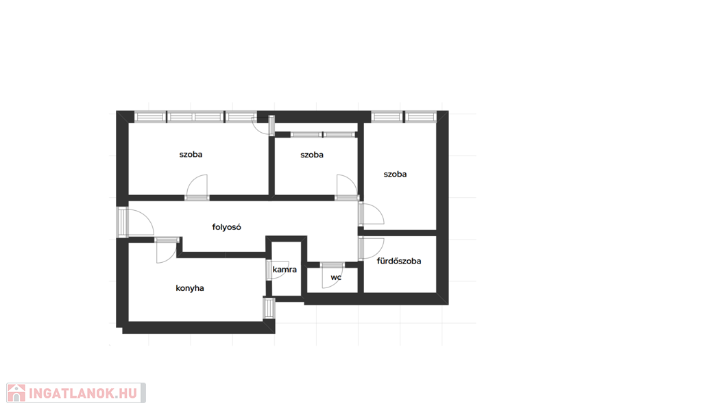
- Külön nyíló szobák: 17.6 m2, 6.08 m2, 9.24 m2.
- Fürdőszoba és WC külön helyiségben.
-Tágas konyha+ kamra,
- Beépített szekrények a folyosón, amelyek rengeteg tárolóhelyet biztosítanak.
- Egy kényelmes erkély, ahol élvezheti a friss levegőt és a zöld övezet nyugalmát.
- Közös tároló, ideális sporteszközök vagy kerékpár elhelyezésére.
-Szobákban konvektoros fűtés, a meleg vizet viaalnybojler biztosítja,
- Alacsony fenntartási költségek, így hosszú távon is gazdaságos választás,
-A rezsi és a közös költség is kedvező.

Nem fizetős parkolási övezet. Tömegközlekedés kiváló: troli- és buszmegálló 2-3 perc séta, villamos kb 10-15 percre.
A mindennapi élethez szükséges élelmiszer boltok, játszótér, zöldséges, dohánybolt, játszótér, benzinkút, gyógyszertár az épület szomszédságában.
Az ingatlan átlagos állapotú, de remek lehetőségeket rejt magában az egyedi igények szerinti alakításra. Kisebb ráfordítással is kiadható bérbe.A környék zöldövezeti elhelyezkedése garantálja a békés és nyugodt életet, ugyanakkor a belváros is közel van.
Az alaprajz tájékoztató jellegű!!

Ne hagyja ki ezt a kivételes lehetőséget! További információért és megtekintésért keressen bizalommal! Kresznóczki Ágnes +36 20 312 65 19
(További képekért és információkért kérem hívjon!)

Lakás részletei

Ár: 62 500 000 Ft
Méret: 60 négyzetméter
Azonosító: 11596812
Irodai azonosító: 058405
Erkély mérete: 4.00 négyzetméter
Építőanyag: Tégla
Fűtés jellege: Konvektoros
Ingatlan állapota: Átlagos
Komfort fokozat: Összkomfort
Egész szobák: 1
Fél szobák: 2

Egyéb jellemzők

  • Erkély
  • Garázs
  • Klíma
  • Lift
  • Pince
  • Kertkapcsolat

Hasonló lakás hirdetések

Eladó lakás

Debrecen

Debrecenben dinamikusan fejlõdõ részén a Tócóligetben 47m2-es magasföldszinti, ...

Eladó lakás

Debrecen

Eladó Debrecenben a Libakertben, három emeletes tégla építésű társasház ...

Eladó lakás

Debrecen, Tócóvölgyi lakótelep

Költözz Debrecen egyik legkedveltebb városrészébe – Derék utcai, földszinti, ...

Eladó lakás

Debrecen

Modern és ízléses tócóvölgyi lakás eladó! Debrecen, ...

Hasonló lakás hirdetések

Eladó lakás

Debrecen

Debrecenben dinamikusan fejlõdõ részén a Tócóligetben 47m2-es magasföldszinti, ...

Eladó lakás

Debrecen

Eladó Debrecenben a Libakertben, három emeletes tégla építésű társasház ...

Eladó lakás

Debrecen, Tócóvölgyi lakótelep

Költözz Debrecen egyik legkedveltebb városrészébe – Derék utcai, földszinti, ...

Eladó lakás

Debrecen

Modern és ízléses tócóvölgyi lakás eladó! Debrecen, ...