Eladó lakás Debrecen, Belváros, 66 900 000 Ft

Leírás

II. emelet 3/B. lakás 42 nm + 2 nm terasz:

A garzonlakás NEM OSZTOTT, hanem önálló lakás:
- nappali hálórész leválaszthatósággal
- konyha étkezővel
- fürdőszoba WC
- tároló/háztartási helyiség
- terasz
- előszoba gardróbbal.

Ideális egyedülállónak, egyetemistának, aki kis fenntartási költséggel, mégis a belváros összes előnyével keres új építésű otthont!

Befektetőknek, akik ismerik a garzonlakás összes előnyét!
Projekt bemutatása

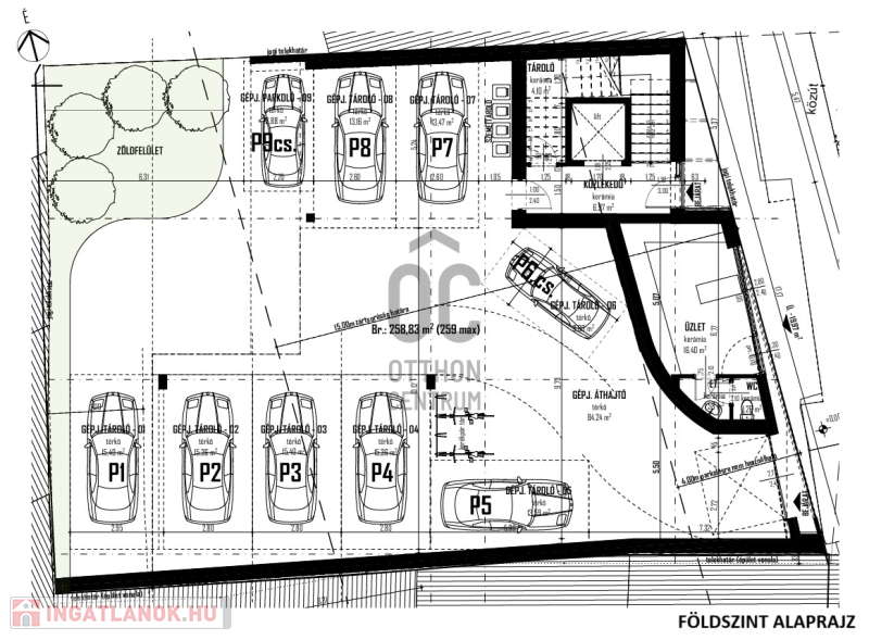
Belváros szívében, Nagytemplomtól 500 méterre épül a 8 lakásos, liftes társasház.

Az értékesítés elkezdődött!!!!

Földszinten 1 db üzlethelyiség és fedett/nyitott gépjárműtárolók (8MFt + ÁFA), melyek megvásárlása nem szükségszerű!
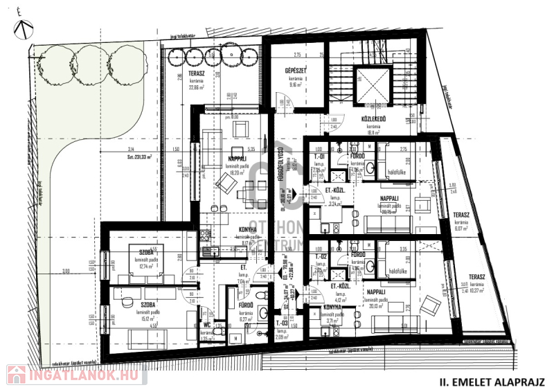
Az I. és II. emeletén 3 - 3 lakás, melyek garzon (nappali + hálófülke) és nappali + 2 hálós kialakításuak.
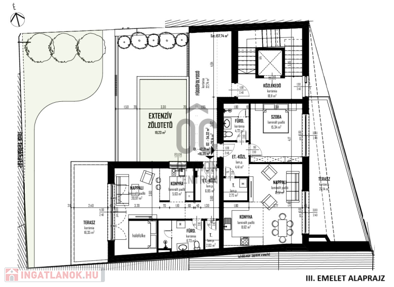
A III. emeleten 2 lakás, melyből az egyik garzon, míg a másik nappali + 1 hálós.

A modern és ízléses külsőhöz egyedi elosztású, élhető terekkel rendelkező, napfényes lakásokat terveztek, házközpontú kondenzációs gázkazánnal (fan-coil) fűtés-hűtés, hőszigetelt nyílászárókkal, minőségi szaniterekkel.

A beruházó és kivitelező múltja és referenciái, garancia a minőségi és egyben megbízható projektnek!

KÖZPONTI ELHELYEZKEDÉS, KIVÁLÓ KÖZLEKEDÉS:

A Hal köz párszáz méterre kávézókkal, éttermekkel, teraszokkal várja a vendégeket.
Villamos és buszközlekedés csak séta távolságra, mellyel a város bármelyik pontjára könnyen eljuthatunk.
A kiváló infrastruktúrának köszönhetően az ingatlanok értékállóak.
Ideális mindazok számára, akik szeretnek a belvárosban élni és az ezzel járó számos előnyt élvezni!
A lakások - akár külföldi - bérlők igényeit is kielégítő, könnyen bérbe adható, ízléses apartmanokká alakíthatóak!

Válasszon az alábbi lehetőségek közül, ha Önnek fontos a belváros nyújtotta kedvező adottság, illetve az értékállóságot keresi jövőjét illetően!

Várható átadás: 2026. III. negyedév.

Hitelügyintézést banki kollégánk teljeskörűen és ingyen bonyolítja Önnek irodánkban, de akár otthonában is!

Lakás részletei

Ár: 66 900 000 Ft
Méret: 42 négyzetméter
Azonosító: 11575849
Városrész: Belváros
Építőanyag: Tégla
Fűtés jellege: Egyéb
Ingatlan állapota: Kitűnő
Kilátás: kertre néző
Egész szobák: 1

Egyéb jellemzők

  • Erkély
  • Garázs
  • Lift
  • Kertkapcsolat
  • Tároló
  • Kocsibeálló

Hasonló lakás hirdetések

Eladó lakás

Debrecen, Belváros

Debrecen abszolút Belvárosában, de mégis csendes övezetben, modern, egyedi ...

Eladó lakás

Debrecen

Vargakerti városrészben, a Trombitás utcán, liftes épületben, 90/74 m2-es, ...

Eladó lakás

Debrecen

Debrecenben dinamikusan fejlõdõ részén a Tócóligetben 47m2-es magasföldszinti, ...

Eladó lakás

Debrecen, Tócóskert

Debrecenben, Tócóskertben, négyemeletes társasházban eladó egy 74m²-es, ...

Hasonló lakás hirdetések

Eladó lakás

Debrecen, Belváros

Debrecen abszolút Belvárosában, de mégis csendes övezetben, modern, egyedi ...

Eladó lakás

Debrecen

Vargakerti városrészben, a Trombitás utcán, liftes épületben, 90/74 m2-es, ...

Eladó lakás

Debrecen

Debrecenben dinamikusan fejlõdõ részén a Tócóligetben 47m2-es magasföldszinti, ...

Eladó lakás

Debrecen, Tócóskert

Debrecenben, Tócóskertben, négyemeletes társasházban eladó egy 74m²-es, ...