Eladó lakás Dunaharaszti 96 000 000 Ft

Leírás

Prémium otthon Dunaharaszti egyik legkedveltebb kertvárosi részén – 4 szobás, kertkapcsolatos lakások fiatal pároknak és családoknak.
A Galagonya Otthonok egy modern, természetközeli és energiatakarékos lakópark, ahol az otthon valóban nyugalmat és kényelmet jelent.

A projekt közelében található vasútvonal gyors közlekedést biztosít Budapest felé. A lakópark előtti szakaszon zajvédő fal épül, amely biztosítja a nyugodt, zavartalan otthoni környezetet.

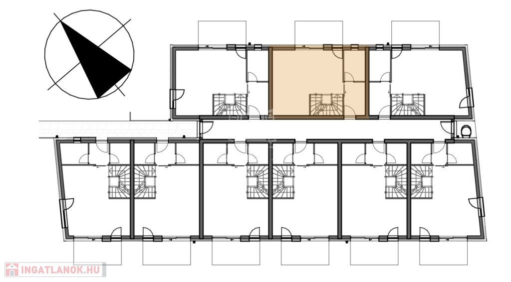
A társasház 9 lakásból áll.
Minden lakás külön bejárattal, tárolóval, és saját telekrésszel rendelkezik.

Lakások:
1. lakás: ELADVA

2. lakás: 106 nm + 8 nm terasz + 18 nm kert + konyhabútor gépekkel = 106.300.000 Ft

3. lakás: 106 nm + 8 nm terasz + 18 nm kert + konyhabútor gépekkel = 106.300.000 Ft

4. lakás: 101 nm + 8 nm terasz + 19 nm kert = 100.800.000 Ft

5. lakás: 98 nm + 8 nm terasz + 20 nm kert = 99.900.000 Ft

6. lakás: ELADVA

8. lakás: 91 nm + 8 nm terasz + 26 nm kert = 96.000.000 Ft

9. lakás: ELADVA

Műszaki paraméterek:

• Tégla falazat (Porotherm 25 N+F):
Masszív, jól szigetelő falak, időtálló minőség.
• Hanggátló válaszfalak (Porotherm AKU Z 30 cm):
Nincs áthallás a szomszédból.
• 20 cm homlokzati szigetelés (EPS, rendszergaranciával):
Kiemelkedő hőszigetelés → alacsony rezsi
• Monolit és előregyártott vasbeton födémek:
Stabil, rezgésmentes szerkezet, hosszú élettartam
• Aszimmetrikus nyeregtető, betoncserép héjazattal:
Modern megjelenés, tartós, vízzáró megoldás
• 3 rétegű nyílászárók, szürke fóliás PVC profilból: Kiváló hő- és hangszigetelés, karbantartásmentes
• Lakásonkénti hőszivattyú (SPRSUN monoblokk):
Környezetbarát, gazdaságos fűtés és hűtés egy rendszerrel
• H-tarifa mérő: Kedvezményes árú áram használható
→ rezsibarát otthon
• Padlófűtés + 2 db fan-coil beltéri klíma:
Egyenletes meleg, láthatatlan hűtés
• Elektromos autótöltő előkészítés:
Jövőbiztos otthon e-autósoknak
• Riasztó és internet védőcsövezés,
• Pipelife víz- és csatornarendszer,
• Melegvíz: hőszivattyúról,
• Fürdőszoba szaniterek: Alföldi, Ferro, M-Acryl,
• Hideg, meleg burkolatok bruttó 6000 Ft/m²,
• Előértékesítés: 3 választható burkolatszín:
• Térköves terasz: Karbantartható, esztétikus kültér,
• Kert: termőfölddel feltöltve, ültetésre előkészítve,
• Csapadékvíz szikkasztók: Biztonságos vízelvezetés,
• 150 cm magas elválasztó kerítések,
Privát szféra minden kertben
• Utcafronti kerítés, postaládák, kapuk, kukatároló.


Átadás: 2025.11.01.

Amivel segítjük az Ön ingatlanvásárlását:
- ingyenes hitelügyintézés,
- jogi háttér,
- földhivatali ügyintézés,
- energetikai tanúsítvány,
- a vevő számára az ingatlanközvetítés ingyenes.
Irodánk 30 éves szakmai tapasztalattal áll ügyfelei rendelkezésére!

Várom szíves megkeresését!

Lakás részletei

Ár: 96 000 000 Ft
Méret: 91 négyzetméter
Azonosító: 11537407
Irodai azonosító: 382812
Cím: Bezerédi utca
Emelet: Földszint
Építőanyag: Tégla
Fűtés jellege: Hőszivattyú
Ingatlan állapota: Kitűnő
Komfort fokozat: Dupla komfort
Építési év: Új építésű
Tulajdonviszony: Saját
Kilátás: udvari
Egész szobák: 4

Egyéb jellemzők

  • Erkély
  • Garázs
  • Lift
  • Pince
  • Tároló

Térkép

Hasonló lakás hirdetések

Eladó lakás

Dunaharaszti

BEZERÉDI LAKÓPARKBAN IGÉNYES SZINTE ÚJ 67,5 nm-es lakás ...

Eladó lakás

Dunaharaszti

Dunaharaszti kedvelt lakóparkjában, a Bezerédi lakóparkban, ...

Eladó lakás

Dunaharaszti

Dunaharaszti egyik legkedveltebb részén, a csendes, családias Bezerédi ...

Eladó lakás

Dunaharaszti

Dunaharaszti egyik legkedveltebb részén, a csendes, családias Bezerédi ...

Hasonló lakás hirdetések

Eladó lakás

Dunaharaszti

BEZERÉDI LAKÓPARKBAN IGÉNYES SZINTE ÚJ 67,5 nm-es lakás ...

Eladó lakás

Dunaharaszti

Dunaharaszti kedvelt lakóparkjában, a Bezerédi lakóparkban, ...

Eladó lakás

Dunaharaszti

Dunaharaszti egyik legkedveltebb részén, a csendes, családias Bezerédi ...

Eladó lakás

Dunaharaszti

Dunaharaszti egyik legkedveltebb részén, a csendes, családias Bezerédi ...