Eladó lakás Érd 134 900 000 Ft

Leírás

Érd Parkvárosi részén BELSŐ 2 SZINTES PENTHOUSE LAKÁS ELADÓ!

Rendkívüli lehetőség Érd Parkváros központi részén, közel a Bem térhez . Most Öné lehet kedvező m2 áron egy nettó 173 m2-es lakás 44 m2-es terasszal. Már csak a burkolatokat és ajtókat kell kiválasztania ízlése szerint és költözhet is !

Tágas, világos terek köszönhetően az egyedi jó méretű nyílászáróknak.
Az ingatlant a 2025-ös év kedvezményes feltételeivel is megtudja vásárolni, az ingatlan cég tulajdonában van, használatbavételi engedéllyel már rendelkezik.
Foglalja le most leendő otthonát 10%-al. Saját ízlése és igénye szerint választhatja ki a lakás belső kinézetét.
Amennyiben egyedi igényei lennének az elosztással kapcsolatban a kivitelező rugalmas a változtatásokra.
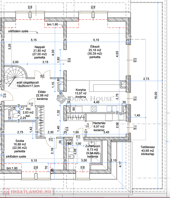
Elosztását tekintve:- Tágas előszoba- Fürdőszoba- Háztartási helyiség- Külön mellékhelyiség- 1 hálószoba - Tágas és világos amerikai konyhás nappali 43 m2-es teraszkapcsolattal
Tetőtér:- 3 egész méretű hálószoba- 1 fürdőszoba mellékhelyiséggel

Műszaki adatok:
- A társasház monolit vasbeton szerkezetből épült, 26 db lakás található 4 szinten.
- 15 cm homlokzati szigetelés
- Házközponti fűtés egyedi mérővel (hőszivattyú, fan coil rendszer, amely a hűtést szolgáltatja, H-tarifa
)- Minden helyiségben padlófűtés
- Tetőn korcolt lemezfedés
- 3 rétegű 6 légkamrás nyílászárók
- Szaniterek - Hideg/meleg burkolatok ( 10 000 Ft/m2 meleg: 10 000 Ft/ m2 )
- Beltéri ajtók ( 100 000 Ft/db )
- 5 ponton záródó bejárati ajtó

EXTRÁK:
- 2 db felszíni parkoló
- Redőny szúnyoghálóval

Környék rendezett, csendes, minden perceken belül elérhető gyalog és autóval egyaránt

Amennyiben az ingatlan felkeltette érdeklődését, kérem keressen bizalommal!

Lakás részletei

Ár: 134 900 000 Ft
Méret: 173 négyzetméter
Azonosító: 11587625
Irodai azonosító: LK056567-5109762
Cím: 173 nm-es lakás eladó Érd
Emelet: 3. emelet
Építőanyag: Tégla
Fűtés jellege: Hőszivattyú
Ingatlan állapota: Épülő
Építési év: Új építésű
Egész szobák: 6

Egyéb jellemzők

  • Erkély
  • Lift

Térkép

Hasonló lakás hirdetések

Eladó lakás

Érd

Kedves Ingatlankereső! Ajánlom figyelmébe ezt a most épülő Modern Társas ...

Eladó lakás

Érd

PRÉMIUM PENTHOUSE ELADÓ ÉRDEN ! Saját LIFTTEL ! Érd Parkváros központi ...

Hasonló lakás hirdetések

Eladó lakás

Érd

Kedves Ingatlankereső! Ajánlom figyelmébe ezt a most épülő Modern Társas ...

Eladó lakás

Érd

PRÉMIUM PENTHOUSE ELADÓ ÉRDEN ! Saját LIFTTEL ! Érd Parkváros központi ...